查看完整案例

收藏

下载

翻译
照片 © Thomas Telley
照片 © Thomas Telley
照片 © Thomas Telley
照片 © Thomas Telley
照片 © Thomas Telley
照片 © Thomas Telley
照片 © Thomas Telley
照片 © Thomas Telley
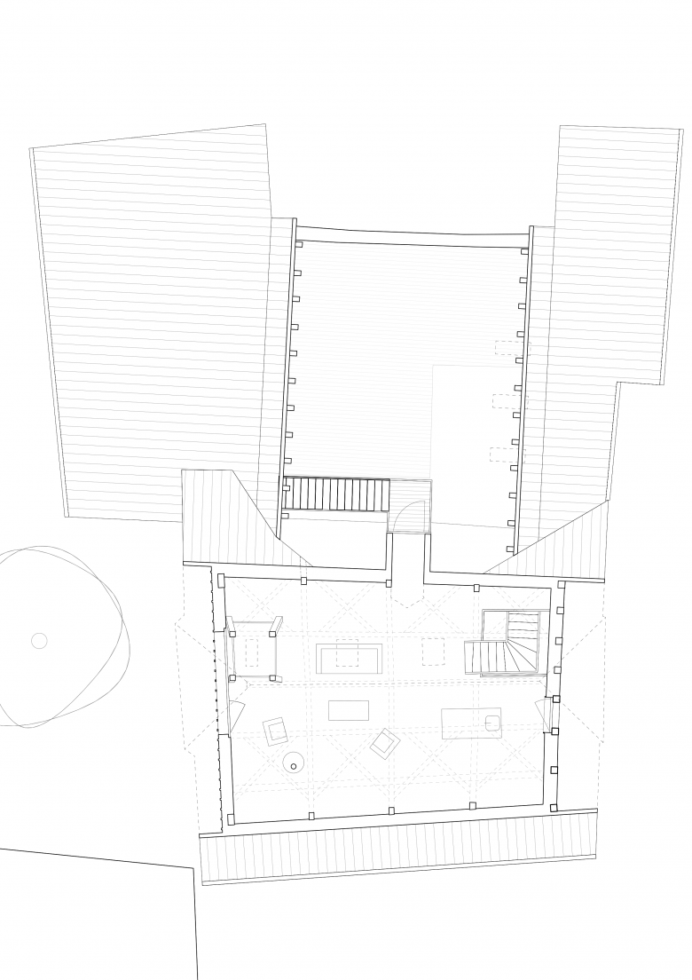
图纸 © APArchitectes
图纸 © APArchitectes
图纸 © APArchitectes
图纸 © APArchitectes
建筑师:Atelier Pulver Architectes SA
位置:1787 瑞士
年份:2021
Ce projet regroupe la transformation d’une ancienne maison d’habitation et celle d’une grange mitoyenne au centre du village de Môtier, dans le canton de Fribourg. Remarquable d’un point de vue historique, la partie habitation est néanmoins petite et peu adaptée pour une vie familiale malgré son usage en tant que résidence secondaire. Pour améliorer le confort et l’habitabilité, des modifications ponctuelles ont été réalisées en ce qui concerne les salles de bains et la cuisine. Les combles ont été aménagées, isolées et chauffées.
La grange, autrefois dédiée au stockage et au bétail, était difficile d’utilisation en l’état. Afin de respecter son caractère rural, cette partie a été remise en état mais maintenue non chauffée. Elle devient ainsi un lieu polyvalent pouvant faire office d’atelier ou encore de salle des fêtes avec une cuisine d’appoint. Une nouvelle surface de plancher a été créée dans le but de mieux utiliser la hauteur sous plafond. Cette superficie nouvellement créée peut également devenir un espace complémentaire à l’habitation mitoyenne et ainsi s’adapter selon les besoins.
客服
消息
收藏
下载
最近














