查看完整案例

收藏

下载

翻译
照片 © Jil Kugler
照片 © Jil Kugler
照片 © Jil Kugler
照片 © Jil Kugler
照片 © Jil Kugler
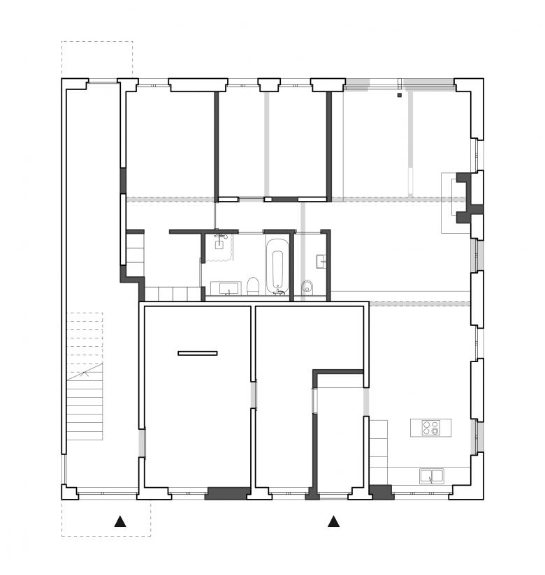
Erdgeschoss
© Wagner Vanzella
建筑师:Wagner Vanzella Architekten
位置:Strubikon, Brütten, 瑞士
年份:2022
客户:privat
团队:Raphael Vanzella, Michael Wagner, Sophia Disiou
Zusammenarbeit mit:Dieter Affeltranger (Architekt HTL / Baubiologe SIB)
Im Erdgeschoss eines Mehrfamilienhauses in Strubikon-Brütten haben wir eine 3.5-Zimmerwohnung eingebaut. Die neue Wohnung besteht aus einem grossen Küchen- und Wohnraum mit offenem Kamin, zwei Schlafzimmern, einer Ankleide mit Zugang zum grosszügigen Bad und einem separaten WC. Dafür wurden zwei Garagen und die Ölheizung mit Tankraum aufgehoben sowie der Wasch- und Trockenraum verlegt.
Alle Aussenwände wurden innen isoliert. Im Bereich der neuen Wohn- und Schlafräume wurde die Bodenplatte abgesenkt und ebenfalls wärmegedämmt. Die Wärme wird durch eine Luft-Wasser-Wärmepumpe erzeugt und durch eine Wand- und teilweise Bodenheizung verteilt.
Im Ausbau wurde Wert gelegt auf natürliche Materialien. Für die Innenwände wurde ein Lehmputz verwendet, die inneren Oberflächen der Aussenwände erhielten einen Kalkputz. In den Wohnräumen wurde gebürstetes und naturgeöltes Eichenparkett verlegt, im Küchenbereich ornamentierte Zementplatten. Alle Einbaumöbel sind in Eiche ausgeführt.
客服
消息
收藏
下载
最近








