查看完整案例

收藏

下载

翻译
建筑师:Matei Manaila Architekten
位置:瑞士
年份:2022
Das Amtshaus III ist Teil der denkmalgeschützten, städtischen Verwaltungsbauten und wurde 1912–1914 durch Gustav Gull als Teil einer grossen städtebaulichen Vision im Zentrum Zürichs erbaut. Im Rahmen eines Wettbewerbs sollten Vorschläge für die Instandsetzung des Dachgeschosses des Amthauses III erbracht werden.
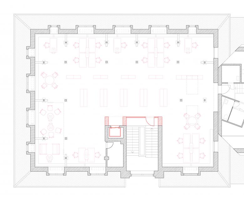
In den Jahren 1998-2003 wurde der bestehende Dachraum des Amthauses III in zwei separate Geschosse getrennt und das untere Dachgeschoss mit kleinen Büroabteilen weiter unterteilt. Das Projekt nimmt einen Befreiungsschlag vor, indem sowohl der nicht mehr benötigte Dachboden als auch alle bestehenden Leichtbauwände zurückgebaut werden. Dieses ‘Freilegen’ schafft einen überhohen Dachraum mit einer zusammenhängenden Geschossfläche auf einer Ebene.
Der mehrgeschossige, liegende Dachstuhl wird zum prägenden architektonischen Bestandteil des neuen Dachraums. Im ursprünglichen Zustand war das Dachtragwerk selbstragend, deshalb hat die vorgesehene Freilegung der Dachkonstruktion keine wesentliche Auswirkung auf die bestehende Tragstruktur. Analog zu den unteren Geschossen wird über eine neue Verglasung zum Treppenhaus Tageslicht in die Tiefe des Raums geführt und neue Blickbeziehungen von Innen nach Aussen geschaffen.
Durch die Entfernung der vorhandenen Wände können die Arbeitsplätze sehr flexibel angeordnet werden. Bei zukünftigen, ändernden Bedürfnissen sind alternative Nutzungen ohne grossen Aufwand umsetzbar.
客服
消息
收藏
下载
最近








