查看完整案例

收藏

下载

翻译
Virtueller Rundgang - Kraftwerk Tabakfabrik Linz
Video © Architektinnen Schremmer Jell
Kraftwerk Tabakfabrik | Aussenansicht
照片 © Martin Steinkellner
Kraftwerk Tabakfabrik | Veranstaltungssaal
照片 © Martin Steinkellner
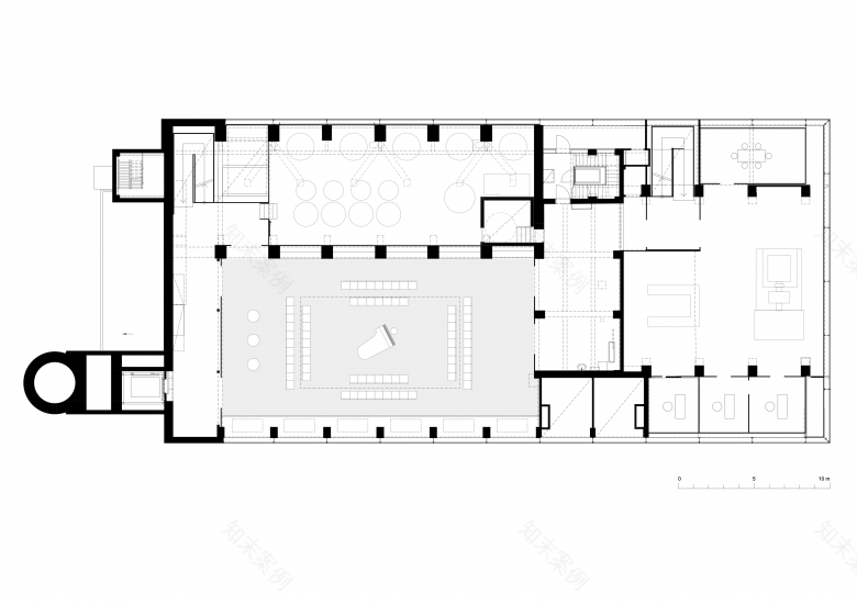
Grundriss Tabakfabrik Kraftwerk Linz
Kraftwerk Tabakfabrik
照片 © Daniela Köppl
Kraftwerk Tabakfabrik | Adaptive Reuse
照片 © Martin Steinkellner
Kraftwerk Tabakfabrik - Hörsaal 0
照片 © Daniela Köppl
Schnitt Tabakfabrik Kraftwerk Linz
Kraftwerk Tabakfabrik - Detail
照片 © Daniela Köppl
Kraftwerk Tabakfabrik
照片 © Daniela Köppl
Kraftwerk Tabakfabrik
照片 © Daniela Köppl
Kraftwerk Tabakfabrik | Adaptive Reuse
照片 © Daniela Köppl
Kraftwerk Tabakfabrik | Adaptive Reuse
照片 © Daniela Köppl
Kraftwerk Tabakfabrik
照片 © Daniela Köppl
Kraftwerk Tabakfabrik | Adaptive Reuse
照片 © Martin Steinkellner
建筑师:Architektinnen Schremmer.Jell ZT GmbH
位置:Peter-Behrens-Platz 1, 4020 Linz, 奥地利
年份:2022
客户:Immobilien Linz GmbH&Co Kg
团队:Gerhild Schremmer, Ute Schremmer, Julius Jell, Franz Moser, Wolfgang Graml
ADAPTIVE REUSE
am Areal der Tabakfabrik Linz. Ein zeitgenössischer Hörsaal mit Brauereibetrieb und Gastronomie im historischen, denkmalgeschützten Gebäude (1935 nach Plänen der Architekten Peter Behrens und Alexander Popp errichtet) entsteht -dieses wird umgenutzt und somit wieder „aufgeweckt“.
Ein Umbauen im Bestand des Gebäudes und eine zeitgemäße Interpretation dieses bedeutenden historischen Erbes ist erfolgt– alle Entwürfe erfolgten auf Grundlage der Bauforschung (Schremmer, 2020) in Abstimmung mit dem Bundesdenkmalamt. Die
historischen Funktionsabläufe werden herangezogen und die ursprünglichen Räume genau analysiert. Die grundsätzlichen Schritte der Funktionsweise des ehemaligen Kohlekraftwerkes sind nachvollziehbar und werden für den neuen Produktionsbetrieb wieder benützt.
Im Erdgeschoss des Kraftwerks, das früher auch Kessel- und Maschinenhaus genannt wurde, werden die Brauerei und ein modern interpretierter Braugasthof mit Blick auf die Sudhäuser sowie direktem Zugang zum Gastgarten eingerichtet. Im ersten Obergeschoss entstehen ein Hörsaal sowie das neue Bier-Kulturzentrum als Zentrum der Braukunst und als Seminarraum.
Alle Bauteile, die zur Gebäudehülle gehören werden im denkmalpflegerischen Sinn rekonstruiert, also optisch gleich hergestellt, die neuen Elemente bewusst als architektonisch zeitgenössische Gestaltung entworfen.
HISTORISCHE BESTANDSAUFNAHME
Die historischen Funktionsabläufe werden herangezogen und die ursprünglichen Räume genau analysiert. Auf dieser Grundlage werden im Erdgeschoss und im 1.Obergeschoss nicht ursprüngliche Einbauten rückgebaut und die grosszügigen Räume wiederhergestellt. Um die Entfluchtung des neuen Veranstaltungssaal zu gewährleisten werden 2 neue Erschliessungskerne errichtet. Diese werden auch in der bestehenden Erschliessungsachse angeordnet um die Orientierung im Gebäude zu vereinfachen.
Die ursprüngliche Idee der 3-seitig umlaufenden 10m hohen Glasfassade, die das Gebäude wie einen Kristall von Innen nach aussen erstrahlen lässt, wird wieder hergestellt. Statt Kohle wird Bier gefördert und als Kulturgut erlebbar gemacht.
NEUE NUTZUNGEN
Im Erdgeschoss sind Gastronomie und Braubetrieb. Im Gastronomiebetrieb sind die 2 Südhäuser der Brauerei sichtbar situiert um direkt am Brauprozess teilnehmen zu können. Die östliche Erdgeschosszone beinhaltet die Betriebsräume inklusive Anlieferung und Abfüllanlagen. Im 1. Obergeschoss wird ein Teil des ehemaligen Kesselhauses als Veranstaltungssaal mit maximal 260 Personen genützt. Die bestehenden ehemaligen Kontrollgänge werden als Auftrittsflächen als Teile von Inszenierungen im neuen Konzept des Hörsaales integriert. Der nördliche Teil des ehemaligen Kesselhauses ist der Gärkeller.
Räumlich werden die Funktionen transparent abgetrennt, um das ehemalige Kesselhaus in seiner beeindruckenden Dimension und voller Höhe erlebbar beizubehalten. Eine frei im Raum gestaltete Decke, die zum Heizen und Kühlen des Saales dient, bildet ein neues Raumzentrum. Dieses wird mit Beleuchtung inszeniert und spiegelnde Oberflächen lassen das Gebäude von innen nach aussen strahlen.
Die ehemalige Maschinenhalle, das Herz des Gebäudes, wird zum Braukulturzentrum. Raum im Raum bieten Lösungen für Büroarbeitsplätze samt Besprechungen. Eine Bar und die Sitzplätze in der Halle dienen der Verkostung von Bier und können als kleiner Seminarrum genutzt werden.
客服
消息
收藏
下载
最近
















