查看完整案例

收藏

下载

翻译
照片 © Simon Bolt
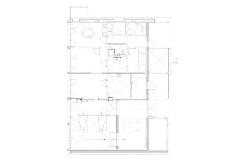
图纸 © Simon Bolt
照片 © Simon Bolt
照片 © Simon Bolt
照片 © Simon Bolt
照片 © Simon Bolt
建筑师:atelier a und b ag
位置:Ins, 瑞士
年份:2020
Umbau Heumoos in Ins
Das eingeschossige Gebäude umgeben von grossen Stallgebäuden und einem Wohnhaus wurde bereits vor dem Umbau durch die Swissgenetics genutzt.
Um auch zukünftig international wettbewerbsfähig zu bleiben, sollten sämtliche für die Embryogewinnung anfallende Arbeiten vor Ort durchgeführt werden können. Mit dem baulichen Eingriff sind nun der Raum für die Embroygewinnung, das Labor, zwei Büroräume für bis zu 6 Arbeitsplätze, ein Pausenraum, Garderoben und Lagerräume untergebracht. Beim mit Fernwärme geheizten Gebäude wurde die Aussenhülle saniert, das Dach neu eingedeckt und eine neue Bodenheizung eingebaut.
Umfang:
Umbau alte Sprunghalle für zukünftige Embryogewinnung OPU | Sanierung und Wärmedämmung Dach und Fassade | Neue Kanalisation | Neue Nasszelle und Garderoben | Neue Küche und Pausenraum | Bodenisolation und Einbau Bodenheizung mit Fernwärme
客服
消息
收藏
下载
最近








