查看完整案例

收藏

下载

翻译
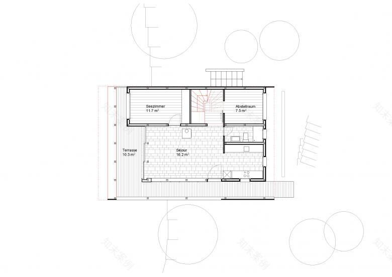
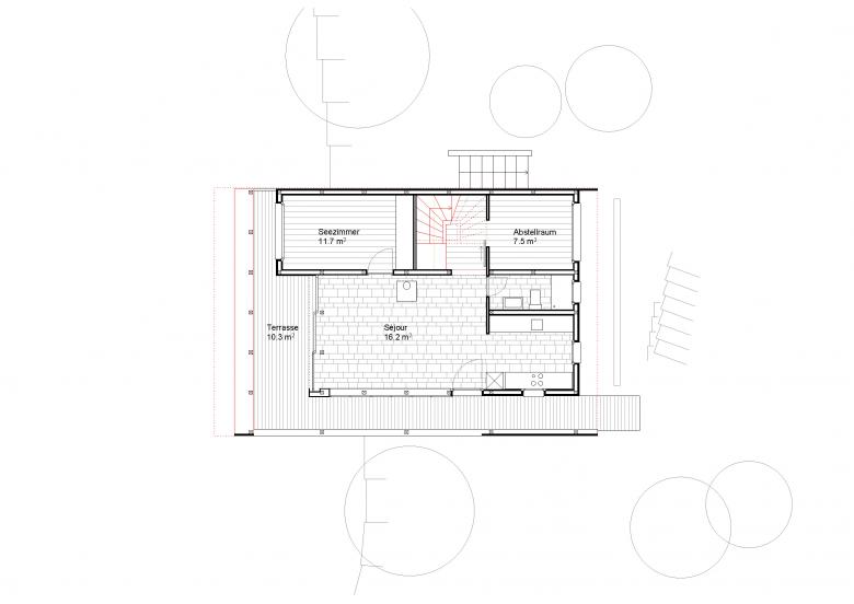
Grundriss Erdgeschoss
Grundriss Obergeschoss
Längsschnitt
Ansicht West
Ansicht Nord
建筑师:Rothenfluh & Partner Architekten
位置:Servance, 法國
年份:2022
Das über 20-jährige Holzhaus am Weiher auf der Hochebene beim Hameua de la Longue Raie soll durch einen einfachen Eingriff erweitert werden. Ein turmartiger Aufbau ermöglicht den Rückzug in die Baumkronen. Eine neue Terrasse als Oberdeck bietet einen freien Blick über die Weite des Plateau der „Mille Étangs“.
客服
消息
收藏
下载
最近












