查看完整案例

收藏

下载
宿舍楼 @章勇
无论任何时代,教育作为源源不断输送知识的源头永不枯竭,学校为传承亘古文化和精神的物质载体,而学校宿舍则为为学生遮风挡雨的象牙塔港湾。
宿舍绿化 @章勇
混凝土细部 @章勇
而“校舍建筑”之于中国当代建筑,是根据区域政治、经济、地理甚至文化的实际情况为社会长期发展,推进教育改革的重要形式之一。诚然中国已经将教育发展列为社会建设的首要目标,但是在偏远地区,依旧存在一些严重的问题有待解决。融安县地处广西省柳州市所辖县,全县现有中学高考成绩整体上居柳州六县之首,但教育资源及基础设施分散,教育资源得不到整合,最远的乡镇乘车到达学校需一个多小时。除此之外,当地气候多变,难以预测。换季时,风雨雷暴时常发生。除了降雨量大,融安当地的太阳辐射强度同样非常大。简而言之,气候为当地学生和教职工本就遥远的路途增加了更多阻碍。
宿舍楼户外阶梯 @章勇
理念规划
因此,融安中学意在为师生打造一个集中解决师生上学途中的时间成本高、天气恶劣以及路途遥远等困难的复合功能性宿舍:教育模式在不断更新迭代,开放与共享给了我们一个广阔的想象空间:打破个功能区的割裂感,以开放式的架空院落围合串联一系列开放兼容的复合多功能空间,形成一个万物互联与生态教育相辅相成的理念建筑。无论是萤窗万卷书,亦或是学堂青玉案,都能使学生体验到空间与时间的流动与贯通。
宿舍楼 @章勇
我们认为,以人为本的设计,一定是充满人文关怀且因地制宜的,多功能集中化的宿舍建立虽能很好的将师生纳入一处,减少气候与路途的弊端,但宿舍内部依旧需要做好应对的设计。根据聚散适宜进行建筑布局,在规划中强调适度集中的关联性:按结合紧密程度和闹静分区原则分成不同体部构成宿舍的平面基本骨骼。将宿舍人性化的室外空间与建筑空间展开互动:由线到面,风声、蝉声、读书声声声入耳;
宿舍楼夜景 @章勇
功能渗透
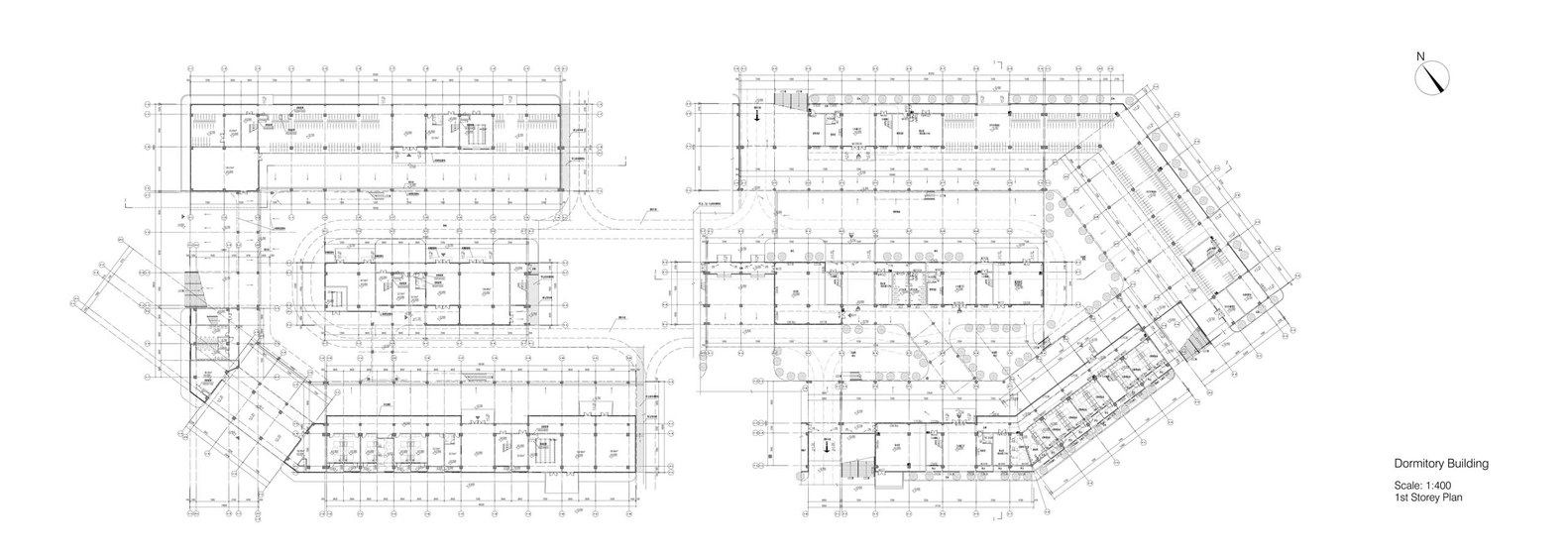
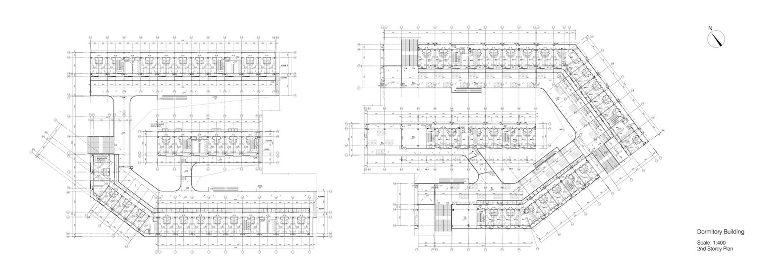
宿舍区建筑层数6层,局部7层,寝室设有1090间;每间宿舍安排6人,室內配备必要的储藏空间和独立的盥洗室。
宿舍活动区 @章勇
住宿区以学生活动中心、日常便利店、理发、架空层自行车停车库将不同的住宿单元楼连接成为一个整体;景观平台的设立,更作为公共空间使单调的住宿功能散发更人性化的居住感受和社交生活体验;同时小型餐饮、阅览空间,便利超市、书店和洗衣房多种配套增添归属感和认同感。
宿舍楼夜景 @章勇
空间特点
通常围合建筑的布局形式有内部安静、领域感强以及街景形成良好的优点,但日照条件不佳的缺点也不可忽略。所以在空间布局上,将住宿区以架空式上下层的连廊式公共空间平台相连接,形成尺度适中的整体形态。既增加了住宿区的独立性,又通过公共服务的内容将人与人的关系联系起来,交相呼应;
宿舍楼 @章勇
宿舍活动区 @章勇
另外,架空层作为公共空间本身具有开放性、公共性和服务性,在满足功能多样性同时也会考虑到其为室外空间的的景观延伸,注意软环境建设的和谐与平衡:结合地面绿化,形成适宜停留、驻足、交谈的室外景观环境。外廊,户外阶梯、平台等相互连接,呼应主题:打破传统功能散落的形态,增强学生与学校之间紧密结合,助于产学研相结合以及全新的教育模式的产生,打造共享、共融、开放的宿舍环境。
宿舍楼夜景 @章勇
因势利导的环保意义
由于当地气候寒冷多变,雨水多而潮湿,建筑外立面与能源的可持续发展能力被列入重要考量。首先住宅屋面和墙面作为上人屋面,所以以无机保温砂作为保温媒介,应用XPS聚苯保温板、中空玻璃等新兴科技材料以达到降低墙面吸热度、隔绝噪音的目的。
宿舍楼 @章勇
而基于生命周期理论,建筑能耗可分为建筑过程能耗和建筑使用能耗,因此要想减低建筑全寿命周期能耗,可从建筑使用过程中的能耗降低入手。所以设计师在宿舍顶部安装的太阳能光伏板、集热板将太阳能建筑一体化的概念加入学校宿舍的人文氛围中。不但与传统化石燃料相比大大降低整个社会能源的使用,其产生的热水与发电量可满足整个宿舍的使用量,同时也作为屋面的遮阳系统将建筑完整一体化。
渲染图
图纸:
西区轴测图
东区轴测图
分析图
一层平面图
二层平面图
三至六层平面图
立面图
剖面图
建筑师: 上海交通大学设计研究总院
面积: 32860.0 m²
项目年份: 2018
摄影师: 章勇
设计团队: 杜春宇,金凌骏,黄建云,双降喜,刘士兴,宋晓冰
施工方: 广西建工集团第五建筑工程有限责任公司
客户: 融安县政府
撰稿: 金思彤
客服
消息
收藏
下载
最近























