查看完整案例

收藏

下载

翻译
Interview mit 4a-Geschäftsführer Matthias Burkart über die Renovierung des Mineralbad Berg in Stuttgart
Video © 4a Architekten GmbH
照片 © Uwe Ditz
照片 © Uwe Ditz
照片 © Uwe Ditz
照片 © Uwe Ditz
照片 © Uwe Ditz
照片 © Uwe Ditz
照片 © Uwe Ditz
照片 © Uwe Ditz
照片 © Uwe Ditz
照片 © Uwe Ditz
照片 © Uwe Ditz
照片 © Uwe Ditz
照片 © Uwe Ditz
照片 © Uwe Ditz
照片 © Uwe Ditz
照片 © Uwe Ditz
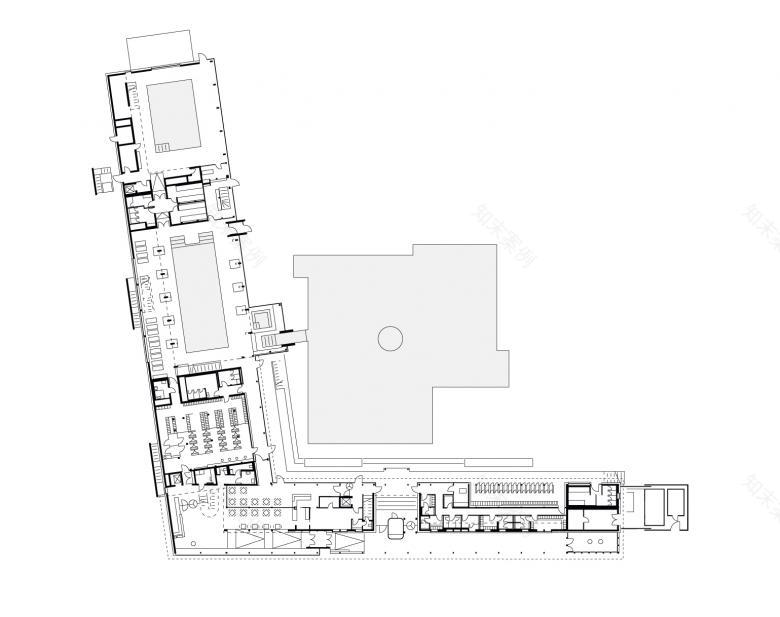
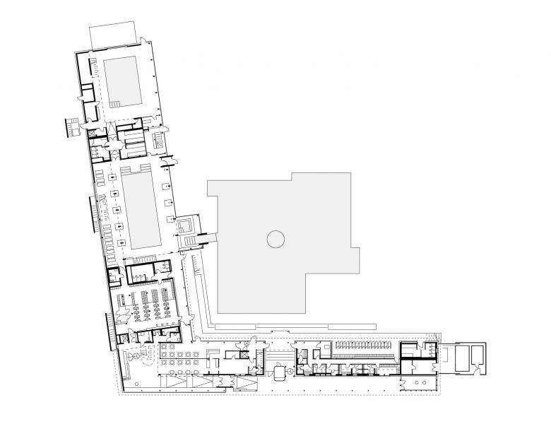
Grundriss Erdgeschoss
图纸 © 4a Architekten GmbH
照片 © Uwe Ditz
照片 © Uwe Ditz
照片 © Uwe Ditz
建筑师:4a Architekten
位置:Am Schwanenplatz 9, 70190 Stuttgart, 德国
年份:2020
客户:Bäderbetriebe Stuttgart
团队:Martin Schweizer (Projektleitung), Thorsten Buck, Martina Henke, Andreas Rothmann, Izabella Hüttig, Patricia Löw, Daniel Hauptmann, Marc Holtschmidt, Silvia Nanz
Sanierung eines Traditionsbades mit Kultcharakter.
Das Mineralbad Berg liegt mitten im Stadtraum von Stuttgart, umgeben von einer großzügigen Parklandschaft mit altem Baumbestand. Im Fokus der Sanierung des ältesten Stuttgarter Mineralbades stand, die richtige Balance zwischen Erhalt, Erneuerung und Ergänzung zu finden, um den besonderen Charme zu wahren und die Neugestaltung in Anlehnung an die 50er-Jahre zeitgemäß zu interpretieren. Der L-förmige Baukörper mit Nord- und Ostflügel, in den das quadratische Außenbecken mit Seecharakter eingebettet liegt, blieb in seiner ursprünglichen Form erhalten und wurde bis auf den Rohbau zurückgeführt. Lediglich das alte Bewegungsbad im Osten der Anlage wurde abgerissen und durch einen Anbau an die Badehalle ersetzt. Die neu gestaltete Eingangsfront mit blau schimmernder Mosaikfassade und frei gelegtem Kolonnadengang verleiht dem Bad eine neue Identität im Stadtraum. Großflächige Verglasungen geben bereits von außen den Blick auf das Außenbecken und den Garten frei und erzeugen im Innenraum eine lichtdurchflutete Atmosphäre. Das offen gestaltete Foyer mit Gastronomie fungiert als zentrale Schnittstelle im Bad. Kunstelemente aus dem Bestand wie die Ackermann-Glaskunst an der Decke und die vergoldete Badewanne auf der Galerie verleihen dem Foyer ein nostalgisches Flair. Die Badeebene mit Badehalle, Bewegungsbad und Außenbecken liegt nach wie vor im Erdgeschoss. Im Obergeschoss befinden sich die Saunabereiche mit Liegeflächen, die wie im Bestand für Damen und Herren voneinander getrennt sind sowie ein Gymnastikraum mit Ausblick in die Parkanlage. Eine Galerie im Obergeschoss erweitert die Badehalle um Liegeflächen. Gestaltgebendes und akustisches Element in den Badehallen ist eine neue Holzlamellendecke, die sich in sanftem Schwung von der Wandfläche über die Decke bis hin zur Glasfassade schwingt. Sie verleiht dem Innenraum eine warme Atmosphäre und sorgt für eine gute Akustik. Besonders charakteristisches Element in der Badehalle ist die grafisch gestaltete Fliesenwand, die in Zusammenarbeit mit dem Stuttgarter Künstler Prof. Matthias Kohlmann in Anlehnung an den Bestand entwickelt wurde. Insgesamt prägen das Mineralbad nur wenige Materialien wie Holz, Feinsteinzeug, Mosaikfliesen, Sichtbeton und Stahl und eine gedeckte Farbigkeit – für ein ruhiges und entspannendes Ambiente.
客服
消息
收藏
下载
最近






















