查看完整案例

收藏

下载

翻译
Video ©
照片 © Marie-Caroline Lucat
照片 © Marie-Caroline Lucat
照片 © Aldo Amoretti
照片 © Marie-Caroline Lucat
照片 © Aldo Amoretti
照片 © Aldo Amoretti
照片 © Marie-Caroline Lucat
照片 © Aldo Amoretti
照片 © Marie-Caroline Lucat
照片 © Aldo Amoretti
照片 © Marie-Caroline Lucat
照片 © Marie-Caroline Lucat
照片 © Marie-Caroline Lucat
照片 © Marie-Caroline Lucat
照片 © Aldo Amoretti
照片 © Aldo Amoretti
照片 © Marie-Caroline Lucat
照片 © Aldo Amoretti
照片 © Marie-Caroline Lucat
照片 © Marie-Caroline Lucat
建筑师:Mateo Arquitectura
位置:Montpellier, 法國
年份:2021
团队:Xavier Montclús, Benoist Desfonds – Architect and Project Management, Julie Le Baud - Architect and Project Management, Raluca Desa - Architect and Project Management
Site programming, management and coordination:ARTEBA – Gilles Gal
Structures:BAC Engineering Group
Installations and sustainability:BET DURAND
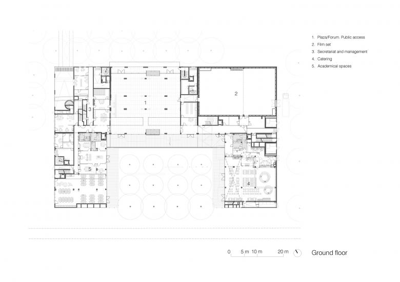
The ESMA (École Supérieure des Métiers Artistiques) stands on the site of a former army barracks, specifically on the parade ground.
Military buildings to be reused and new buildings that will shape a new neighbourhood surround us. We outline the parade ground, respecting the great trees around its edges and defining an open communal courtyard. The volume, though rigid, seeks to adapt to the place.
The brief is complex and highly attractive; a small condensed city: a large inner plaza, a restaurant, a large technical space: the film set, lecture rooms and academic spaces along with dwellings, sports facilities, etc. A small city with academic, leisure and residential activities. The project seeks to address this vital condensation in a way that is at once orderly and free.
The mass is protected and controls its relationship with the sun by means of slats, awnings or blinds. In the academic spaces in particular, we try to achieve different degrees of brightness; the bedrooms must be able to be more opaque.
Its image is also conceived in relation to the great trees and the buildings that surround it.
客服
消息
收藏
下载
最近





























