查看完整案例

收藏

下载
行事·大桥·长峡河
位于北九州市东南约25公里处的行桥市,人口约有7万人,作为北九州市近郊的住宅区发展至今。“行桥”这个名字是由城乡合并改造前的原行事村的 “行”字,与原大桥村的 “桥”字二字组合而成。
在江户时代,这里是连接小仓城与中津城的中津街道的驿站。这片土地得益于长峡河丰沛的水运资源,作为小仓藩最大的盛产大米的地区,支撑了整个小仓城的繁荣。由建筑师辰野金吾为首的辰野片岡事务所监修制造的原百三十银行·行桥支行(现行桥红砖馆),诉说着当时此处的经济实力。无论是行事还是大桥,至今仍保留着以前地域分配的影子。
△ 原行桥市地图
设施功能
Librio行桥是一个以市图书馆为核心,同时具备市民文化活动中心与托儿所相关配套功能的综合设施。它在通过图书馆提高吸客能力的同时,还作为激发市中心活力的起点,将“活泼”与“安宁”等不同感受共享给到访的人们。
©行橋イノベーション株式会社
扭转立方体—将未来重叠于历史背景之上
此建筑用地位于流经两村边界的长峡河右岸,在这里,原百三十银行与木蜡商柏谷代代相传的柏木勘八郎的旧居相望而建,历史源远流长。
我们将此拥有4层楼的建筑又分为下层和上层两部分,并于中间进行了扭转。下层正对历史建筑红砖馆。我们在尊重这里原本为两地区的历史关系的同时,将此设施背后的原大桥村的城镇布局整合起来,以起到迎接新市民,创造城市新活力的目的。建筑上层则面对长峡河。这样一来,从楼上放眼望去的景观亦是与河对岸的原行事村街景相辅相成。
©行橋イノベーション株式会社
这个扭转的立方体不仅实现了对此建筑用地不规则形状的有效利用,更是体现了我们在此地的历史背景之上重叠崭新未来的设计理念。
©新写真工房 堀内広治
结构与内装设计
建筑的上层部分为钢结构,得以实现将立方体悬浮于上的可能。下层部分为钢架钢筋混凝土结构,以便合理地承受上层钢结构的应力。我们在表达出了这个扭转外形与其空间连续性的同时,还兼顾了经济效益与抗震性能。
△ 结构
△ 模型鸟瞰
©新写真工房 堀内広治
我们对内部空间的结构本身实施了匠心独运的设计。为了表现结构本身,我们采用了消色内装,并将贯穿此地的长峡河的微光展开于馆内地板图案之中。
©新写真工房 堀内広治
此外,我们还在各层电梯区域通过鲜亮色彩的点缀,突出了4层空间的连续性。
©新写真工房 堀内広治
△ 一层空间布置图
△ 二层空间布置图
△ 三层空间布置图
△ 四层空间布置图
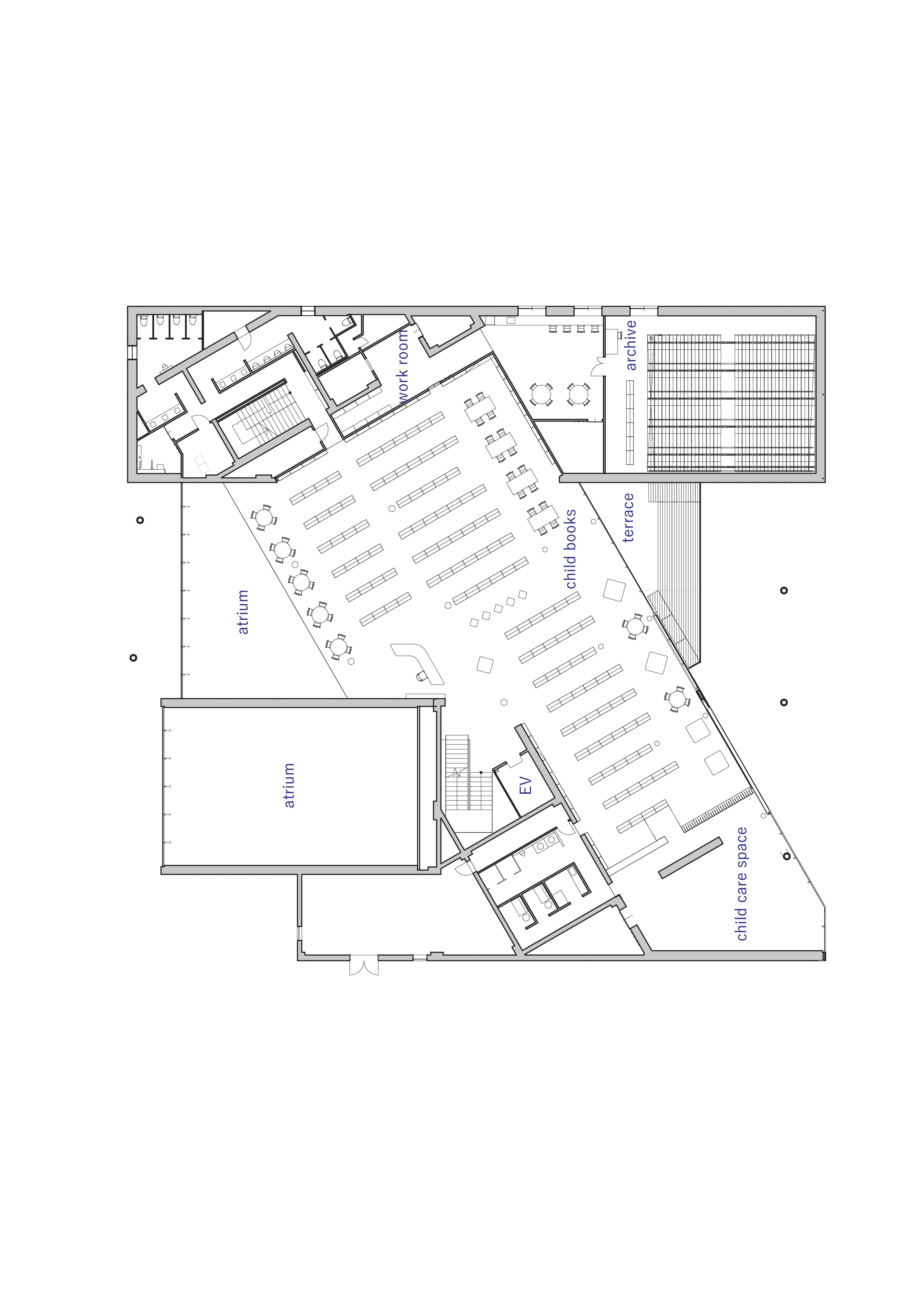
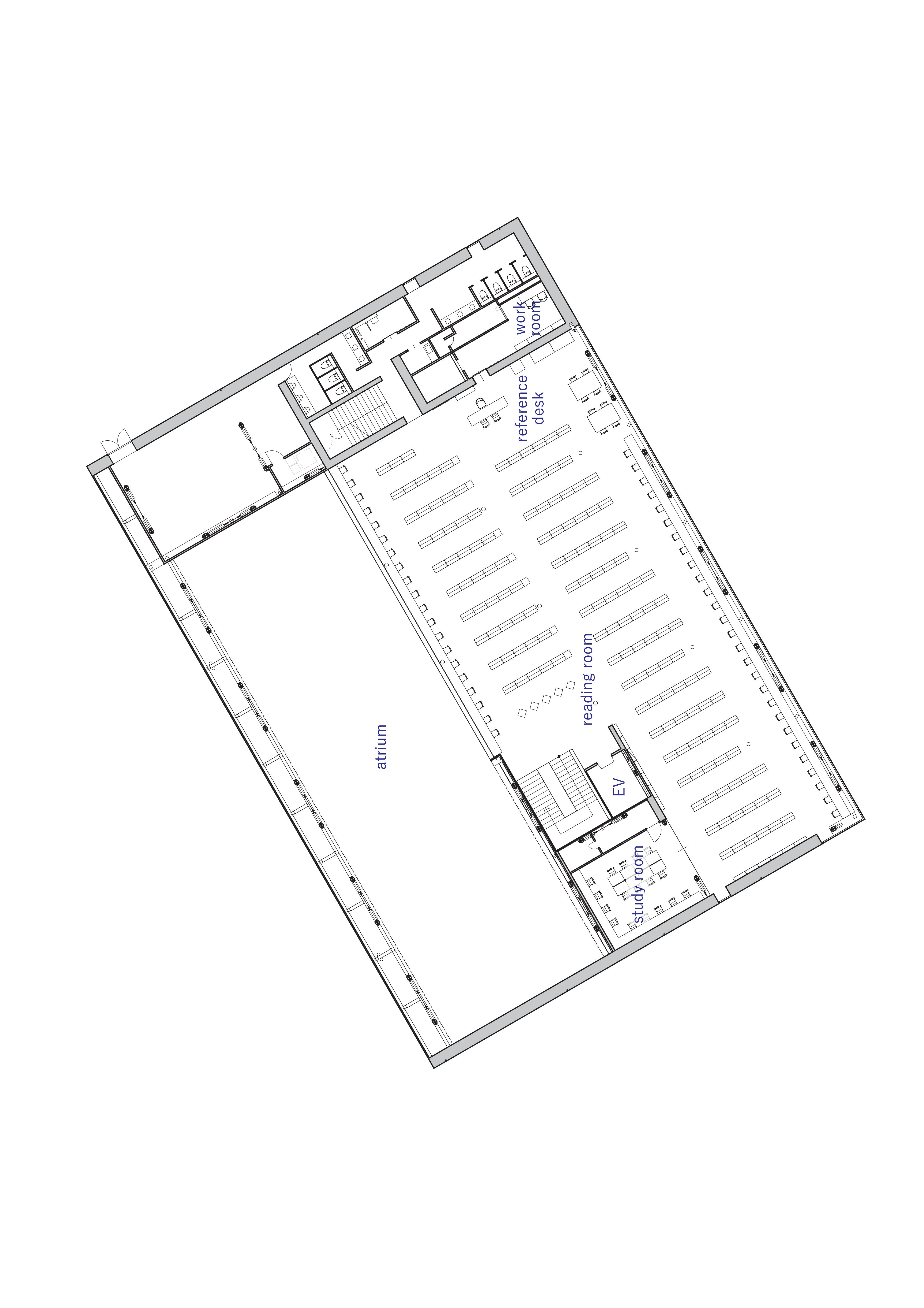
△ 一层平面图
△ 二层平面图
△ 三层平面图
△ 四层平面图
△ 立面图
△ 剖面图1
△ 剖面图2
△ 设施构成
项目信息
名称:Librio行桥
所在地:日本福岡県行桥市
主要用途:图书馆
占地面积:3,182.07㎡
建筑用地面积:2,151.19㎡
总建筑面积:5,143.46㎡
楼层:4
结构:SRC+S
竣工日期:2020.2
设计期间:2017.11-2018.10
施工期间:2018.11-2020.2)
设计:三上建筑事务所 MIKAMI Architects
主设计师:益子一彦 Kazuhiko Mashiko
建筑:三上建筑事务所 MIKAMI Architects
(团队:冨田武俊 大井友彦 田中祐太 矢端孝平 齋藤勝弥 高橋拓海 陸金明 糸山浩司)
结构:三上建筑事务所 MIKAMI Architects
(团队:倉持勝己 川又祐介)
照明·机械设备:鹿島建設株式会社 九州支店 KAJIMA CORPORATION
(团队:浜本斉 安達光平)
施工:鹿島建設株式会社 九州支店 KAJIMA CORPORATION
摄影师:新写真工房 堀内広治、行橋イノベーション株式会社、
客服
消息
收藏
下载
最近








































