查看完整案例

收藏

下载
总部位于悉尼的时尚零售商
Above The Clouds
已在 Surry Hills 的 Crown Street 的一个显眼街角选址。由零售爱好者和全能巨星——Pattern Studio 设计的室内空间呈现出一系列协调的矛盾。
2021 年,虽然许多悉尼时装零售商的大门仍然紧闭,但在云端之上的导演 Dimitri Calligeros 和 John Paul Wager 正在制定一个有点独特的 Covid 应对措施。 “在普遍的不确定和恐惧中,两人正在升级,”Pattern Studio 的 Josh Cain 和 Lily Goodwin 解释道。 “Above The Clouds 的在线销售正在蓬勃发展,尽管这座城市正处于长期封锁之中,但他们还是抓住了一个占据更大零售空间的机会。” Calligeros 和 Wager 在 Josh 和 Lily 的帮助下,让他们的新实体店焕然一新。
新的装修是为了反映独立品牌的演变,同时至关重要的是忠于其卑微的起源。 “以‘Above The Clouds’并不完全适合任何一个类别、风格或流派这一事实为荣,设计反应需要说明品牌日益增长的信心和成熟度,”两人说。
新店在适当时尚的环境中充当新的和更高端的系列的尽职管理人,不会恐吓或疏远任何忠实的客户群。
图案巧妙地将品牌的魅力和独特性转化为空间体验。 新的内饰展现了对二元性的探索——看似不同的概念和谐共存,产生了一种新鲜而诚实的美感。
这家商店给人一种既精致又原始、放松和精致的感觉,既散发出青春活力,又散发出挑剔的精致。 细节在某些领域是基本的,而在其他领域则非常光滑,而材料调色板将超工业与俏皮并列。
脚手架、钢带和松木等饰面出现在活泼的粉彩平面旁边; 眼镜柜中的黄油黄色和天蓝色的销售柜台,参考了日本玩具品牌 MediCom 的 Bearbrick 的欢乐色彩。
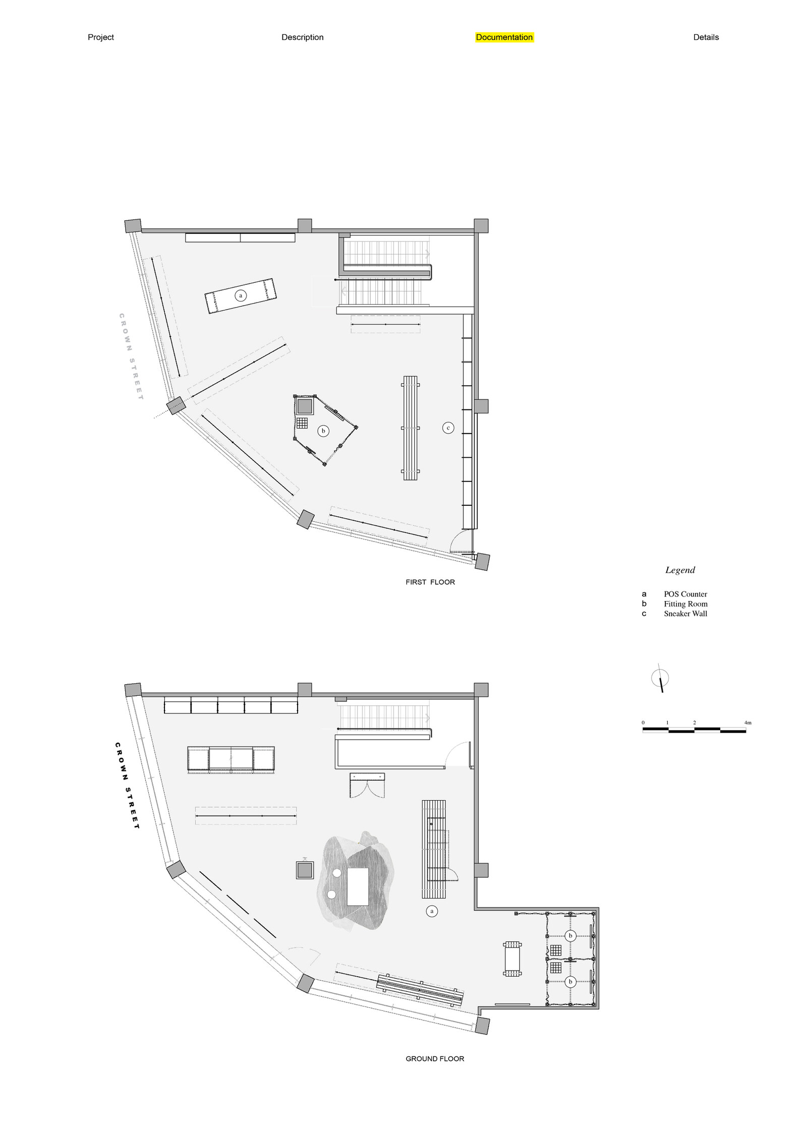
然而,这家商店的最大卖点无疑是 Sneaker Wall。对一些人来说,运动鞋文化与宗教信仰密切相关。 Pattern 融入了这个概念,为鞋子构想了一个适当的虔诚圣地。巨大的墙壁跨度八米,发出柔和的光芒,以宁静的优雅展示产品。 Josh 和 Lily 说:“从体验上看,这一举措更像是画廊或(我们敢说)寺庙,而不是传统的零售店。”广阔而超凡脱俗的展示旨在赢得即使是最虔诚的运动鞋爱好者的喜爱。
看到避免严格分类、限制和不灵活标签的品牌越来越受欢迎,这令人耳目一新,但也许并不奇怪。云端之上代表了新一波零售商,其包容的态度和前瞻性的思维方式受到消费者的好评。他们端庄时尚的新空间是任何对当下、独立时尚和创意文化感兴趣的人的天堂——无论是年轻人还是内心年轻的人。
图片:
Pattern Studio
. 摄影:
Traianos Pakioufakis
语言:English
客服
消息
收藏
下载
最近

























