查看完整案例

收藏

下载
⊙改造前 3350 车间
⊙改造后的 3350 演播厅建筑实景。其中,A 区改造建筑面积为 8173 平方米,地上四层,无地下,建筑高度为 18.1 米;B 区改造建筑面积 8827 平方米,地上 5 层、地下 1 层,建筑高度 30 米,为新建的大中小 3 种规格的演播厅。中演播厅和大演播厅建筑面积分别为 800 平方米和 1800 平方米,均为高挑空的演播室,小演播厅建筑面积 380 平方米。
⊙B 区东大厅
⊙B 区东西入口门厅
01介入与轻介入
⊙AB 区中间连廊
任何人在第一次进入首钢园区时,都会被这座曾经的工业巨兽所震撼,钢筋铁骨,气势恢宏。制氧厂亦保持极富感染力的厂房状态,建筑内部空间尺度多变,层次变化丰富,在粗犷浑厚的清水混凝土和大尺寸结构构件的加持下,空间具有极强的表现力,这种唯有大型厂房所展现出的空间张力尤为珍贵。
⊙B 区东大厅局部
⊙B 区登记处
⊙B 区东大厅 B1 层休息厅
在此母题之下,弘石室内设计团队在“介入”与“如何介入”的博弈中,决定摒弃覆盖在设计表象无实际功效的饰层,转而以“轻介入,去装饰”为核心原则。将设计重点放在空间界面的整合上,以最少的包裹,最不易察觉的细节,以及最收敛的空间装饰,将空间本身作为刻画的重点,最大化还原空间本身的美感与质感。
⊙B 区东西入口门厅
02 表现与反表现
⊙B 区东大厅 2 层休息厅
在当下设计实践中,“塑造新空间”或“赋予空间新的性格”是喜闻乐见的表现手法。面对首钢园如此原生态的工业感,设计团队清晰地认识到不应将观察重点放在围合界面的装饰上,而是要通过做加法的方式,实现做减法的效果,还原“工业风”最具魅力的质感。
⊙B 区东大厅向上楼梯。亦如在最天然的食材面前,任何调味香料都显多余一般,还原其最纯粹的本质,是本项目设计的初衷。我们希望进入到室内空间的人,能够感受到曾经辉煌的工业时代,让纯粹的空间进行叙事。
⊙B 区东大厅空间错层关系
⊙B 区东大厅空间错层关系
A、B 两区投入运营后是作为演艺中心使用。弘石团队在考量声学设计的同时,思考空间与舞台的相通之处——演艺的表现力不应源自舞台,而是演艺的人,空间亦然。我们希望打造人的舞台,而非舞台的人,将空间还给奋斗工作在这里的人。置身于此,目光所及之处,不是争相惹眼的跳脱,而是坚毅稳重的场景。
⊙演播厅
⊙演播厅
⊙导控室 03 光影与时间
⊙B 区东西入口门厅 登记处
“我们的眼睛是为观看光线下的各种形体而生的,形体是美的,因为它们可以被清晰地鉴赏。”现代建筑大师勒·柯布西耶这样阐述光与建筑形体的关系。
⊙B 区东大厅
⊙自然光线
⊙B 区东大厅走廊
作为建筑改造团队,筑境设计利用大量的玻璃幕墙让建筑在新和旧的对比中产生对话。
作为室内设计团队,我们选择顺势而为,利用“光与影”为室内空间营造丰富的变化,让建筑成为捕捉光的容器。
⊙A 区东 1 门厅
⊙A 区东 1 门厅
我们希望让这座建筑的参与者,随着时间的变幻和季节的更替,感受到光影所产生的不同表情;随着墙体光影的变化,体会时间的存在与推移;随着开敞大空间所带来的空气流动,唤起对曾经辉煌工业时代与建筑空间的崇敬心。
⊙项目总图
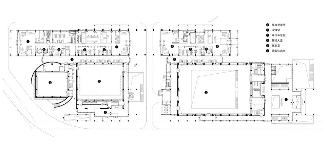
⊙项目首层平面图
项目信息
项目名称 | 首钢制氧厂南区 3350 车间改造室内设计
项目位置 | 北京市 石景山区
业主单位 | 北京首奥置业有限公司
设计单位| 弘石设计
设计范围 | 室内设计
项目面积 | 17,000㎡
设计时间丨2019
竣工时间丨2021
主创设计师| 李红庆 霍兴海
室内设计| 孙萌 雷春花
电气专业 | 师科峰
水暖专业| 沈隽 赵宏峥 田林林
合作单位
建筑设计| 筑境设计
景观设计| 北京清华同衡
项目摄影| 李晓光
客服
消息
收藏
下载
最近



























