查看完整案例

收藏

下载
武汉融创 1890
Wuhan·SUNAC·1890
中国,武汉
Wuhan, China
武汉只有一个 1890
“INTRODUCTION”
武汉汉阳铁厂,1890 年由晚清重臣张之洞创办。它是中国近代史上第一家,也是最大的钢铁联合企业。
在清代末年,为实现“自强、求富”的目标,张之洞在武汉推行工业、教育等新政。1938 年,日军入侵武汉,当时的汉阳铁厂搬至重庆大渡口,留下来的厂房全部被炸毁。
新中国成立后,在原汉阳火药厂的遗址上重建汉阳铁厂。2007 年,武汉汉阳铁厂搬迁,如今汉阳铁厂旧址已经停止生产,但厂区内上个世纪的厂房遗址和机器遗存都保存良好。
这一中国近代史上最早的官办钢铁企业,经历了风风雨雨,起起落落,其辉煌荣耀与衰落败退交织在一起。不同时代在这片厂区土地上留下了不可磨灭的痕迹。这些历史遗迹,折射出近代民族企业的艰难与曲折,谱写了中国近代企业的史诗与悲歌。
◎厂区旧照(业主提供)
厂区位于琴台大道以南,汉丹铁路以北,月湖西南部,面积 40 公顷,板块形似军舰。由世界著名设计师里伯斯金操刀设计的张之洞博物馆位于地块的舰尾。2018 年已建成对外开放。
◎厂区总图 汉阳铁厂工业遗址是武汉市民族工业发展、近代产业文化重要的空间载体,也是武汉市沿江工业地带“十里工业长廊”的重要组成部分。
◎厂区整体鸟瞰
2017年武汉汉阳铁厂入选工信部首批中国国家工业遗址保护名录,是目前武汉唯一上榜的工业遗址,也是目前武汉最大规模的工业遗址群落。
◎更新后城市形象(业主提供)
保护还是拆除?
“ PROTECT&REMOVE”
20 世纪 80 年代以来,中国大城市的快速发展是“翻新热”的诱因之一。许多缺乏质量的过时建筑需要更换。建于 80 年代和 90 年代的建筑无法赶上城市快速增长的经济发展,因此需要大量的改造以满足新的功能的需求。此外,随着中国摆脱重工业,大量工业用地被放弃;国际上重视利用工业用地的新趋势,中国政府和开发商也正在看到这个细分市场的潜力。
◎先导区选址
厂房建筑因其独特的体量与时代特色,寄托着上一代职工与周边居民的深刻回忆。在新的时代中重新改造更新这些老旧的厂房建筑,使其成为连接新旧时代的纽带,重塑着周边的场所精神,是开发商与建筑师需要担负的这个时代对历史与乡土的责任。
而先导区的前身,正是与张之洞博物馆相望的两座厂房。一座是一层厂房,为 80 年代后建设的氧气装站。工厂停工后,内部临时装了羽毛球运动场地,被列为三级工业遗产。另一座是南侧的 2 层厂房,制氧车间,建于 1968 年,主要为转炉炼钢提供生产用氧和压缩空气。该建筑被列为二级工业遗产,保存情况较为良好,外墙为红砖,生长了几十年的爬山虎爬满整个外墙,内部空间也更为高大完整。
◎先导区现状总图(北侧为三级工业遗产厂房、南侧为二级工业遗产厂房,东侧为张之洞博物馆)。通过多次现场调研,实际测绘老厂房和保留树木的定位,设计将前场没有保留价值的建筑全部拆除。场地内直径超过 50cm 的树木原地保留,未超过 50cm 的树木则就近移植,场地内的烟囱也被完整的保留下来。
◎二级工业遗产厂房改造前
◎二级工业遗产厂房改造前内部
武汉市汉阳区规划部门也对该片区的工业遗址进行了录入和归类。对工业遗产建筑物改造提出了详细的分级管控总则。三级、二级工业遗产的保护利用原则稍有差异。
在实地勘察后,我们采取将三级工业遗产厂房,结构加固,外墙面重新设计,增加幕墙和钢结构具有工业风格的材质。而二级工业遗产则重在保护。对风貌完好的外墙进行修缮,内部空间重新划分利用。
历史与现代的对话
“HISTORY&MODERNITY”
设计保留了原有的建筑结构和场地关系,尊重遗留厂房的体量,加入挑空的横向体量链接两栋厂房,形成全新的功能和流线。
建筑围合出尺度适宜的内向性广场,与东侧张之洞博物馆完全开放的入口广场相互独立又彼此联系。新的屋顶体系从原有厂房上生长而出,注入历史厂房以新的时代活力。
◎改造后实景
◎改造后总图
通过对不同级别的厂房采用不同层级的保留和更新,两幢厂房形成一种新的建筑群落关系。全新而张扬的建筑形态矗立在琴台大道一侧,开阔的前场提供了良好的展示面。
从与原有建筑空间和结构的对话开始,挖掘置入的新功能空间的主题特征,在自身合理组织的同时也时刻跟原有结构体系产生碰撞与磨合。两座保留建筑之间增加的矩形结构,使它们在空中伸展直至交汇,最终形成一个公共庭院。这种介入方式不仅构建了一个新的楼层,还为建筑赋予了一个具有凝聚力的中央区域,人们可以在这里散步、停歇或举办集市和表演活动。
◎轴侧分析图重塑与追溯“REMOULD&RETROSPECT”三级保护建筑氧气装站,靠近琴台大道,但其外立面特征不明确,保护级别较低。设计采用外立面重塑,内部结构有选择地保留下来。局部删除和新增同样结构模数框架,组织新的平面功能与空间。建筑立面采用陶砖幕墙和玻璃幕墙重新塑造,异型的钛锌板金属屋面,带来了丰富的第五立面,与张之洞博物馆张扬的体量相得益彰。
◎主入口(业主提供)
项目创新设计了十字花纹的砖花图案。十字花纹来源于厂区内部一座一级保护建筑的砖墙图案,原图案为菱形,且为砖墙砌筑而成。
◎四种模数定制陶砖
◎十字转幕墙大样示意
◎陶砖幕墙墙身大样
在三级保护建筑内部,设计置入了一些开敞庭院。这些庭院包括完全内置型庭院和靠外侧半开敞型庭院。完全内置型庭院可改善内部环境的采光通风条件;靠外侧半开敞型庭院则通过陶砖幕墙的围挡,形成了较为私密的共享空间。
庭院的置入,不仅为前期展览功能的参观流线带来了空间丰富性,也为将来共享办公的功能提供了更好的空间特色。
◎三级保护建筑采光庭院(业主提供)
本项目为陶砖干挂幕墙系统,通过长短不一内部龙骨布置,最终形成特殊的十字花纹。为呼应东侧张之洞博物馆张扬的造型,砖墙也如帷幕一样,轻挂悬起……
10 万砖只采用了 4 种基本模数,组织成三种不同的图案,随着第五立面起伏,形成全新的建筑语汇。
二级保护建筑制氧车间为二层砖混结构建筑,北面带有局部两层耳房,耳房高低不一。
外立面以红砖为主,开有方形窗,圈梁及柱子水泥砂浆抹平压光,外立面保存良好。
设计上采用整理保留的措施,对红砖外墙破损部位进行修缮。
◎内部庭院
进入内部庭院,就能感受到二级保护建筑的立面完整地被保留下来,原本高矮不一的耳房,通过技术修缮形成完整的屋顶,与空中连廊相连形成一处休憩的屋顶露台。
◎空中平台
站在庭院中央,一侧是反应新时代特征的建筑,一侧是承载着情感与使命的“旧厂房”,生长了 50 年的树木依然陪伴在侧。
修缮一栋建筑比建十栋建筑更难。建筑内操作空间有限,一次只能进一台车来清除陈年工业流水线设备基础;通过一系列的基础重建工程,完善建筑防水保温;对老旧结构、墙体进行加固来承接新的功能;新建的结构与主体结构脱开,增加新的楼层,最后实现传统厂房转变成现代共建;为满足新的使用功能的消防、排烟、节能灯要求,原屋顶被拆除,更换成全新的金属屋面。
◎屋顶拆除施工现场
◎改造后室内(业主提供)
为修缮二级保护建筑的外立面,在施工过程中采用了 6 种立面修复策略:
1. 现有墙面清洗勾缝,刷无色透明渗透性防水保护液。
2. 补洞墙体,外饰面颜色修复同周边墙体。
3. 新砌墙体现场抹灰,预留 10mm 厚度,外涂艺术砂浆,颜色同周边墙体。
4. 门窗洞口更新。
5. 室外架空的管道及外立面管道修复;管道外表除锈,外涂深灰色防锈涂料。
6. 线条基座修复重涂。
◎二级保护建筑门窗修缮前后对比
◎ 二级保护建筑外墙修缮前后对比
◎二级保护建筑外立面修缮
用自己的方式向历史致敬
"DO IT IN MY WAY" 如今修旧如旧似乎有了特殊的商业价值,人们对古建筑里的时髦店铺有莫名的好感。但这种表面上的“留存”做法存在很大争议。关于建筑遗产的保护思想在西方已经经历了二三百年的争论和演变,也经历过 19 世纪中后期如火如荼的风格性修复实践和之后对风格性修复的否定等阶段。“真实性”、“完整性”、“可逆性”、“可识别性”已被纳入新的国际准则。修缮应该“延年益寿”而要避免“返老还童”。对于现状已无法满足现代生活需要的建筑,我们的方式是破陈出新。
◎改造前后对比
新与旧的对比体现了建筑的时代性属性,新建筑终究也将成为历史的一部分,那么它就应该体现其所处的历史时期的特征。尽管与老建筑相邻,也许在形式、材料或细部上与老建筑有所呼应更能体现当代的技术与材料特征。
运用更容易被人理解的当代建筑语汇,使老建筑焕发新的生机。打造当代人更熟悉的空间形式,使用当代空间语汇,也使现代人对老建筑多了一份亲近感。感受到历史的变迁的同时,新建筑也以自身的方式向老建筑致敬。
目前本项目已被收录于《全国工业遗产名录-湖北卷》。感谢武汉融创在施工期间,战胜疫情带来的种种困难,对设计标准呈现严格要求。感谢全体武汉融创业主团队和各个设计团队的全程支持与配合。感谢三匠机电在设计中给予的帮助。
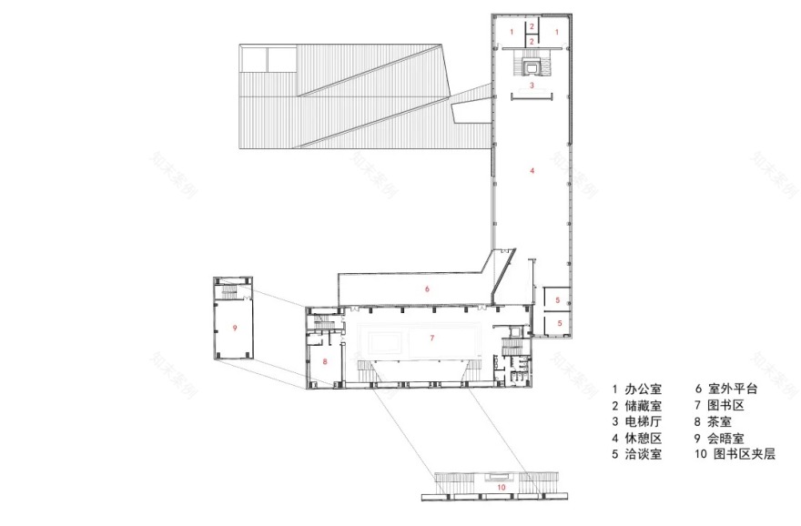
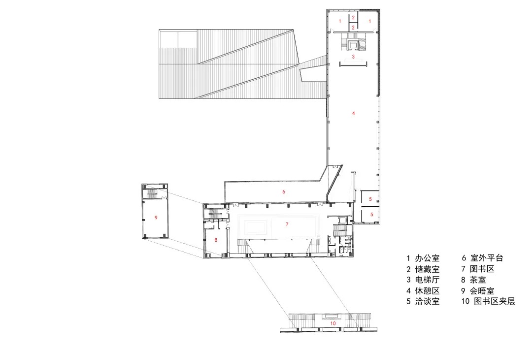
一层平面图
◎二层平面图
◎三层平面图
◎立面图
◎剖面图 工程档案 项目名称|融创 1890
项目位置 | 武汉市琴台大道 170 号
业主单位 | 武汉融景臻远房地产开发有限公司
甲方团队 | 黄庭 张晓亮 陈丝雨 黄晓荷 林慧敏 喻翔
建筑设计 | 上海日清建筑设计有限公司
设计总负责 | 宋照青
设计团队 | 魏文渊 李圣 单悠 张涛
施工图设计 | 中国轻工业武汉设计工程有限责任公司
景观设计 | 深圳市壹安设计咨询有限公司
景观施工 | 浙江恒春市政园林工程有限公司
室内设计 | 赵牧桓室内设计研究室
软装设计 | LSD 软装事业部
施工单位 | 中建七局
幕墙设计 | 上海安询外墙工程设计有限公司
幕墙施工 | 中建幕墙
钛锌板金属屋面 | 瓦敢当建筑装饰工程技术有限公司
陶砖幕墙 | 富陶科陶瓷有限公司
建筑面积 | 4112.97㎡
建成时间 | 2019.06/2020.06
建筑摄影 | 山间影像
客服
消息
收藏
下载
最近













































