查看完整案例

收藏

下载
海门·戴斯酒店
Haimen Days Inn
江苏,南通
Nantong, Jiangsu
建筑设计:上海睿风建筑设计咨询有限公司
建设单位:海门市金新泰房地产开发有限公司
项目地点:江苏省海门市
建筑面积:18000㎡
我没有一种通用的建筑语言,我认为每栋建筑都是需要基于在地背景和文化而设计
—Kerry Hill
海门市东临黄海,是6300公里长江入海口;境内河道纵横,水资源极其丰富。从陆地奔腾到海洋,这是一座拥有强烈的江海文化的门户城市。
◎基地现状
设计团队面临着两个困难,第一是用地为一个不规整,主体形态呈现1:6的瘦长薄板,且面积紧张。对建筑布局有诸多限制。其二为周边城市界面风貌陈旧,复杂多变。北侧及东侧为现状酒店和住宅,西侧为城市绿带及西北侧为城市地标“海门之星”。
◎体块生成图
在这种混杂的情况下,我们将酒店当成一个城市缝合的机会,形成一个具有强烈整体感的,将周边城市环境化繁为简的城市客厅,一个在嘈杂环境中脱颖而出的视觉中心。
建筑沿北侧城市主干道青海路展开,塔楼高耸形成视觉中心,体块沿东西方向错动,形成折角,与城市交叉口相呼应,同时增加形体丰富性。水平线条的错动、旋转和变化,丰富的立面效果,成为区域地标。
酒店主入口朝向北侧城市主路,内部围绕建筑形成环线,客人流线、后勤流线、消防流线互不干扰,顺畅便捷,并考虑了未来与南侧住宅入口形成一种连续的互动性与交融的体验感。
酒店运营方为戴斯酒店集团(Days Inn),是温德姆酒店集团(Wyndham Hotels & Resorts)旗下最大最著名的酒店品牌,旗下管理的酒店在全球15个国家内拥有超过160,000间各式客房。
充分呼应海门的江海文化,以“都市扬帆”为概念,提出“城市度假”的功能特色,与西侧的城市公园联动,沿城市主路形成一系列绿荫掩映,虚实结合的城市界面,在都市商务的气息中融入慢生活的休闲概念。
北侧亲人尺度广场有机的将建筑与城市融为一体,成为景观设计的特色。裙房部分为酒店提供服务的同时,也为周边住区提供商业与休闲文化服务,提升了社区的居住品质。
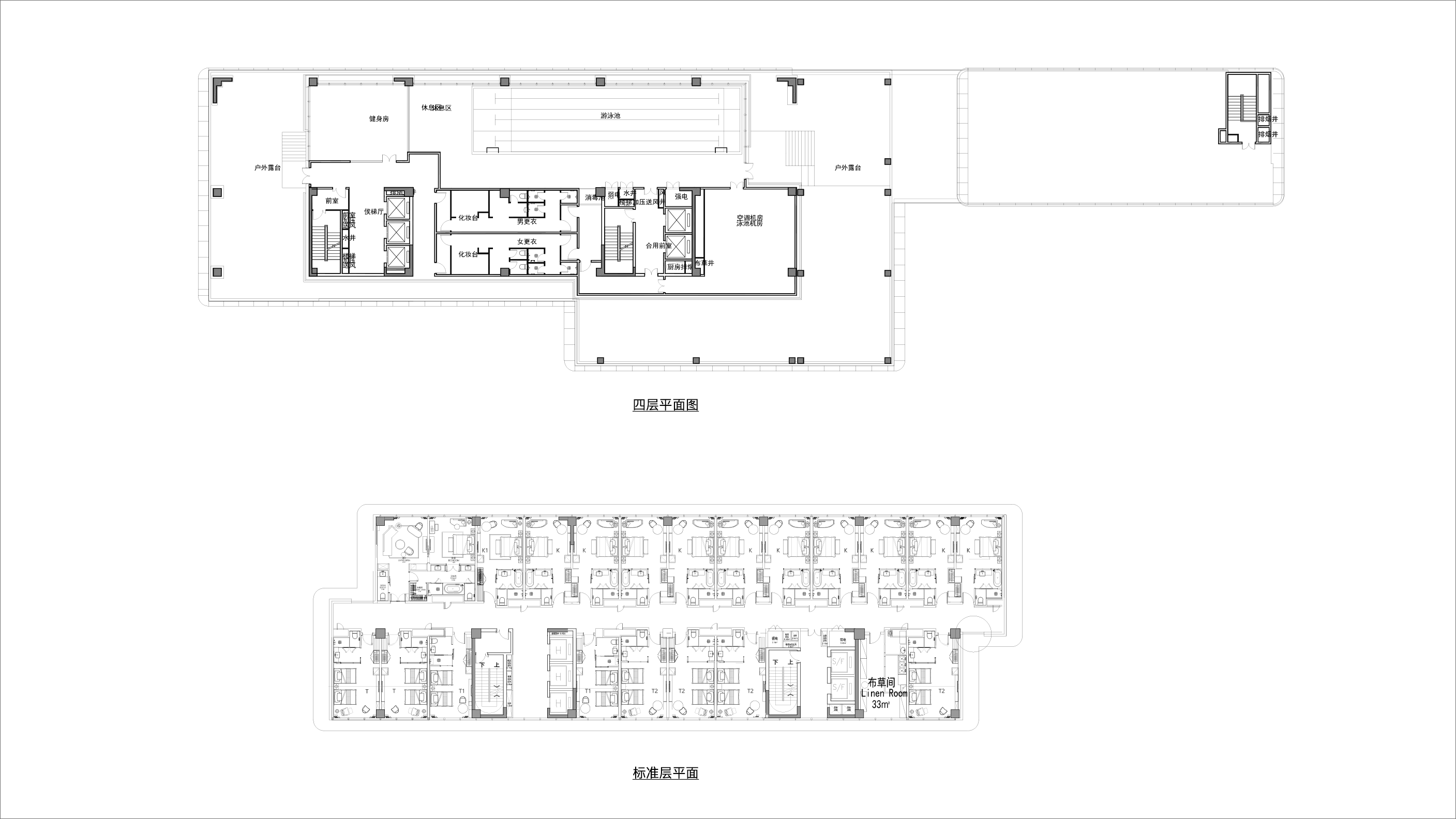
酒店的1-4层裙房主要布置公区功能,包含大堂、大堂吧、大宴会厅、中西餐饮、休闲娱乐等;5-12层为客房层,提供150间客房,包含标准客房、行政套间、总统套房在内的各种房型。
◎酒店流线及楼层分布图
旅客由北侧入口进入大堂后,由水平动线便捷的去往各公区分区,或由独立的垂直动线进入客房,互不干扰。在地下车库设置有专用客人电梯,连接到一层酒店大堂;后勤人员则通过专用后勤入口和垂直服务梯到酒店各楼层后勤区。
塔楼整体造型简洁而优雅,像一艘起航的船,缓缓驶入江海,船体下部优美的弧度犹如江水的波浪。主体采用玻璃幕墙加外挂银白色铝板水平横线条的处理方式,简洁大气;同时,通过不同楼层间水平线条90度的细微扭转,形成充满动感的肌理,在阳光下也产生出微妙的光影变化。
横向线条为建筑带来了漂浮和水平延伸感,而线条局部的扭转又为立面添加了些许灵动,让人联想到海面上的云起云落,波涛翻涌。
建筑材料目的是突出建筑的漂浮感和流动感,整体建筑立面为冷色系,银白色铝板外挂与浅灰玻璃的冷色调相互衬托。塔楼和裙房层间的横线条采用了3mm厚银白色铝板;塔楼主体的支撑式玻璃幕墙,采用6mm50+15A+6mm浅灰色双层low-e中空玻璃。
◎酒店外立面选材说明
大堂配合二层挑空,采用超白高透玻璃。塔楼山墙部分采用25mm厚深灰色外挂石材。通风口百叶与周边墙体相同颜色的铝板防雨百叶。入口采用二层通高的玻璃幕墙,雨棚宽36米,高6米,悬挑5.2米,靠内高度最厚2000mm,靠外最窄处仅500mm采用最外侧用了两30X100mm的型材压边,既让整个雨棚远看轻盈现代,又有利于结构受力。
雨棚通过30°斜向(不锈钢)拉索固定,有效降低主次框架的结构尺度的同时强化了入口的仪式感和标志性,采用1500X1600的单层钢化玻璃,对室外光线遮挡降到最低。入口材料采用与立面一致的3mm银白色铝板和8+8mm的LOW-E超白玻璃,保证北向大堂有良好的采光效果。
为了实现水平横线条的旋转造型,甲方最初曾想用超强GRC(造价昂贵,约3500元/米)完成非标准造型,最后综合考虑立面质感,结构荷载,成本控制等因素后,选择了最为常见的银白色铝板作为最终材料,重点放在深化的节点控制上。
最终通过标准段曲线放样来控制铝板的旋转形态,将曲线的曲率由1200mm调整为2000mm,简化了制作和施工工艺。达到了简洁、高效、经济的实现了预期的设计效果。
「技术图纸」
“ Technical drawings”
◎平面图
◎立面/剖图
◎节点图
项目档案
项目名称:中南海门戴斯酒店
建设单位:海门市金新泰房地产开发有限公司
设计单位:上海睿风建筑设计咨询有限公司
项目地点:江苏省海门市
建筑面积:18000m²
景观设计:广州山水比德设计股份有限公司
室内设计:锐度设计顾问(成都)有限公司
施工图设计:海门市建筑设计院有限公司
幕墙设计:普利兹希金幕墙设计咨询(上海)有限公司
摄影:耿广瀚
客服
消息
收藏
下载
最近






























