查看完整案例

收藏

下载
KNOWIN新天地店,项目总面积约700平米,位于上海马当路245号新天地时尚。设计师以80年代档案室为设计概念,在跨两层的空间中带给人们角色与场景转换的体验。
场景的转换,身份的转换,通过空间内材质和道具的变化产生。外立面波浪状起伏的造型由400多个编码的信箱组成,创造类似拉动抽屉时的动态感。
既存在于过去,又思考着未来。大面积的灰色砖,与不锈钢和金属漆的结合,带来复古却不老旧的时髦感。
一层为球鞋和服饰贩售空间,利用场地本身不规则的边界构建起多层弧形的空间结构。重新思考商品与客人之间的沟通关系,如果把商品看做资讯,档案室作为一个拥有大量资讯的空间,如何让人们一边满足于视觉上被充斥的信息,一边渴望获取更多?设计师如何让信息既丰富又有层次的传输给人们?在空间内重新搭建,置入逻辑秩序,再连接衍生出新的载体系统及组件。
内圈围绕着中央柱体,可移动的座椅和陈列柜,为空间提供可变动性,满足复杂的商业需求。中圈是墙面高的陈列架,结合弧形坡道的动线,连接并过渡内外圈。外圈则是服饰零售空间。错落的立面高度和地坪变化,使空间讯息能更好地传递。尽管视线所及之处都是满的,然而空间的间隔带来有呼吸感的节奏和更远的视角。
移动、旋转、分散、聚集,座椅和陈列柜于空间中切换形态,适应于零售与展览空间的属性变化。
楼梯作为一、二层的动线中枢,承载着空间转换的需求。仿佛是电梯厅的入口, 通过按键开启的电梯门和面板上出现的图案,增加了来访者与空间的互动性,也带来情绪上的转变。
将日常办公物品进行不常规的改造,粉刷喷漆,涂鸦文字,给熟悉的物品赋予潮流属性,有趣与怪诞诞生在转换当中。7个不同场景的试衣间设置,给到访者身份转变的试衣体验。镜面的不断反射让物件无限复制延伸,空间和时间的界限被慢慢模糊。
弹簧螺旋元素的挂衣杆灵感来源于装订文件夹的线圈环扣。设计师从档案室的物件中提取元素并演变加以功能化处理,将这一体量感贯穿空间。
二层为服饰、球鞋、潮玩贩售、策展和咖啡贩售的综合空间。收银区犹如办公室的工位,独立的屏风隔断和活动座椅,也是一个服务于功能性转换的场景搭建,在想象力中兼具了实用性。
阵列感的门洞过道和服饰陈列架,让消费者像穿梭于书架间一般,有序探索。
△龙门架细节
△二层球鞋洗护区
传统概念里档案室是较为封闭的空间,然而我们想让“存档取档”的购物体验更轻松自在。地砖、路障灯等材料带来了公共空间的开放氛围感。阵列化可开启的门洞,模糊了原本分隔的空间,产生自由流动性。封闭的室内与过道融合,带来更多功能上的可能性。
一切都是灵活的,从座椅、陈列柜到陈列潮玩的货箱。轨道的体系始终贯通空间,把室内的贩售延伸至外,也保留未来空间功能性变化所需的灵活度。
艺廊墙面采用了水泥挂网未经处理的手法,赋予空间粗粝感。综合了简单的材质和空间色调,让来访者更能关注于陈列的艺术品本身。
△VIP室
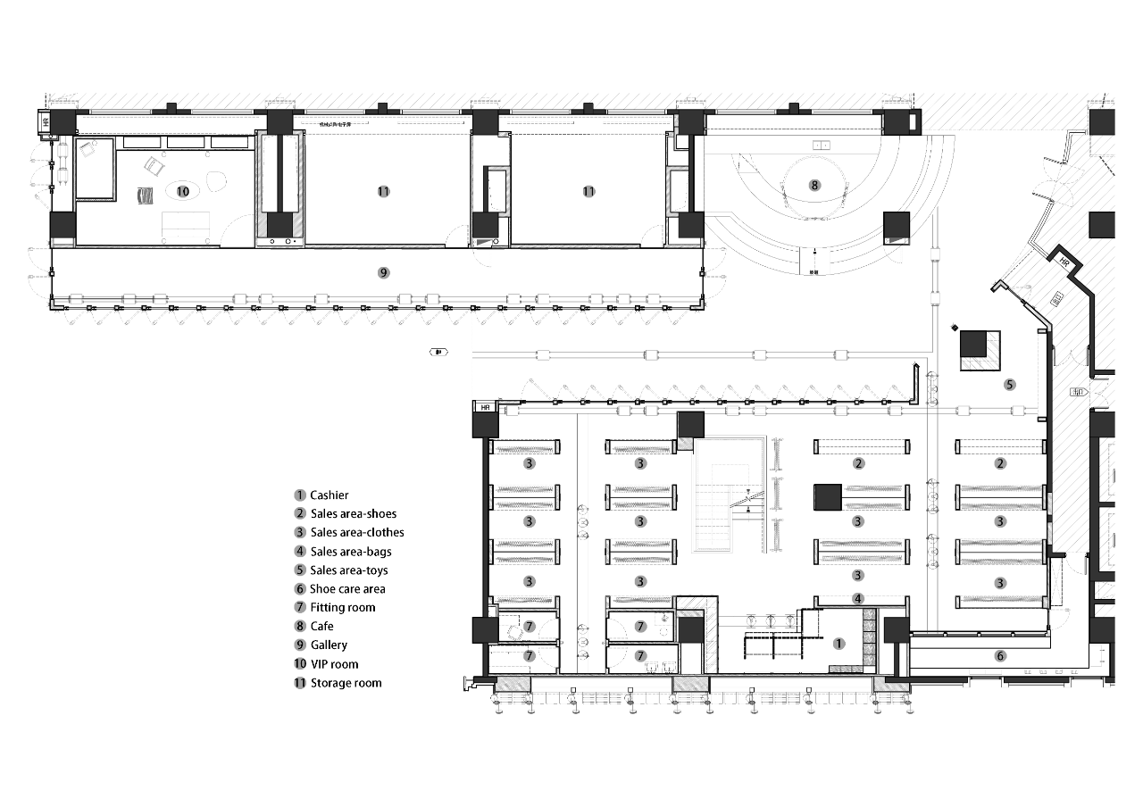
△平面图
△剖面组合图
项目名称|KNOWIN上海新天地店
项目地址|中国 上海
完成时间|2022. 01
设计机构|MHPD
设计总监|Paul 许玮轩
设计团队|庞吴优 郭超
硬装道具|斐视空间设计(上海)有限公司
主要材料|仿古砖、釉面砖、不锈钢、金属漆、卡乐板、银镜
项目摄影|陈颢
许玮轩PAUL HSU
MHPD的主理人
PAUFECT艺术项目负责人
MHPD由Paul Hsu和Mike Lin于2012年创建于上海,专注于室内设计及装置设计。在探索外部空间形态的同时,也注重内部造型与材料动向的整体表达,我们所涉及的领域在不断扩展,每一个项目都在探索材料的边界和设计的可能性。我们希望致力于设计本身的同时给每个人带来不同的情绪体验。
客服
消息
收藏
下载
最近














































