查看完整案例

收藏

下载

翻译
Video © Dan Barreri
建筑师:Mateo Arquitectura
位置:Serrano 18, Madrid, Spain
年份:2020
客户:Banc Sabadell
Installation Engineering:Tasvalor
Structure:BAC Engineering Group
Signage:Mario Eskenazi
Acoustics:Ivana Rossell
Furniture:Graó
Photogragy:Pedro Pegenaute
At a time of transformation for bank branch offices, here, as an experimental proposal, we created a space as a place to work and to meet. Open but active. Private when necessary.
Our intervention in a pre-existing space sets out to enhance it, to dialogue with it, not just to add an indifferent new layer to the underlying base. In a central place, open to the city and to an incredible courtyard at the centre of a street block, with large trees and vegetation, dialogue with the outside (with the city and with nature) also constitutes a thread in the design.
The language is abstract, the environmental conditions (light, sound) addressed with particular care. The space is muted, with nuanced lights and open but controlled views.
Space for work and for personal meetings.
Josep Lluís Mateo
GUIDED VISIT
Banc Sabadell Space is housed in a 19th-century building, opposite the National Museum of Archaeology. The green area in front of the museum dialogues directly with the garden situated at the other end of the branch office.
From the outside, the window, raised above the level of the street, directly shows off the workplace, in an abstract, professional but sober environment. The large logo applied to the glass, designed by Mario Eskenazi, introduces a filter between inside and outside.
In the entrance, a vinyl reproducing and monumentalizing the garden within, the work of artist Jordi Bernadó, acts as a filter between the ATMs and the area for independent transactions, and this work area, half-exposed to the outside.
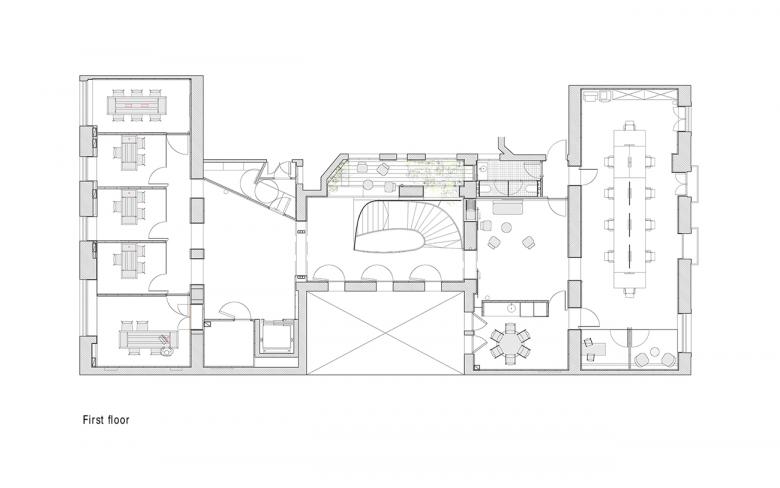
This branch office is divided into two floors. On the ground floor, where the floor folds to smooth out pre-existing changes in level and eliminate architectural barriers, there are also permanent workstations for quick responses to clients’ queries.
Around the central staircase on both floors, a communal space created for meeting and interaction also acts as a separator. On the ground floor, it separates the reception and window area from the permanent and consultation work stations.
The maxim of transparency is followed throughout. Although the spaces are delimited, the layout plays with the separation elements, furnishing and windows, designed to maintain visual connection between the various areas. A feeling of openness while preserving the privacy of employees and customers.
The structure of the big staircase that joins the two floors has been maintained, adding just a lightweight glass floor slab and a railing with a very particular geometry that blends in with the existing aesthetics.
The private area, reserved exclusively for employees, is located on the first floor, overlooking the beautiful interior garden. This area includes the back office and cubicles for internal meetings, and a kitchen and flexible area, where the furniture adapts easily to the various needs: rest, informal meeting, class or presentation, etc.
On the other side of the staircase is the director’s office and various meeting rooms to discuss more complex issues with customers.
All of these rooms can be adapted quickly and easily to the needs of each meeting.
The corporate image has also been redesigned to give continuity and coherence to this stately, sober, elegant line.
客服
消息
收藏
下载
最近
























