查看完整案例

收藏

下载

翻译
Empfangszone
照片 © Mint Architecture AG
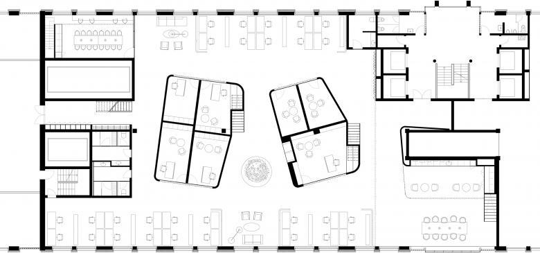
Die 800 m2 grosse Halle wird durch die drei Kuben zoniert und in eine öffentliche und eine private Zone angeordnet.
照片 © Mint Architecture AG
Eingangsbereich
照片 © Mint Architecture AG
Meetingräume
照片 © Mint Architecture AG
照片 © Mint Architecture
照片 © Mint Architecture
Kuben
照片 © Mint Architecture AG
Eingangsbereich
照片 © Mint Architecture AG
照片 © Mint Architecture AG
Besprechungszimmer
照片 © Mint Architecture AG
建筑师:Mint Architecture
位置:Seehallen Horgen, Seestrasse 87, 8810 Horgen, 瑞士
年份:2020
Auftraggeber:Bank Zimmerberg
Markets:Work & Education
Projekt
Neuer Hauptsitz in einer Industriehalle zur hybriden Nutzung als Workplace und für die Kundenpflege.
Fläche
800 m2 auf einem Stockwerk
Auszeichnung
German Design Award Winner 2021
Seit zweihundert Jahren ist die Bank Zimmerberg eng mit ihrer Heimatregion verbunden. Der Umzug von der Dorfmitte in eine 800 m² grosse Industriehalle mit Seesicht öffnete den Weg für einen neuen Hauptsitz.
Spiel mit Gegensätzen
Eine einstöckige Industriehalle mit Seesicht und vielseitige Ansprüche an die Raumnutzung formulierten den Wettbewerb, zu dem die Bank Zimmerberg für die die Gestaltung ihres neuen Hauptsitzes eingeladen hatte. Dieser sollte sowohl für die bis zu 50 Mitarbeitenden als auch für die Kundinnen und Kunden der Bank ein inspirierender Ort zum Arbeiten und für Begegnungen sein. Eine Unterteilung der Halle mit einem Zwischenboden kam jedoch nicht in Frage, um Platz für die unterschiedlichen Nutzungen zu gewinnen. Umso mehr begeisterte der Vorschlag von Mint Architecture, den Raum architektonisch in eine private und eine öffentliche Zone anzuordnen und mit drei skulpturalen Kuben eine zweite Ebene zu schaffen.
Skulpturale Formensprache
Während Skulpturen normalerweise der Betrachtung dienen, erfüllen die drei zweistöckigen Kuben bei der Bank Zimmerberg funktionale Zwecke. Sie interagieren mit ihrer Umgebung und strukturieren die Fläche. Mit ihren schliessbaren Räumen bieten sie die erforderliche Privacy für Kundenberatung, Meetings und vertrauliche Gespräche. Sie prägen das Raumgefühl und die Customer Journey, wobei sich die Besucherinnen und Besucher sowie die Mitarbeitenden stets in kleineren offenen Einheiten bewegen und aufhalten und dabei die Grosszügigkeit der Halle und den See überall wahrnehmen. Gleichzeitig prägen die aus einem Aluminium-Komposit bestehenden Kuben das Design des Raumes und integrieren Ecopanels für den Schallschutz.
Verbindung von Tradition und Innovation
Mint Architecture übersetzt die Werte und Identität der Bank in ein Design, das traditionelle Materialien mit innovativen Formen verbindet. Statt eckiger Kanten sind Aluminium und Glas der Kuben abgerundet und mit dem eingelaserten «Z» dezent gebrandet. Sämtliche Leitungen der Halle sind nach wie vor sichtbar, jedoch weiss gestrichen und setzen so einen wirkungsvollen Kontrast zur Einrichtung aus Holz und Glas. Hochflorige Teppiche, bodenlange Vorhänge, die zusätzlich dem Schallschutz dienen, und eine harmonische Farbgebung unterstreichen die Charakteristik des Raumes.
客服
消息
收藏
下载
最近












