查看完整案例

收藏

下载
没有任何的遮掩和修饰,一五一十地面对,承载,担当,以不变应万变才是硬道理和座右铭。
写在设计之前……
虽然我们拜读过很多大神的设计,但每当自己面对一个新的项目之时,依然会止步于变化的宗地条件和甲方需求。然而,作为一个成长中的设计公司,我们面对更多的是地产市场的主流发展趋势,如:
- 标准化趋势;
- 示范区即大区;
- 时间压缩整合;
- 反季节开放。
等诸多设计挑战。本次未琦将以沈阳龙湖云峰原著示范区,一个冬季开放的销售冠军为例,把设计中遇到的问题和挑战向同好们做一次总结式的陈述。
我们将摒弃晦涩的文案式辞藻,把“设计解决问题”的过程和思维方式“一五一十”与大家分享。
01
项目解读
Project Understanding
项目背景
项目位于城南新区核心板块,毗邻中央公园轴线带,周边城市配套完善,北侧为主要车流来向。
周边较多文化机构、政府办公以及科技园区,是未来的城市新贵聚集地。
设计定位
设计整体定位为现代简约的基本设计语言,局部点缀艺术化时尚气息的景观元素,并体现未来大区的生活场景。
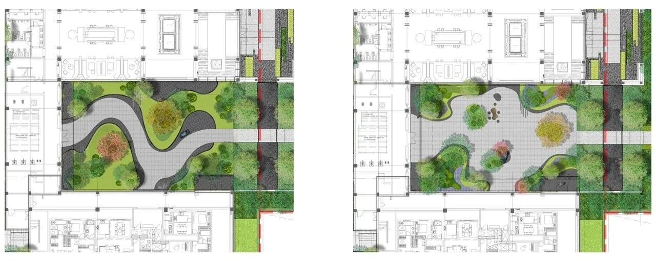
总平面图©未琦景观
02
五彩斑斓的黑
设计挑战&景观策略
标准化需求&风格创新?一个空间&多种情绪?展示区&大区?东北项目&冬季开放?景观建筑设计&一体化推进?
标准化介入,如何合理使用和创新?
七月底拿地,11 月建成,年底开放。严苛的建设周期,既压缩了景观建筑风格的决策周期,也缩短了复杂节点研究的周期。我们在建筑景观协同工作的同时,也需要面对标准化介入的设计要求。
景观作为建筑的延伸空间,很难看到完全接近的两块宗地。如果把设计语言和细节把控的标准化比喻成枝干,那针对客群定位的设计反馈、对空间条件和限制的解读,以及针对特殊季向条件的对策就成为了本次景观设计的核心支撑根基。
在甲方、建筑与景观共同考察和研究后,景观设计明确了紧张节奏下的设计任务:
- 与建筑共创推进空间布局
- 实现开场大空间与丰富动线感受的共存
- 满足展示区与大区使用无缝对接
- 满足沈阳冬季开放的景观丰富性
时与序
一个空间的多种情绪
设计策略:
在保证一个空间完整性的前提下,利用空间构成,使之在不同视角产生观感差异,从而制造各个位置的视线情绪。
分析草图©未琦景观
进入大门,两侧构筑物和售楼处建筑被窗景暂时遮蔽,人们透过格栅看到的是形式感很强的折线和雕塑感构架,由此作为了进入高墙秘境大门后的一个开启的节奏。
在通道空间的尽头,安静的雕塑景墙预示了情绪的转折。
置于悬挑廊架之下,水系变成了一条蜿蜒的小溪,雕塑感构架由视线焦点变为画面边框,景观变得安静下来成为建筑的衬托。在这个画面里,乔木也选择了竖向结构的银杏和欧洲小叶椴,掩映了建筑并丰富了画面感。
步入广场,水面局部变宽,建筑在水中形成倒影。
悬挑廊架与建筑呼应,协同营造沉稳安静的空间氛围。
走过广场,会逐渐感受到尽端构筑物的震撼。
在跌水之后,隐藏着一个“下沉式”的休憩空间。既能作为销售时期的停留空间,也会作为未来大区的会客区。人们可以在这里坐着看孩子们在广场中嬉戏的情景。空间的情绪在这里转为对未来大区生活的预告。
这里植物的设置是后期在现场与甲方聊天时候灵机一动的想法,希望用阵列的灌木球形成一种整齐而活跃的场景。这张照片也显示了这种配置在阳光下有趣的光影变化。
关于华盖<br>我们思考了很久,最终确定了现在的方案。<br>现代的,震撼有力量感的,可以遮阴的,不占用空间……
分析草图©未琦景观
后期,为避免放大后图案比例失调,我们把单元的花纹进行了一比一的打样,对效果评估,直至调整到最优状态。
进入洽谈区后,大门与雕塑构筑成为了画面的边界。对景重新变为安静的廊架景墙,以及蜿蜒的小溪。视线的情绪又转变为与来时站在对面看向建筑一致的宁静感。
展示区即大区,如何兼顾?前场:前期迎宾和对景空间
分析草图©未琦景观 未来归家与会客广场
分析草图©未琦景观
后场 前期动线对景+居住品质体现。
分析草图©未琦景观 未来都市新贵的多功能盒子
分析草图©未琦景观
各个视角的构成感以及恰到好处的空间分割,既作为看房动线结尾的同时,也是未来园区的休憩空间,承载客户对未来园区生活场景的憧憬。
对于未来生活场景的展示,我们做了时间和人群的细分,使其在各个时间段,服务各个人群时,都能满足全龄全息的使用需求。在构筑物的设计上,我们摒弃了北方常规的柱廊式的构架,使用更简约和偏室内的做法打造,力求保证各个视角的构成感以及恰到好处的空间分割以及透景漏景。
中庭(临时空间)前期样板院和洽谈区对景
分析草图©未琦景观
未来幼儿园内庭(最小拆改)
分析草图©未琦景观
中庭在早期设计时作为动线中“收”的空间,设置了蜿蜒的小径搭配恰当的植物来做视线遮蔽,希望在进入后场之前形成欲扬先抑空间的节奏。
在方案后期,营销介入方案,希望改为广场式的空间,用以承载十几人的营销活动,另外未来改为幼儿园庭院时也能保留硬质场地基础,做到最小的新建和拆改。
平面推敲过程©未琦景观
沈阳冬季开放的园区,我们做了什么?
雕塑感的园子。
用线条状的水系和台地取代大面积水景,在重要视点呈现较宽水面映衬建筑。
分析草图 © 未琦景观。利用微高差呈现空间转折质感,制造局部遮挡和视线节奏。
分析草图©未琦景观
构筑物构成研究
核心对景:激烈的雕塑感
分析草图©未琦景观
围合廊架:安静的面域感
后场构架:生活的构成感
景观建筑设计施工一体化,如何携手推进?景观从区位和流线分析入手,对建筑平面选址和销售动线最大化提出建议。
分析草图©未琦景观。把建筑作为景观的立面考虑,根据设计需求给出正负零建议。
根据前场销售期和为未来大区使用需求,对大门位置提出建议。
分析草图©未琦景观。梳理建筑与景观的关系,互相借用,打造恰到好处的整体景观,以中庭与后场交接空间为例。
后期方案施工相互配合,共同协作,确保呈现最优状态。
“后记
云峰原著示范区如期开放后,受到了来自甲方、来自同行业的一致好评。
除本身地理位置优势之外,我们也相信景观和建筑在严苛条件下的助力,使示范区作为未来大区的一部分。这在沈阳的冬季,让购房者产生了对未来生活的憧憬与向往。
在设计中,解决问题的同时也是自我提升的过程。作为一个成长中的设计公司,很幸运能对接这种机遇与挑战并存的任务,也感谢同事们的团结协作以及甲方的支持和帮助。
此次分享,可能没有为大家提供任何方法论或逻辑链的建议,只是“一五一十”地把一个面对并解决问题的过程阐述出来。设计思维是多元的,解决方案也绝非只有一个答案,我们必须对此进行权衡、比较、思辨,然后得出自己想要的答案。
项目信息”
项目名称:沈阳龙湖·云峰原著 示范区业主单位:沈阳嘉奕房地产开发有限公司景观设计:北京未琦建筑景观设计事务所设计主创:张云尧、孙欣设计团队:才魁、张旭光、王晨帆、刘洋洋、张婉、郑紫文施工单位:大连山水一禾景观园林工程有限公司建筑设计:水石国际软装设计:沈阳中裕景观工程有限公司项目摄影:重庆耀荣文化、之间建筑摄影、未琦景观才魁项目地点:辽宁省沈阳市项目规模:9633㎡竣工时间:2019 年 12 月
客服
消息
收藏
下载
最近











































































