查看完整案例

收藏

下载
中国的传统建筑建立在一种自然观之上,摩登东方语境下的传统,是回望,也是对未来的呼应,它是一种由内而外与自然的对话,彰显现代主义秩序感下的东方意境。
因疫情日益封闭的城市心态造就了公众不一样的心理反应,当逃离都市不再成为一种说走就走的可能,如何在瞬息万变的城市生活中享有隐秘栖居的度假感,构建更为理想的人居模式,是我们当下与未来始终在探讨的议题。
With globalization and urbanization and the lingering impact of the pandemic, we need to address the relationship between people and cities, people and nature, and people and people.
阿尔多·罗西提出“城市是人们集体记忆的场所及载体”。人在空间的位置,对地方的归属感,情感记忆及未来想象皆有可能决定城市的面貌。在杭州海威项目中,我们从杭州城市本身的文化与都市特性出发,用设计语言建立起历史与未来的对话,同时对当代都市精英的生活方式、对未来空间美学的关系进行探讨。
Aldo Rossi proposes that ‘the city embodies the collective memory of its people.’The appearance of a city is determined by people’s residence, their sense of belonging, emotional memory, and outlook of the space. We started a dialogue between history and the future while redefining the lifestyle of contemporary urban elites and future spatial aesthetics.
如何在摩天大楼中塑造理想的生活形态?无间从摩登东方的设计语言出发,给出了属于自己的答案。
What exactly is the ‘ideal home’? The answer is in our design language of Modern Orientalism. 模糊秩序与形式的边界
东套| 概念解析图
东套|体量拆解图
一直以来,我们都试图在空间中注入自然的诗意与想象,相对于空间的功能性存在,我们更注重人的空间体验。
We have always tried to make the space more poetic and imaginative. We prioritize men’s spatial experience to space function.
因此我们在东边套的设计中,用更为现代的几何框架重新建构空间秩序,消解室内与自然的边界,为当下都会的精英人群描摹了更多元丰富、先锋当代,同时又充满东方诗意的生活形态。
For the East Suite, we adopt a more modern geometric framework to reconstruct the spatial order and dissolve the boundary between the interior and nature, to portray a more diversified and pioneering contemporary world and an oriental poetic lifestyle.
我们以现代主义空间的秩序为基准,将整个空间想象为未经雕琢的大型天然石材,经由实体开洞,以古代造园的精神置入拱廊、廊桥、踏步及金属构建限定空间,对其进行梳理重构。
We take the modernist spatial order as the benchmark and treat the space as an uncut stone. In the spirit of ancient gardening, we place arcades, bridges, steps, and metal construction to define and reconstruct the space.
具有东方玉石温润质感的绿色云石片与黑色的金属框架融合了东方与现代,构成了挺拔、精致的空间效果。
The jade-like green marble pieces and the black metal frame fuse the oriental and the modern, creating a straight and exquisite look in the space.
餐厅、会客厅及辅厅的空间进行规整,形成了空间的中心,而辅厅空间则被安排在建筑原有立柱构建而成的椭圆柱体后,丰富了空间递进关系的同时,营造更有意境的生活意趣。
After reconstruction, the dining room, the parlor, and the auxiliary lounge become the center of the space. The auxiliary lounge is behind the main cylinder construction, which enriches spatial layers and creates a delight in life.
我们脱离传统与意识形态的制约,形成空间的正负极,东方园林的概念与节奏被引入,空间被重新梳理与规制,公与私,动与静,形成可漫步的、流动的微缩宇宙。
Free from traditional ideology, we have created the positive and negative poles of space and introduced the concept and oriental gardens. The space is reorganized, integrating public and private, dynamic and static features, forming a miniature universe of movement.
具有秩序感的椭圆形空间之外,我们打造了两处室内庭院,透露出朦胧的东方感,置身其中,仿佛融入自然中。
Beyond the orderly oval space, we have built two indoor courtyards of dreamlike oriental beauty, as if we are in nature.
同时塑造了向上的台阶,形成微地形的变化,引导人通过廊道,呈现进入私领域的仪式感。空间的次序逐步递进,虚实相间、曲折变化,如同游走于园中。
The rising steps form variations in microtopography, guiding people through the corridor and making entering the private domain ceremonial. As we gradually progress, the trees vary in imagination and reality, and the path meanders.
离开公共区域,圆弧形的“剧场”将情绪推向高潮,拾级而上,富有古典宗教意味的白色拱门通向更为纯粹的彼端,人在空间中的体验进入另一种节奏,缓慢而沉静,带来直抵内心的力量。
Leaving the public area, we reach the climax which is the arc-shaped “theater”. The classical and religious white archway leads to a purer space, where a calm rhythm awakens our inner strength.
路过连廊,呈现在眼前的是精致的私人小酒吧,无论是与伴侣小酌交谈,还是远眺观景,都惬意且浪漫。
Passing through the corridor, we face an exquisite private bar. It is relaxing and romantic to enjoy a drink and talk or overlook the scenery.
我们将空间的想象置于视觉刺激之上,将空间平面进行拆解,寝具、衣帽间、浴室、书房、火炉作为被掏出的体块被置入雕琢后的石材,打破空间的固有形制,营造氛围感,真正呈现有时间维度的居住体验。
Our imagination of space depends on visual stimulation. We dismantled the space and implanted bedding, checkroom, bathroom, study, and fireplace into the carved stone. Only by breaking the inherent layout, can it truly present a living experience with a time dimension.
富有东方质感的厚重天然水磨石、温润的玉石、深色木质面以及古铜金属等材质也被运用其中,低调而稳重,疗愈放松,东方情韵与现代美学相映成趣。
We also used terrazzo, jade, dark wood, and antique copper, which is low-key and prudent, healing and relaxing, full of oriental charm and modern aesthetics. 将空间解构为感官体验。中国园林从来不只是空间的艺术,更是时间的艺术。
西套| 概念解析图
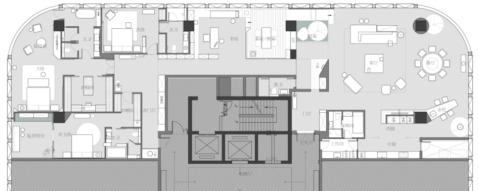
西套| 平面图
设计师是一场生活剧的导演,空间是情境的发生地:演绎、塑造、延展……我们设计空间,也塑造生活的不同意趣,在一方宅邸里构建一座诗意的山水庭院。
The designer is the director of a drama of life, and the space is the venue for interpreting, shaping, and extending… We design the space and direct the life.
无论是三五好友品茗相聚,缱绻夫妻望月小酌,抑或独自度过闲暇时光,在西边套的设计中,我们通过设计语言,将自然园林引入室内:听风、嗅味、感知温度,通过充分调动人的五感,体验空间节奏的高低变化,一场仿佛置身于自然园林之中的趣味在空间中生长出,真正具有诗意情趣的生活就此展开。
Whether it is a gathering for tea, a loving couple looking at the moon and enjoying a drink, or you spending leisure time alone, in the West Suite, we introduced a garden of nature with wind, smell, and temperature. By fully mobilizing the five human senses, joy of nature arises and a truly poetic life is unfolded.
我们基于摩登东方的设计语言,通过对整个空间动线的设计,从日常、相聚、享受到最终回归沉静,强调空间所带来的多重体验。
Based on the design language of Modern Orientalism, we open the five senses of humans through a dynamic line.
原本局限的空间条件被充分利用,整个空间形成了富有仪式感的层层递进,人的感官体验被充分调动,神秘、曲折,引人探索。
From daily routine and gathering to returning to silence, we emphasize multiple experiences, and make full use of the limited space, to make it a ceremonial progression, where the mysterious human sensory experience is fully mobilized.
步入玄关,进入门厅,沉浸式的感官之旅由此开始。我们依据原本局限的空间条件,将公私区域进行巧妙划分,首先映入眼帘的是豁然开朗的公共区,与城市天际线的景色遥遥呼应:会客厅、餐厅、中西厨及水吧被规整在整个大的公共空间。
The immersive sensory journey begins when you step into the foyer and the entrance hall. The public and private areas are artfully divided based on the original layout. An open public area is the first that comes into view, echoing the city skyline. The meeting room, dining room, Chinese and Western kitchen, and bar can be found in a large public space.
分开的中西厨与水吧的折角呈现空间趣味的同时与餐厅互动,加强人与人之间互动性的同时,也展现更多生活形态的可能性。
The corner dividing the Chinese and Western kitchen and the bar displays the space interest while interacting with the dining room, strengthening the communication, and offering more possibilities of life forms.
目光一转,具有园林气质的庭院为空间增加东方趣味的同时,又通过火炉的局部形成空间上的连贯与流动。通过动线的处理,整个空间公私分明,动静相宜,行走当中的距离感和视线变化的趣味,是渐入佳境的过程。
The courtyard of nature infuses oriental interest into the space while forming a spatial coherence by adding a fireplace. The space has a clear division of public and private areas, combining dynamic and quiet vibes. The sense of distance and shifting views is a process of getting more joy.
在东方文化中,园林和茶室起源于文人墨客寄予闲情雅趣的场所。我们将连廊打造为书房与雅室,进行空间上巧妙的过渡。
In oriental culture, gardens and tea houses were spaces for literati to exchange philosophical and artistic ideas. We turned the corridor into a study and elegant room.
茶室的屏风界定空间的同时,又通过穿插其间的缺口形成探幽的趣味,空间随目光变得流动起来,通过小孔、穿过窄缝、越过隔断……视线透过火炉的开口隐约可见,庭院诗意盎然,充满节奏与韵味。
The screen in the tearoom defines the space, and the alternate gaps form a joy of unraveling mysteries. Our gaze wanders in the space, through small holes, narrow slits, the partition... the opening of the fireplace, and the poetic courtyard poetic is vaguely visible.
一种小径探幽的意趣跃然而成,我们利用地形上高低差的关系,形成一种园中漫步的感觉。另一边,也与书房的区域联通,形成了丰富有趣的动线,就如同观景游园,停留、小酌、凝视、赏玩……一切都变得顺理成章。
With an interest in exploring secluded paths, we made use of the topographic variations to create a sense of walking in the garden. With the fluctuation of the path, we enjoy leisure strolling. Connected to the study, the path becomes a dynamic route of the garden tour. Everything becomes logical.
围炉烹雪,寒夜听琴。真正的奢侈,远非昂贵材料的堆砌,亦不仅在于空间的奢华,更是通过对空间的规划与构建传递出具有东方诗意的意境场,达到人精神上的愉悦。
Brew tea with snow and listen to zither in the cold night. Real luxury is not about expensive materials or luxurious space, but the oriental poetic mood and pleasure through spatial planning and construction.
我们希望空间场景与不同的生活形态相对应,通过对人工与自然景致的和谐营造,构建起了东方诗意与静谧的场域,以设计之下隐匿的人文精神,探索当代都市人群不同的生活形态。
We hope that the spatial scenes can correspond to different lifestyles. By creating a harmonious artificial and natural scenery, we build a bridge to oriental poetry and tranquility, which is calm, relaxing, and elegant, and explore different life forms of contemporary urban residents.
室内设计:W.DESIGN 无间设计
软装设计:W.DESIGN 无间软装
项目名称:杭州海威叁拾浔
设计面积:530㎡
项目地址:中国 杭州
完工时间:2022 年 6 月
摄影:王厅
撰文:Kris
客服
消息
收藏
下载
最近










































