查看完整案例

收藏

下载
別墅
“自然生长会呼吸的空间”
线条的流动感在空间里贯穿始终,设计大面积温润的米白色,绿色的点缀让生活增添一抹新意,构建出空间的气质轮廓。挑空空间引入充沛的天光与草木绿相互点染、衬托,整个空间显得明亮轻盈有生命力,给人一种会呼吸的宁静感受。
△ 客厅
墨绿色是一种中性的颜色,没有灰色的冷淡严谨,也没有橙色的活泼跳跃,它是一种象征着成长有生机的色彩。
△餐厅
负一层的空间与休闲娱乐区保持独立的同时又增加了互动性,这样的布局让空间充满层次感,也创造出更多的可能性。
△休闲娱乐区
空间是人类意识的居所。没有实体墙的居室犹如一个大的单元,开敞式的衣帽间采用木质格栅做隔断,保证私密性的同时,不仅让主卧的视觉效果更加开阔,也增加了空间的流动性。
在设计上,为了追求大空间所带来的尺度感,设计师摒弃了过多的隔断与装饰,使用原木色隔而不断的空间格局,从材质的构成中自然地延伸。
△ 主卧
主卧洗手间由彰显现代都市的亮面大理石墙铺设而成,木色渲染舒适意境,不仅让空间更显得宽敞通透,而且大大提升了空间的质感。
△ 主卧洗手间
儿童房在设计中讲究色块的分割,使用蒙德里安的装饰画让空间达到和谐统一。艺术装饰品装点空间细部,布局看似简约,却处处呼应。
△ 儿童房 叠层 “ 一个理想的现代生活空间”
设计于此将呈现符合现代质量美学的叠层空间,以淡雅柔和的米色和干净的暖黄色为基调,色温适宜颇具治愈功效。
△客厅
空间共分为两层,一层以会客功能为主,二层则是生活休息区。客厅与餐厅彼此串联,自由而流动。
△餐厅
无序缠绕的艺术吊灯,投出淡淡的光,如一股无形的烟雾在曼延,营造出温馨恬静的用餐空间。
阳台大落地窗,轻柔白色半透窗帘,敞开式布局,光线在空间错落的层次中肆意流淌。
楼梯与客厅之间用亚克力通透的材质做了隔断,延伸空间视觉的同时,又最大化地将光引向二层。
让感受回归细腻。主卧延续了整个户型优雅温柔的调性,床头现代简约的线条吊灯与米色背景的低调慵懒更适合拥抱沉沉的睡意。
△ 主卧
男孩房充满线条与几何的秩序感,黑色线条搭配彰显时尚活力的铭黄色令整个空间更具强烈的表现力。
△ 男孩房
女孩房在延续白净的空间调性之上,用自然又元气的橘粉色点燃了整个空间,甜而不腻的橘粉色给空间带来不一般的美感。
△ 女孩房
老人房无需刻意的装点,即令空间流露出生活安稳、简约雅致的灰色调适度营造沉稳睡寝氛围。
△ 老人房
平面图纸呈现
別墅
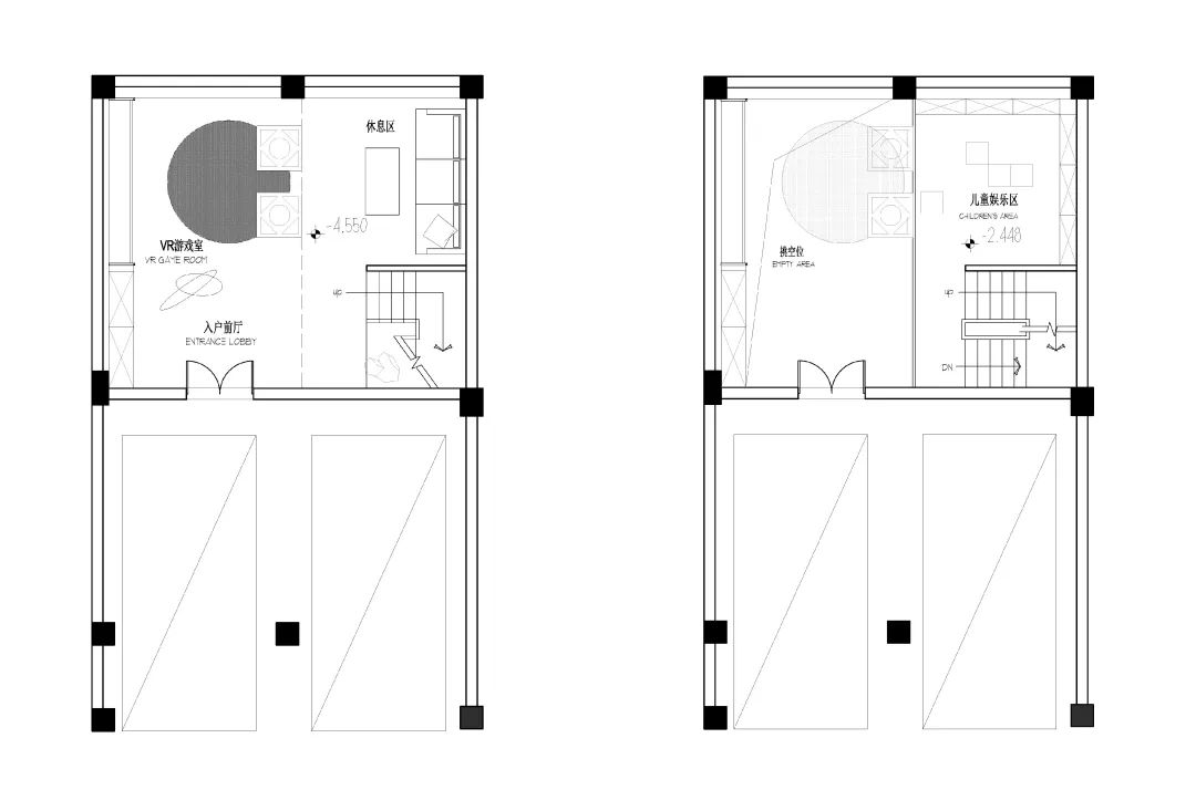
△地下一层&地下夹层
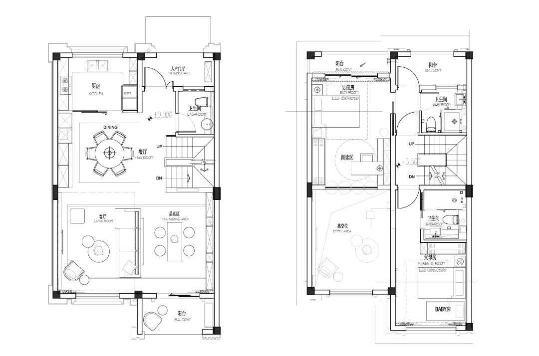
△一层&二层
△三层&顶层 叠层
△一层&二层
项目名称|中梁旭辉壹号院
业主单位|旭辉深圳区域公司
项目位置|江门市蓬江区杜阮镇群华路南侧
硬装设计|矩阵纵横
软装设计|矩阵鸣翠
摄影公司|释象万合
设计面积|别墅 221㎡叠墅 140㎡
硬装造价|4000 元/平米
软装造价|别墅 4000 元/平米叠墅 3000 元/平米
主要材料|别墅:卡其灰,纪梵希黑,岩板,木饰面,水纹不锈钢,艺术玻璃,布艺硬包,烤漆板;叠墅:劳伦黑金石材,细花白石材,银点灰,鱼肚白大板砖,艺术玻璃,烤漆板,亚克力
设计时间|2020 年 05 月
完工时间|2020 年 11 月
客服
消息
收藏
下载
最近














































