查看完整案例

收藏

下载
书简聚落
到字里行间寻找一处安闲
聚,是一切文明行为的开端,饮食、历史、情感都于人们靠拢相聚而生。素有「榕城」之称的福州,过往生活习惯朝树下群聚谈天话地,与自然相伴而生的村落文化,蕴藏都会生活难以生根的深厚情感。负责福州万科金域国际体验中心的水相设计,萃取「聚」为概念主轴,透过建筑营造人们能自然停留、聚集互动的社会场域,扮演当代生活的情感依归。
室内花园 开启悠然的生活想象
由于建筑2楼未来将作福州公共图书馆,并供小区文化活动使用,必须考虑成为储放庞杂多元书册的功能。然而,有别于传统图书馆采用数组式书柜,我们希望运用设计将大量书柜解放成有机姿态,将它们视为村落里的屋宇,有围墙、小径、小区天井关系,也有方便聚会活动的广场,自然而然在两层楼空间牵引出聚落的文化行为。
一楼落地窗边安排如咖啡店可自在独享的临窗吧台,藉喝咖啡、阅读诠释空间主张的生活悠然态度,也让室内与街廓活动产生连结。
在吧台座位后方,我们以造型展台与两道玻璃书架前后排放书籍及植栽,一层书简、一层绿意,穿插成一座隐约屏障的微型森林,当人们踏入室内,映入眼帘如室内花园的场景能打破售楼处或图书馆的平板印象,可展售书籍、花艺或文化艺品的弹性也替未来赋予更丰富的使用想象。
竹节编码 凝结书简的绵长记忆
入口右方琥珀红角隅是另一抢眼的空间印象,异于室内大量暖灰、米白的中性无声色调,接待区以细竹片拼铺而成这般雍容色彩,强化戏剧张力。
由于排尾盛产竹子,我们将竹片细剖削除其圆弧轮廓,仅保留竹节纹理再重新分割编排,让竹材转成如绢帛的柔细新貌,点状竹节排布如密码。透过现代设计语汇使红色之于中式文化、竹片之于排尾工艺的印象,表现出引人细究的新颖性格。
而墙上悬挂金属箱框内密密排满福州旧时书报文物,纸页随时光泛黄呈现的深浅线条,远望也成了本质难辨的装置艺品。
同样拆解、转借竹片元素的语汇延伸至天花板造型,以水平、垂直线性视觉为主的一楼空间,我们在局部空间上方造出半剖的拱形线条,如竹材剖面刻意放大后的弧度,也增加室内建筑线条的律动感。不仅如此,表面再贴覆染白的细竹片,藉由光影凸显细致的沟纹变化,时尚但内敛地发挥竹材特性。
以福州各个街道门牌号拼接的艺术作品,让置身空间的人们仿佛在福州缩影里游荡。福州的三坊七巷,福州的旧时旧景,提炼历史文脉,创造真实体验感受,融合的同时加以创新,如此形成紧密的美学联系,以获得和谐的整体空间表现效果,使人们在此获得视觉和心理上的满足。
琥珀红强烈的视觉温度自楼梯盘旋上楼,梯间挑高的展列书架,挑选有关福州当地生活历史的印刷品、文物记忆,再筛出同色排列呈现单一均质感,如滤镜强化的布置效果也使经过的人成为装置艺术一部分。
框景如窗 曲径上阅读人生
二楼是主要的书籍展列区,书架成为大量及建构空间造型的主体,有别于一楼单纯的线性轴线,此楼层将以非封闭的书架架构动线及一幅幅框景。
根据图书馆藏书、展示、提供席位阅读的基本功能,我们将其混搭融合成书架造型的组件,同时模糊各构件的传统身份。造型有实有虚的书架可藏书,也能找到坐下阅览的开口,串连出回绕动线的书柜自然形成一处处框景,在设定好的开口间,能瞥见人们行走、找书、低头阅读以及植栽生长的姿态,是一幕幕活动的风景。
更有趣的是,书籍依主题属性集中在特定区域,搭配座位形成半独立的专属空间吸引志趣相投者群聚,传统书店「人找书」的行为模式,在此经由空间结构增添「书找人」的双向引力。
微型聚落 书墙圈围人文互动之所
如果说书架造型产生的座位小区,如屋宇间经常打照面互动的路径转角,容易产生小群体,那么空间中央轴在线,由书架环绕出相对宽阔的开放休息区,就是村落里的广场,此处能作文化讲堂、召集活动、饮食谈天之用,未来将吸引更丰富的沟通互动行为,人们将从书后走出、聚拢、建立更多的可能。
为了强化这凝聚概念,书架间的天花板是低调素雅的平面,但我们在开放区上方保留屋高并漆上琥珀红,再系绑上万条红色绵线,千丝万缕构筑疏密交杂的装置线条,如人际网络,以艺术语汇自然圈画了活动及阅读/社群与个人的界线,不必急着定义,就由人们自在穿梭游走,悠然想象、享受文化的流动性。
城市不会泄露过去,它将所有的痕迹像手纹一般藏进掌心,以至于来来往往的人们都忘记了时间的流逝,仿佛一切都未曾改变。而羽果设计就是将这些变化通过空间,向你娓娓道来关于福州的记忆。
入口柜体内隐约透露着的饰品老物件搜集于80到90年代的生活场景,在高速发展的城市生活里,人们总是会遗忘身后的成长痕迹,记忆里模糊的轮廓和此时前台的老物件形体相重叠,唤起每个福州人内心深处的记忆。
文化认同感
“榕城巧艺早扬名,木画石雕漆写生;艺术繁荣新世纪,一丝一缕慰乡情。” 邓拓先生诗中提到的福州漆器、寿山石雕和软木画,被誉为“榕城特艺三绝”。在整个空间里,我们也用更加现代的手法,取漆器的形体与空间内,大面积陈列形成一定的视觉冲击力。融入了当地的福州文化,从历史文脉,到文化历史传承,到工匠传承,以竹子文化为元素,“手艺”和“手工”的概念还会重新回到我们的生命中来,“工匠精神”是一种对生命的尊重和对待生活的态度。这些独具特色的城市文化元素,就可以作为承载历史和记忆的文化地标,用以展现城市命运和脉搏。
文化传承
随着步伐迈入二楼空间,楼梯柜体处诉说时代的记忆,二楼转而还能在旧的基础上提高空间设计的品质,设计师以图书馆为灵感,拆解书写元素转而成为一件艺术品,设计师用着一种感性的方式去塑造一种情怀,通过控制色调,搭配材质,从而重新定义现代都市的复古艺术,带给客户实际的花艺、咖啡商业体验,打造惬意的生活艺术空间,感知未来的生活场景体验。
价值输出
慢一点才能享受生活
走近文化的过去,走向文化的未来
让习惯了都市生活的我们,重新发现历史文化的吸引力,我们呵护这一片区域,享受这里为我们带来更好生活的同时,关注着它的未来。我们探寻历史和现代兼得之处,在福州人们创造自然、建筑、人文交融的和谐人居生活。留驻这里,似乎也看到了城市更多的过去,现在,还有未来。
我们希望在不同的空间,要素要具有其内在特质,每个空间要素既有对比又和谐统一。漆器与老物件、棉线与书本,这种新旧的结合,传承与创新的碰撞,是羽果设计想给予福州这座城市最好的礼献。
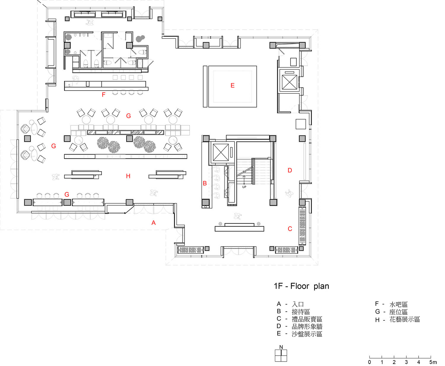
▼ 一层平面布置图
▼ 二层平面布置图
▼ 灵感来源
项目名称:福州万科金域国际体验中心
空间类型:售楼处、接待会馆
室内面积:1600平方米
项目位置:中国福州
空间设计:水相设计
空间设计团队:李智翔、廖婉君、葛祝纬、林其纬、张宇辰
软装设计:羽果设计
软装设计团队:张羽、卢尚锋、董萧
空间格局:接待区、洽谈区、展示区、阅读区、用餐区、厨房水吧区、样板房、厕所
主要材料:染色竹皮、皮革、订制地砖、水磨石、木皮、手工漆、竹节剖面加工、金属冲孔版镀钛金属
空间摄影:李国民、张骑麟
业主:万科集团
设计时间:2019. 04-2019. 06
施工时间:2019. 07-2019. 10
客服
消息
收藏
下载
最近


















































