查看完整案例

收藏

下载
以现代手法,诠释古老礼序文化。
郑州绿城湖畔云庐
–Lakeside Cottage–
项目地处华夏文明重要发祥地——中原城市群核心城市郑州北龙湖片区,临湖靠路,魏河故道由南穿梭而过,周边高校林立,居住氛围成熟,未来发展可期。滨水而居感受一方宁静,依林而居感受自然体悟。
设计充分尊重场所精神,从地域性出发,汲取古代建筑智慧,采取五进院落的布局,在点线面中通过结构性与留白的处理方式,将东方意境里注重人与空间及自然的和谐性与共生性尽情展现。
材料及色彩使用方面,米灰色系石材的运用,结合木饰面与金属的合理搭配,在整体与细部之中将空间打造成一处兼容中西审美视觉的生活体验馆。
01/进一·礼 Etiquette
礼,履也。所以事神致福也。礼制文化既是一种秩序的呈现,亦是一种情感的诉求。接待前厅有效地收纳自然光的潜入,高挑空的加持让前厅空间承载一室的通透明亮,容纳不同的介质垂直生长。米灰色系的主基调里,既保持着正向的空间关系,又有着恰到好处的连通关系,空间感饱满而充盈。典雅的台灯,采用金属质感的配比,自然添置一种归家的仪式感,也彰显著一种尊崇的身份象征,古朴的木质艺术长墩起至中和作用,金与木彼此相映成趣。
02/进二·观 Viewing
君子至止,言观其旗。二进即一步一景,优雅地重塑自然姿态。玻璃云先是在沙盘正上方,利用光来超越形状概念。透明的玻璃棒从天花板上悬挂下来,看似漂浮在空中,透明的层又可以让光线透过,形成让人联想起云层的构造。
03/进三·仪 Ceremony
以身为正仪,而贵自安者也。
一进一院,进多进少,便是传统建筑的门第礼序。经由沙盘区步入空间核心区,设计在严格的几进几出的建筑制度中,充分融入现代人的生活习惯与审美情趣,门厅的互为呼应,空间之间的承启,在一眼望到底的联动中,将色彩的更替,层次的递渡,慢慢缱绻。
宏大叙述与微观表达的交叉共融,在洽谈区频频上演,成为最诗意的呈现方式。
洽谈区采用八大高立栅栏式门页的设计,动线十足,真正突破想像力的边界,设计与想像在此有了一场真实而纯粹的相遇,总有不同,但总有惊喜。
当视角由整体转向细部,统一富有秩序感的立柜,摆放着整齐的陶瓷与书籍。依照人体工学而设计的舒适靠椅,对望着静态的竹艺,点线面的接洽,将渴望宁静的本心和包容的人生哲思关注到每件产品中。静味人生,缔造优雅、惬意的当代生活方式。
©无花工作室
关于洽谈书吧区的布局,设计师以竹衍生为花艺贯穿整体空间,与窗外的竹遥相呼应,用竹寓意君子,使人在阅读的同时生发一种虚怀若谷之意,空间平添出一份旨趣。
04/进四·会 Reception
宽阔的空间,承载着贴地性设计处理的单人椅、沙发长凳与茶几,皆是人居美好生活的最佳配备。
五人共会其体,皆是。水吧洽谈区在仪式的延续上有了增进,明净的玻璃提供浮厅观影的生活语境,置身其中可感受到一种冲破维度的视觉享受。
设计执着于一器一物之中,用手工的制作工艺,传递传统的工匠精神。
05/进五·赏 Appreciation
©早川祐太 Yuta Hayakawa
艺术家原版作品——《i am you》,受物派艺术的影响,用朴质古老的雕塑材料表达时间的凝固,表达人与人的共体性,彼此依存的关系。
螺旋状的艺术楼梯,衔接起一二层空间的转场,下承上重的倒置结构,看似不合理,却是一种顺应表面张力的姿态随之自然而成。
安得凌风翰,聊恣山泉赏。摒弃多余与繁复,浮光掠影之下是一种堆叠陈积的建筑手法,传递一份温柔的艺术感。湖畔云庐,以“礼”的精神与“序”的主张,续写东方人文的现代体验。
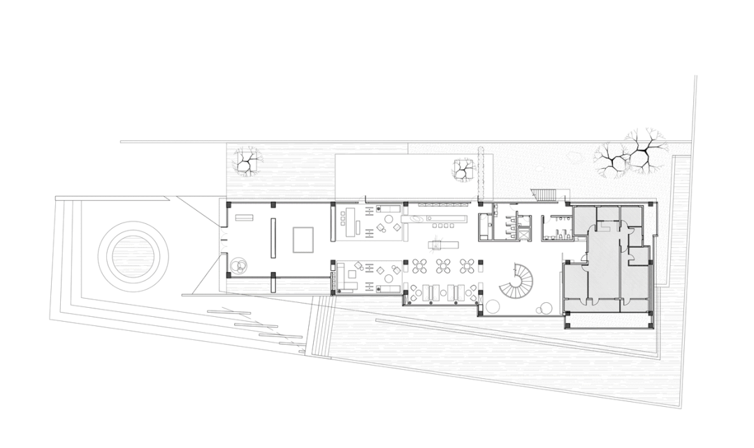
△ 一层平面图
△ 二层平面图
推广案名|绿城湖畔云庐
项目位置|郑州北龙湖片区
业主单位|绿城集团
硬装单位|矩阵纵横
软装单位|矩阵鸣翠
项目摄影|释象万合
花艺定制|无花工作室
艺术顾问|BananaJam
设计面积|1200㎡
硬装造价|3500 元/平米
软装造价|3500 元/平米
主要材料|贝金米黄、法国灰、塞尔维亚白、浅色木饰面、哑金色金属、米色墙布、乳胶漆
设计时间|2020 年 3 月
完成时间|2020 年 11 月
客服
消息
收藏
下载
最近







































