查看完整案例

收藏

下载

翻译
Situationsplan
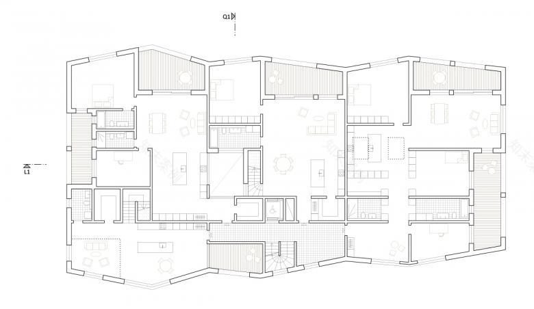
Grundriss Erdgeschoss
Grundriss 2. Obergeschoss
Querschnitt
Längsschnitt
Ansicht Süd-Ost
Ansicht Nord-West
建筑师:Rothenfluh & Partner Architekten
位置:Pfaffnau LU, 瑞士
年份:2021
Der Entwurf für den Neubau für die Gemeindeverwaltung und die Raiffeisenbank, sowie vier grosszügige Wohneinheiten, basiert auf der Idee eines kompakten, leicht geknickten Baukörpers, der sich in seiner Ausrichtung neutral zur Kantonsstrasse verhält, also keine unnötige Zeilenbebauung vorsieht…
客服
消息
收藏
下载
最近












