查看完整案例

收藏

下载

翻译
可视化 © Flooer
Situationsplan
图纸 © studio berardi miglio
Schnitte
图纸 © studio berardi miglio
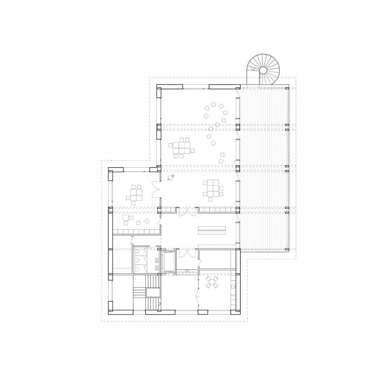
Obergeschoss
图纸 © studio berardi miglio
Erdgeschoss
图纸 © studio berardi miglio
Sockelgeschoss
图纸 © studio berardi miglio
Axonometrie
图纸 © studio berardi miglio
建筑师:studio berardi miglio
位置:Palmenweg , 8274 Tägerwilen, 瑞士
年份:2023
客户:Volksschulegemeinde Tägerwilen
Bauingenieur:Synaxis
Holzbauingenieur:Solubois
Bauphysik:Steigmeier
Brandschutz:Zostera
Projektwettbewerb:1.Preis
Dieser Neubau, als kompakter und einfacher Baukörper konzipiert, fügt sich in den eng gefassten Bebauungsperimeter des Schuleigentums ein, wobei für den Einbau der Veranda zusätzlich ein Teil des Freiraumperimeters der Politischen Gemeinde zur Verwendung kommt. Durch den leicht versetzten Grundriss des Volumens bilden sich im Aussenbereich zwei räumliche Nischen: Eine zum südlich verlaufenden Palmenweg hin, die als Zugang zum Kindergarten eine eigene Adressbildung, Orientierung und Identität schafft. Eine zweite, nördlich des Neubaus in die Topografie eingefügte Nische erzeugt zwischen dem solitären Schulbau und dem Neubau einen grosszügigen, eingefassten neuen Aufenthaltshof. Dank dieser Gliederung des Baukörpers wird auch ein grösserer Abstand zum Altbau geschaffen sowohl in respektvoller Rücksicht auf dessen Bausubstanz als auch, um einen grosszügigen Aussenraum zu erzeugen.
Die Umgebungsgestaltung gliedert sich harmonisch in die bestehende Situation ein. Das Ziel war, möglichst wenige versiegelte Flächen zu planen und ein naturnahes Umfeld mit einheimischer, ortgerechter Bepflanzung zu schaffen.
Die Eingangssituation und der Spielgarten des Kindergartens schaffen innerhalb der grossen Schulanlage eine eigene, separate Welt für die kleinen Kinder, die auch Schutz vor den älteren Kindern bietet. Der umzäunte Spielgarten im Osten des Neubaus grenzt unmittelbar an die Kindergarten-Unterrichtsräume an, sodass die Lehrpersonen von innen einen guten Überblick über den Aussenraum haben.
Über ein paar Stufen aus dem Erdgeschoss bzw. über die Wendeltreppe aus dem Obergeschoss ist der Garten von beiden Kindergarteneinheiten her direkt erreichbar. Die Grösse und die Gestaltung dieser Aussenfläche entsprechen den Richtlinien des Kantons Thurgau für einen Doppelkindergarten.
Entlang der Fassade erstreckt sich ein offener Rasenplatz, der als multifunktionaler Spielbereich dient. Daneben gibt es den Hartplatz sowie eine Sandanlage.
Verschiedene Spielgeräte wie Klettergerüste befinden sich unter den Baumkronen.
Die Topografie wird hier nicht verändert. Wildhecken aus einheimischen Sträuchern schaffen Spielnischen und bieten Sichtschutz. Weitere Aussenräume, wie etwa die Spielwiese, befinden sich im Westen des neuen Gebäudes und schaffen Synergien mit dem Aussenraum der Sekundarschule.
Die bestehende Geländemulde zwischen Altbau und Neubau wird ausgedehnt und mit Sitzbänken eingefasst, damit ein hochwertiger und vielseitig nutzbarer Begegnungshof entsteht. Ein geschwungenes Wegesystem erschliesst ihn sanft aus allen Richtungen und unterstreicht die Öffentlichkeit dieses Ortes. Ein Solitärbaum markiert einen Treffpunkt und spendet auch an heissen Sommertagen ausreichend Schatten.
Vom Palmenweg herkommend betreten die Kinder im Neubau eine gemeinsame Eingangshalle im Erdgeschoss. Die Split-Level-Bauweise gewährleistet einen barrierefreien Zugang und schafft zudem eine Gliederung zwischen den öffentlichen und den intimen, kindergerechten Bereichen. Der Doppelkindergarten ist in zwei unabhängige, aber räumlich und strukturell gleiche Einheiten organisiert: Eine im Erdgeschoss, leicht versetzt (45 cm) über der Eingangshalle, und eine zweite im ersten Obergeschoss.
Die Garderobe ist jeweils als Erschliessungshalle gedacht, und die direkte Verbindung zur Veranda und dann zum Spielgarten schafft eine Trennung zwischen sauberem und schmutzigem Weg (Schuhe). Die Unterrichtsräume sind bis dreiseitig natürlich belichtet und belüftet und können in verschiedene Nutzungsbereiche aufgeteilt werden. Zudem sind sie auf die Veranda ausgerichtet. Der Gruppenraum kann dem Unterrichtsraum zugeschaltet oder von diesem abgetrennt werden. Ein separater Zugang von der Garderobe her gewährleistet eine flexible und unabhängige Nutzung.
Die Küche dient als Gemeinschaftsraum für beide Einheiten und befindet sich im öffentlichen Bereich im Obergeschoss des Split-Levels. Sie ist als durchlässiger Raum gestaltet und gewährleistet Synergien mit dem Foyer.
Im Sockelgeschoss betreten die Schülerinnen und Schüler die Garderobe vom Aufenthaltshof her über den gedeckten Aussenbereich und werden durch breite Türen in den Multifunktionsraum geleitet. Dieser Mehrzweckraum öffnet sich mit grossen, raumhohen Fenstern zum Hof, und eine schalldichte Faltwand erlaubt eine Unterteilung des Raums in zwei Zonen mit unabhängigen Zugängen. Diese hohe Flexibilität sowie die unmittelbare Nutzbarkeit des Aussenraumes ermöglichen hier auch die Durchführung von Schul- oder Quartierveranstaltungen. Die Decke des Multifunktionsraums wird mit akustisch absorbierenden Paneelen ausgestattet, die zusammen mit der Innenverkleidung der Wandflächen eine möglichst optimale akustische Ausgangslage schaffen.
Eine umlaufende Treppe verbindet den unabhängigen Zugang des multifunktionalen Sockelgeschosses mit der Eingangshalle im Erdgeschoss. Dies schafft einen Kreislauf im Gebäude und setzt die beiden räumlichen Aussennischen in Beziehung miteinander.
客服
消息
收藏
下载
最近









