查看完整案例

收藏

下载
ECCO Global Flagship Store ECCO全球旗舰店
Design AgencyHONG DesignworksChief DesignerDang Ming,Li DandiDesign TeamXie Xu,Wang Qing,Wu Hongye,Lu Mengyi,Dong SiranConstructionSDCIC construction group shares CO.,LTD.
Installation ArtJUJU WANG
PhotographySTUDIO TEN-Tan XiaoFilm ProduceHuaSheng Studio
420.2501349㎡Middle Huaihai Road, Shanghai, ChinaMarch 2021- 1F -
- Stair area -
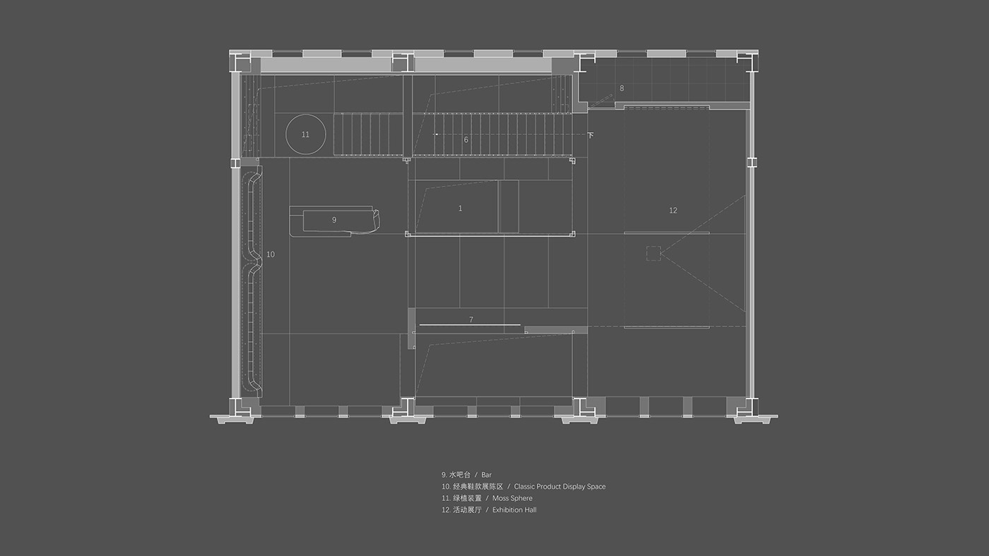
- 2F -
ECCO Global Flagship Store ECCO全球旗舰店2021
作者:Xiao Tan-谭啸
语言:英语
客服
消息
收藏
下载
最近


















































