查看完整案例

收藏

下载

翻译
Visualisierung Sporthalle
可视化 © maaars, Zürich
Visualisierung Sportplatz
可视化 © maaars, Zürich
Visualisierung Sporthalle
可视化 © maaars, Zürich
Situationsplan
图纸 © Sollberger Bögli Architekten AG
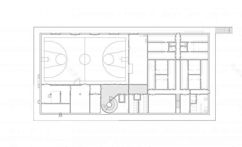
Grundriss Parterre
图纸 © Sollberger Bögli Architekten AG
Grundriss Tiefparterre
图纸 © Sollberger Bögli Architekten AG
Längsschnitt
图纸 © Sollberger Bögli Architekten AG
Querschnitt
图纸 © Sollberger Bögli Architekten AG
建筑师:Sollberger Bögli Architekten AG
位置:Gwattstrasse, 3185 Schmitten, 瑞士
年份:2026
客户:Gemeinde Schmitten
Der von der Zufahrtsstrasse sichtbare Zugang der neuen Halle liegt erhöht, mit einer eindrucksvollen Aussicht auf Dorf und Kirche.
Das neue Mehrzweckgebäude wird gleichsam Dreh- und Angelpunkt der gesamten Sportanlage. Allseitig angeordnete Nutzungen ( Haupteingang, Mehrzweckraum, Balkon, Garderoben, Mehrzwecksaal, Zugang Sportler) aktivieren den Aussenraum und erfüllen so die Anforderungen an ein offenes und attraktives Gebäude.
Die massiven Erdbewegungen für das Rasenspielfeld führten zu steilen Böschungen. Das neue Gebäude nutzt diesen Geländesprung aus und definiert einen klaren, gebauten Abschluss zum Fussballfeld.
Über ein grosszügiges Foyer gelangt man in den Zuschauerbereich der Mehrzweckhalle mit Blick in den Saal und auf das Rasenspielfeld. Die angrenzende Mehrzweckraüme mit den direkt angebundenen Nebenräumen kann entweder direkt aus dem Zuschauerraum, oder über einen separaten Zugang erschlossen werden. So können die Mehrzweckraüme auch fremdvermietet werden. Mittels grosszügige Türen können diesen dem Mehrzwecksaal für gemeinsame Veranstaltungen (Restaurant, Turnierbüro usw.) zugeschaltet werden.
Über eine einladende Wendeltreppe gelangt man zur Mehrzweckhalle und den Garderoben, welche als konzentrierte, flexibel nutzbare Raumeinheit, auf dem Niveau des Rasenspielfeldes liegen. Die Nordorientierung der Halle sorgt für blendfreies Licht. Die räumliche Nähe der Garderoben, der Küche, der Garderobe und des Nebenraumes der Bühne zum Mehrzwecksaal führen zu kurzen und effizienten Wegverbindungen. Die Sportnutzungen können auch über einen separaten Aussenzugang direkt erschlossen werden.
客服
消息
收藏
下载
最近










