查看完整案例

收藏

下载
汉斯茶楼,又名扎小文茶室,是AIR Architects在杭州南宋古建筑群大井巷的第二个落地项目,旨在通过建筑和内部装修营造一种自然放松的品茶体验。客户是杭州经验丰富的茶文化传承人和茶道实践者,他们对设计有一个词——“真实性”。
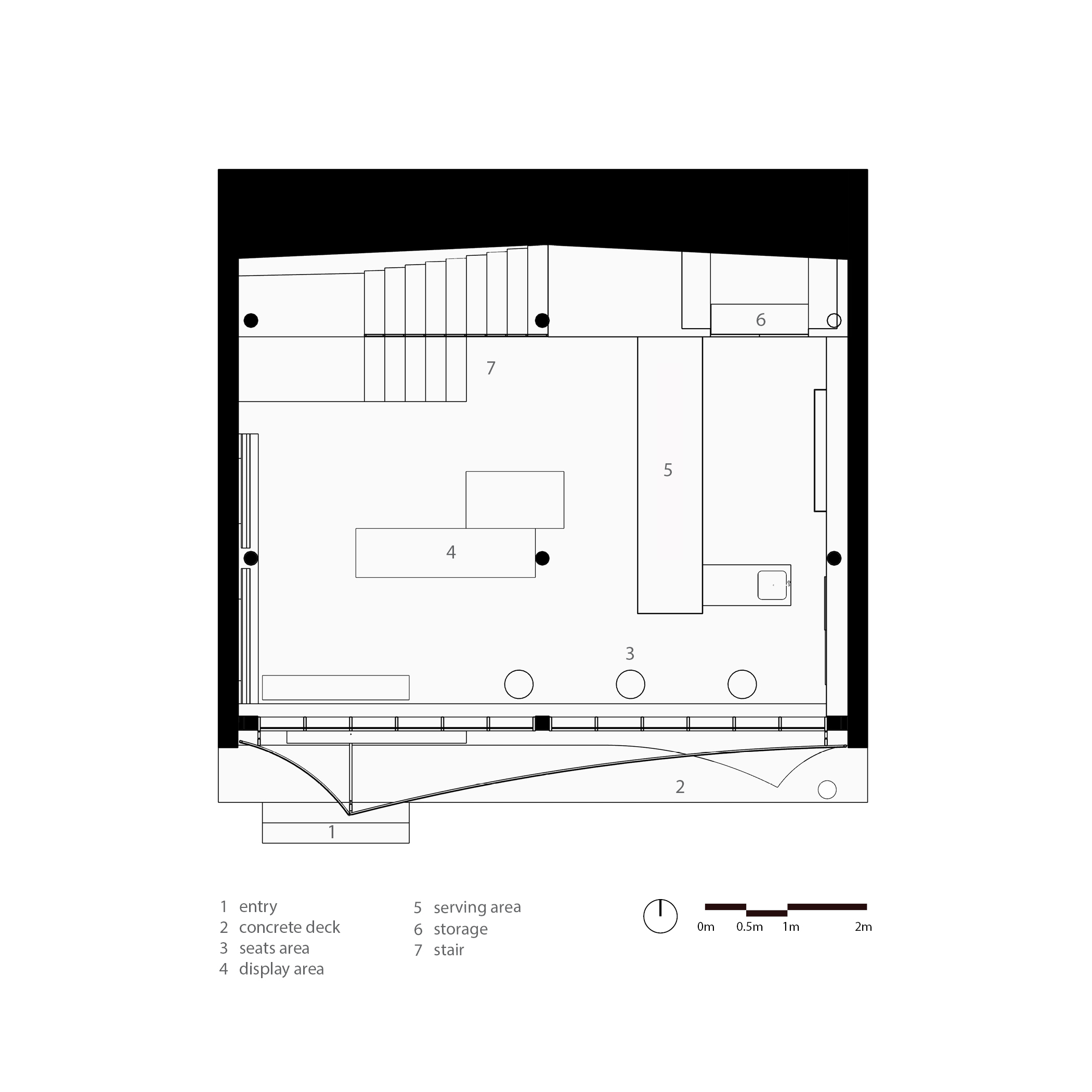
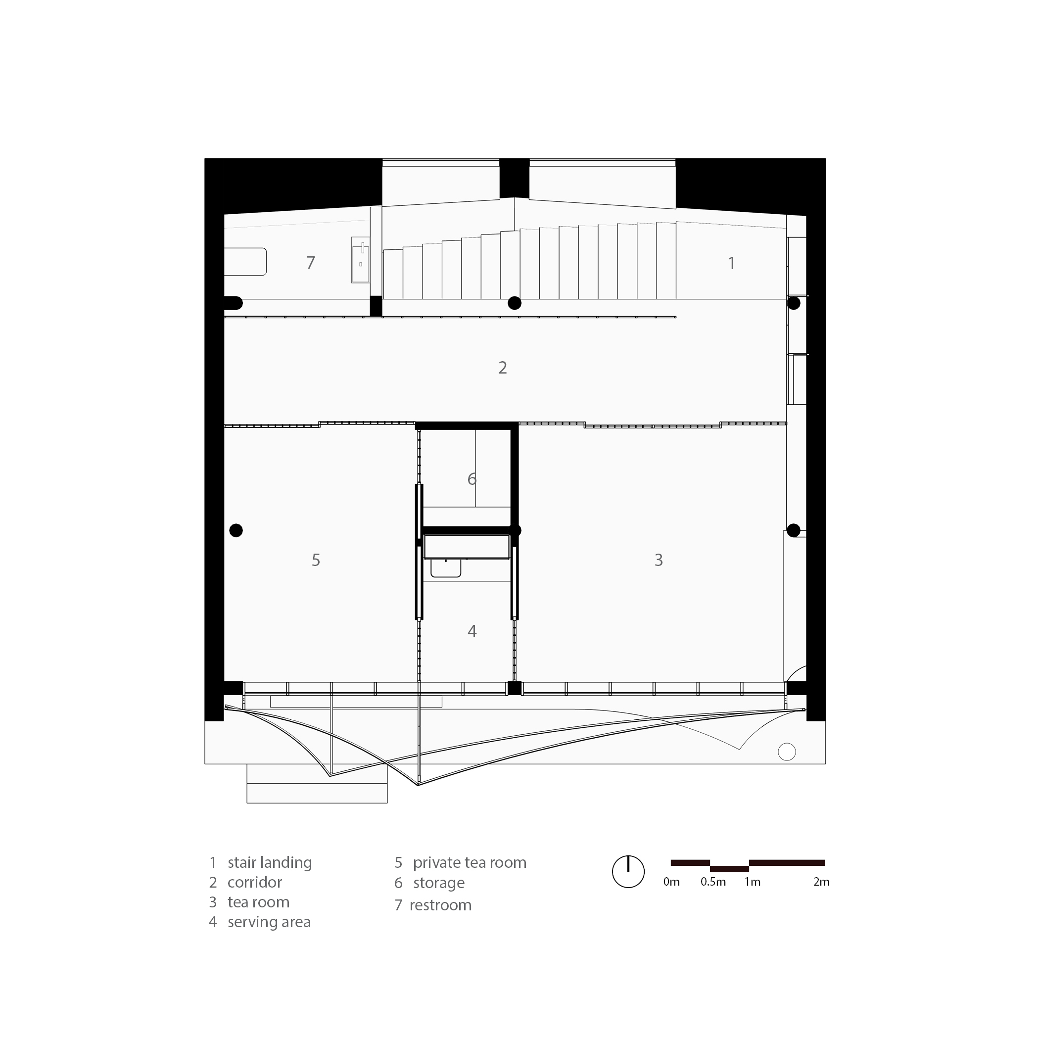
项目主体为木-混凝土混合结构,分为两层。一楼是茶室的零售店。二楼由两个私人茶室组成,其中较大的一个用于茶会,较小的一个仅供内部使用,为内省和仪式实践提供了一个专属空间。
立面的形式尽可能保持简单,但在透光材料的选择上做了大量的努力。光泽、柔软度、透光率、成型性、耐候性和许多其他标准被用来选择最适合该项目的材料。透光幕墙的主要目的是收集光线,并将其轻轻释放到茶室内部。这是以这样的方式进行的,光线以恒定的状态进入房间,即使是在夏天的下午或下雨的黄昏,并首先凝聚在立面的屏幕上,在房间的材料和表面上投射出永恒的光影层。光滑、有光泽、粗糙、明亮、精致、油腻、古色古香——这些都是释放在室内物体上的丰富纹理,这就是我们所理解的“真实性”,就像事物的本来面目一样。
这种半透明的材料在明亮的光线下呈现出纯白色,与屋顶的深灰色一起,融化掉,消失在白色墙壁的建筑中。黄昏时,温暖的室内光线逐渐溢出,白色变得透明,茶香升起,给小巷增添了一缕沸腾。
任何事物都不是孤立存在的,建筑也不是。茶室与周围环境之间的和谐得到了精心的注意。颜色、材料、形式都来源于周围环境。改造后的新生活仍然属于土地,参与环境的公共生活。
透明弯曲的窗户玻璃直接展示了室内的内容,同时反映了街道环境的丰富性,包括场景中的观察者本人。混凝土甲板被设计成一系列室外座位区,为社区居民和游客提供一个坐下来放松的地方,并在一旁有树荫,以与建筑互动。茶室的细节和表达方式已经被雕刻出来,为社区带来新的东西,并承担公共功能。
内饰材料的选择基于低对比度、低饱和的原始材料,这也是对“真实性”的回应。朴素的颜色和适度的纹理使自我变得柔和,同时也作为一面镜子反映出观察者的精神状态。
项目完工照片:
平面与结构图:
效果与概念图:
待补充……
设计师:AIR architects
坐落:Hangzhou / China / 2020
语言:English
客服
消息
收藏
下载
最近


































