查看完整案例

收藏

下载

翻译
Therme Lindau - Zugang
照片 © David Matthiessen
Therme Lindau - Foyer
照片 © David Matthiessen
Therme Lindau - Sport- und Familienbadehalle
照片 © David Matthiessen
Therme Lindau - Sport- und Familienbadehalle
照片 © David Matthiessen
Therme Lindau - Thermenbereich
© David Matthiessen
Therme Lindau - Restaurant Therme
照片 © David Matthiessen
Therme Lindau - Thermenbereich
照片 © David Matthiessen
Therme Lindau - Restaurant
照片 © David Matthiessen
Therme Lindau - Thermenbereich
照片 © David Matthiessen
Therme Lindau - Saunalandschaft
照片 © David Matthiessen
Therme Lindau - Übergang zur Saunalandschaft
照片 © David Matthiessen
Therme Lindau - Ruhebereich Saunalandschaft
照片 © David Matthiessen
Therme Lindau - Eventsauna
照片 © David Matthiessen
Therme Lindau
照片 © David Matthiessen
Therme Lindau - Feuersauna
照片 © David Matthiessen
Therme Lindau - Außenansicht
照片 © David Matthiessen
Therme Lindau - Außenbecken Schwimmer
照片 © David Matthiessen
Therme Lindau - Gesamtansicht
照片 © David Matthiessen
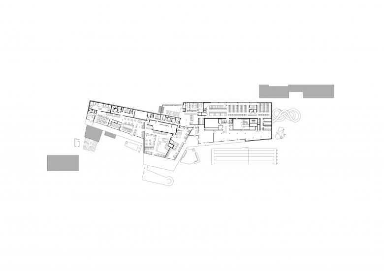
Grundriss Erdgeschoss
图纸 © 4a Architekten GmbH
Grundriss Obergeschoss
图纸 © 4a Architekten GmbH
建筑师:4a Architekten
位置:Eichwaldstraße 16-20, 88131 Lindau, 德国
年份:2021
客户:Bäderbetriebe Lindau und Therme Lindau GmbH (schauer & co. GmbH)
团队:Daniel Bayer, Andreas Ditschuneit, Pinar Eren, Ida Ertelt, Christiane Hofmann, Marcel Kipping, Mohamed Mansour, Peter Meschendörfer, Alain Vargas, Vesela Velikova, Sheelah Walter, Alena Zgorskaya
Investor, Betreiber + Generalübernehmer:schauer & co. GmbH
Totalunternehmer + Bauleitung Rohbau:Georg Reisch GmbH & Co. KG
Ausschreibung + Bauleitung:vdo Architekten GmbH
Neubau eines Sport- und Familienbades mit Thermen- und Saunalandschaft am See: Sanft in die Landschaft mit altem Baumbestand eingebettet liegt die Therme Lindau direkt am Bodenseeufer. Die Architektursprache leitet sich aus dem umgebenden Naturraum ab: Felsplatten, Steine und Vegetation prägen den Entwurf, der sich wie eine Landschaft erkunden lässt. Von außen klar und ruhig gestaltet, ist der Baukörper im Innenraum von vielfältigen Raumszenarien mit unterschiedlichen Funktionen geprägt. Das langgestreckte und horizontal geschichtete Thermengebäude ist formal an der Uferkante ausgerichtet und liegt wie eine Steinscholle zurückhaltend im Grünen. Im Erdgeschoss ist die Therme ähnlich einer Landschaft ausgebildet, die von einzelnen Felsblöcken durchbrochen wird. In diesen Blöcken befinden sich die unterschiedlichen Erlebnisbereiche und laden zum Erkunden ein. Darüber liegt die zweite Ebene, geschichtet wie eine Steinscholle am See, sanft in die Landschaft zwischen Eichwald und Bodensee eingebettet. Thematisch umfasst die Therme Lindau drei unterschiedliche Bereiche: Ein Familien- und Sportbad, einen Thermen- und Wellnessbereich sowie eine großzügige Saunalandschaft mit insgesamt zehn Saunen im Innen- und Außenraum. Hinzu kommen gastronomische Einrichtungen und ein Fitnessbereich. Nach Süden öffnet sich die Therme zum Seeufer und bietet eine fantastische Aussicht auf den Bodensee und die Bergwelt. Eingangsbereich und Umkleidetrakt bilden das Rückgrat nach Norden. Die Badeebene im Innenraum ist ähnlich einer Landschaft gestaltet: Die Becken und Wellnessbereiche sind teils in expressiv geformten Volumen untergebracht. Sie gliedern das Erdgeschoss und bilden spannende Raumszenarien. Lufträume verbinden die Ebenen miteinander, bilden Blickbezüge, weiten das Gebäude nach oben und lassen Tageslicht ins Gebäude fallen. Von allen Seiten ist der Bezug zum Außenraum spürbar und das wechselvolle Spiel von Licht und Schatten verleiht den Räumen eine emotionale Wirkung.
客服
消息
收藏
下载
最近






















