查看完整案例

收藏

下载
更新项目, 零售室内设计, 海宁, 中国
室内设计:Say Architects
面积:320 .2501349m²
项目年份:2020
摄影师: 汪敏杰, Yawen Fan, Yan Zhang
主持设计:张岩、单嘉男
设计团队:范雅雯(项目负责人)、杭升、朱佳鸣
家具设计:Say Architects
施工团队:杭州齐天装饰工程有限公司
装置制作:浙江诺隐家居有限公司
City:海宁
Country:中国
这个项目非常复杂,但在设计时我们并没有刻意创造一个特定的氛围或空间形式。最终产生的结果更像是对思路,灵感和直觉的梳理而非设计。
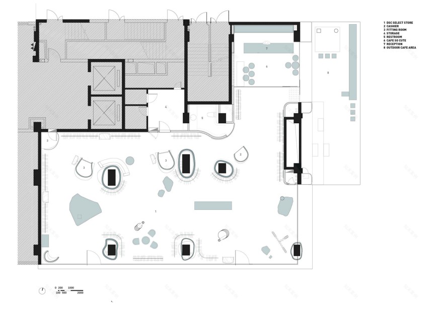
DSC是一家拥有多个品牌的买手店,设计目的是希望有一个空间可以适合所有服饰,而店铺主人的喜好也是丰富多样。在理解设计需求的基础上,我们意识到DSC会是一间拥有多种材料,元素和风格的店铺,因此我们将重心转移到创造多种元素之间的和谐。我们把现状的几个柱子用异形形状包裹起来,这些形状完全随机,由空间尺度和视角决定(当然了,这些形状都是由草图发展开始),在不同视角这些形状也看起来不同。在这些奇形怪状的柱子旁边就是衣架。天花也是异形的,在和柱子交接的位置被柱子拉扯住,和柱子产生了联系。
两个面向不同方向不同材质的木柱穿过天花撞在地板上,不同颜色的着色玻璃咬合住木柱形成搁架。背景墙是在施工开始前拆除后留下的原始墙面,当然这些墙面的表面都是经过处理的,毕竟我们也不是原始人,还是要保持衣服干净。墙面前不锈钢的衣架干净简洁,和墙面形成一种有趣的对比。
店内的家具仿佛是多种元素和材料的杂交,其设计完全出自直觉,具有一种有趣的混乱感。店铺中央奶酪一样的桌子,因其形状和色彩,而具有很强的存在感。这桌子的精确尺寸最终是在施工现场一点点调整出来的。
在面向东面的一面全尺寸玻璃前,我们放了一块一吨重的砂岩(专门去石材厂选的,只有顶部和底部经过打磨处理,侧面完全是原始状态,这样它就变成了一张桌子),在搬运进场的时候,8个“猛男”才将这块石头搬运到位另一侧有一个弹簧一样的衣架和另外两块摆放鞋子和包的石材,这两块石材小很多,但也四个“猛男”才可以安全搬运放置。“弹簧”和这两块小石头放在一起产生了一种很趣味性的场面。这个弹簧衣架在放置衣服的时候还会有轻微晃动,真的像弹簧一样。异形天花和柱子形成了非常有趣的奇怪空间体验。
DSC有一个小咖啡馆贴附在DSC北侧,面东开门。这间咖啡馆和买手店截然不同,规则而且甚至有点复古。我觉得,在设计阶段我们花在这间咖啡厅的设计时间远大于买手空间。咖啡厅的地面是用这间店铺以前装修使用的石材碎片制作成的。咖啡厅和买手空间通过黄色着色玻璃分隔,并延伸至室外一个小庭院,庭院地面是和室内相同的特制水磨石。
我们手工制作了三块混凝土作为店铺的标牌,每块都有些许不同,非常粗糙而且信息也不清晰,但是我认为这恰恰反映了DSC最终的呈现效果和性格特点,这间店铺混乱却和谐,空间甚至有点童趣和粗糙,整个空间就像是一个富有天赋的小孩子,没有规则但却丰富有趣。我非常愿意称这个项目为“不设计的设计”,他的设计过程更像是对灵感和思路的整理,是一种充满确定性的不确定,材料多样混乱,但相互融合协调,项目进程就像是和自己不断进行讨论和尝试。不设计的设计,确定的不确定,不协调的协调。
项目完工照片 | Finished Photos
设计师:say architects
分类:更新项目
语言:简体中文
客服
消息
收藏
下载
最近





























