查看完整案例

收藏

下载

翻译
照片 © Olaf Mahlstedt, Hannover
照片 © Olaf Mahlstedt, Hannover
照片 © Olaf Mahlstedt, Hannover
照片 © Olaf Mahlstedt, Hannover
照片 © Olaf Mahlstedt, Hannover
照片 © Olaf Mahlstedt, Hannover
Lageplan
图纸 © pape + pape
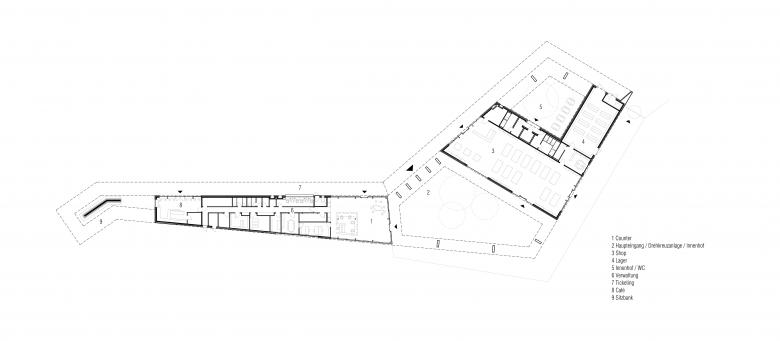
Grundriss
图纸 © pape + pape
Ansicht/Schnitt
图纸 © pape + pape
建筑师:pape + pape architekten
位置:Adenauereallee 1, 30175 Hannover, 德国
年份:2020
客户:Zoo Hannover GmbH
mit:nsp landschaftsarchitekten
Wettbewerb:2015, 1. Preis
Durch die Neugestaltung des Entrées für den Erlebnis-Zoo Hannover ergibt sich die einmalige Chance, den Auftritt des Zoos im städtischen Umfeld seiner Bedeutung entsprechend aufzuwerten. Dabei wird der Eingangsbereich von seiner bisherigen Lage tief im Innenbereich des Zoos gut sichtbar an den Rand des Zoogeländes verlagert. Die nun frei gewordene Fläche wird zukünftig für den Themenbereich „Sambesi“ zur Verfügung stehen.
Die architektonischen und landschaftsarchitektonischen Interventionen lassen im Kontext des großkronigen Baumbestands einen sensiblen Ort mit unverwechselbarer Identität entstehen, der die Besucher in den Zoo führt und vielfältige Aufenthaltsangebote anbietet. Grundsätzlich nutzt die Neubaufigur in ihrer Position die Flächen der bestehenden (alten) Wegeführung, um den schützenswerten Baumbestand weitestgehend zu erhalten. Die im Gebäudebereich liegenden Bäume werden wie selbstverständlich in die großen Innenhöfe eingebettet, denen sie mit ihren schattenspendenden Baumkronen eine hohe Atmosphäre und Aufenthaltsqualität verleihen.
Konzept Freiraum
Von der Kreuzung Fritz-Behrens-Allee kommend öffnet sich ein großzügiger, platzartiger Raum. Eingestanzt in den befestigten Belag sind grüne Inseln unter dem einzigartigen (aufgeasteten) Baumbestand situiert die den Raum prägen. So entsteht ein Raumeindruck, ein fließender Platz, gegliedert durch die großen lichten Bäume, der sich von der Straße und vom Parkhaus bis zum Eingang erstreckt. Die Grünflächen sind teilweise durch erhöhte Betonwerksteinblöcke begrenzt, die viele Aneignungsmöglichkeiten zulassen und als markante Figur eine Fernwirkung entwickeln, die den Raum aus den verschiedensten Richtungen wirken lassen. Eine lange Rundbank auf dem baumbestandenen Vorplatz dient als Treffpunkt und Sitzplatz. Die befestigte Platzfläche besteht aus einem dreifarbigen Betonpflaster, das farblich mit den im Wurzelbereich der Bäume eingestanzten wassergebundenen Decken abgestimmt ist. So wird der Platz barrierefrei ausgebildet und ist bei jeder Wetterlage gut begehbar.
Der neue Busparkplatz gliedert sich wie selbstverständlich in das Platzensemble ein, die Anbindung zum Parkhaus und zur Gastronomie „Hoflokal“ wird deutlich verbessert. Die Fahrradstellplätze werden in zwei Bereichen neu angeordnet. Ein Standort befindet sich aus Richtung Stadt kommend unter den großen Bestandsgehölzen an der Fritz-Behrens-Allee und ein weiterer Standort mit Fahrradparkern ist im Übergang zum Parkplatz situiert. Durch eine lineare Aufstellung und extra lange Fahrradparker für Fahrräder mit Kinderanhänger ist die Fahrradsituation auf einen starken Andrang ausgelegt.
Durch die vorgeschlagenen gezielten Eingriffe entsteht ein neuer einzigartiger Raum, der als eigenständiger Baustein im Kontext der Umgebung zwischen Stadt und Stadtwald ablesbar wird.
Konzept Gebäude
Der außergewöhnliche Neubau mit seiner warmen Holzverkleidung, großen Tiersilhouetten und dem markanten Dach macht schon von außen auf das Zoo-Erlebnis neugierig.
Dabei setzt sich das neue Eingangsgebäude aus zwei unabhängigen eingeschossigen Gebäudevolumen zusammen, die zur Eingangsseite mit einer zeichenhaften, schräg aufgestellten Dachfigur zusammengeschlossen werden. Das V-förmig aufgespreizte Gebäude öffnet sich zum neugestalteten Eingangsplatz und empfängt die Zoobesucher quasi mit weit geöffneten Armen. Alle ankommenden Besucher werden wie selbstverständlich zum Schwerpunkt der Gebäudefigur geleitet, an dem sich neben dem zentralen Haupteingang mit Außenkassen auch der innenliegende Servicebereich sowie der Shop befinden. In dem daran anschließenden offenen Verteilerhof werden Eingangs- und Ausgangssituation (der Ausgang erfolgt idealerweise durch den Shop) zusammen organisiert. Hier befindet sich der Start- und Endpunkt des Zoo-Rundgangs. Eine frei geformte Grüninsel bildet eine einfache und dennoch effektive Trennung der gegenläufigen Besucherströme.
Zur Endhaltestelle der Stadtbahn wird unterhalb der zeichenhaften trapezförmigen Dachfigur eine umlaufende Sitzbank als zentraler Treffpunkt platziert, die überdies als Außenbereich für das angrenzende Café sowie über einen eingelassenen Großbildschirm zur Straßenseite als Informationswand des Zoos genutzt werden kann um auf aktuelle Veranstaltungen hinzuweisen.
Typologie und Materialität
In seiner Typologie und Materialität orientiert sich das Eingangsgebäude an Motiven aus der Tierwelt sowie einfachen Stallungs- und Scheunenmotiven, welche aufgenommen und in eine moderne geradlinige Architektursprache umgesetzt werden. Auf die Ausbildung von Gebäudevor- und Rücksprüngen wird dabei bewusst verzichtet. Der Baustoff Holz bildet das Leitmaterial des neuen Eingangsgebäudes. Vertikal angeordnete Holzlamellen überziehen Dach- und Fassadenbereiche und werden unter den angrenzenden Geschossdecken in die Innenräume hineingeführt, so dass eine homogene übergangslose Gebäudeskulptur entsteht. Lebensgroße Tiersilhouetten werden aus der linienförmigen Lamellenverkleidung herausgearbeitet und verleihen dem Besucher bereits von außen einen ersten Eindruck des anstehenden Zoo-Erlebnisses.
Durch die Ausbildung der schräg auskragenden Dachkante entsteht eine markante und unverwechselbare Anmutung, die als weithin sichtbares Merkzeichen zu den beiden Gebäudeseiten fungiert. Darüber hinaus entsteht ein effektiver Witterungsschutz, der zum einen den Zoobesucher bis ins Zooinnere begleitet, insbesondere aber auch die natürlichen Holzoberflächen vor Witterungseinflüssen schützt. Durch den permanenten Schutz vor Regen und UV-Lichteinstrahlung kann die Oberflächenverwitterung (Vergrauung) des Holzes weitestgehend vermieden werden - die warmtonigen Holzoberflächen bleiben so dauerhaft erhalten.
Konstruktion und Fassade
Für die Gestaltung des Neubaus werden wenige Materialien eingesetzt, die sich natürlich, schlicht und selbstbewusst einfügen und die Neubaukörper mit ihrer einfachen geradlinigen Bauform sensibel in den gewachsenen Gesamtkontext einbinden. Das Gebäude erhält eine vorgehängte Fassade aus vertikalen Holzlamellen aus Duglasienholz auf einer flächig aufgebrachten Unterschalung. Die Gebäudeaußenwände sowie die Dachfläche wurden als hochwärmegedämmte wärmebrückenfreie Bauteile konzipiert. Die Primärkonstruktion des Gebäudes besteht aus einem massiven Stahlbetonbau, auf den die asymmetrisch auskragenden Holzbinder der Dachkonstruktion aufgesetzt werden.
Im Counter- und Shop-Bereich trennen raumhohe Glaselemente die Innen- und Außenbereiche und lassen dennoch spannungsvolle Einblicke in das Zooinnere zu. Die Anlieferung befindet sich an nordöstlichen Gebäudeseite und wird unauffällig in die durchgängige Holzfassade integriert.
客服
消息
收藏
下载
最近











