查看完整案例

收藏

下载
奢华生活
是一种超越物欲的追求
在追求品质与生活美学的道路上,现代奢华生活艺术正在逐渐成为一种更鲜活、深入人心的生活方式。
在这种理念的引导下,刚在上海揭幕的「Royana xGUBI 上海旗舰店」携手著名设计师曾建龙共同打造了迄今为止亚洲最大的展厅。在喧嚣世界中,这里如同一片静谧的艺术殿堂,还原心灵的平衡与宁静。
01大宅之家
立足生活美学
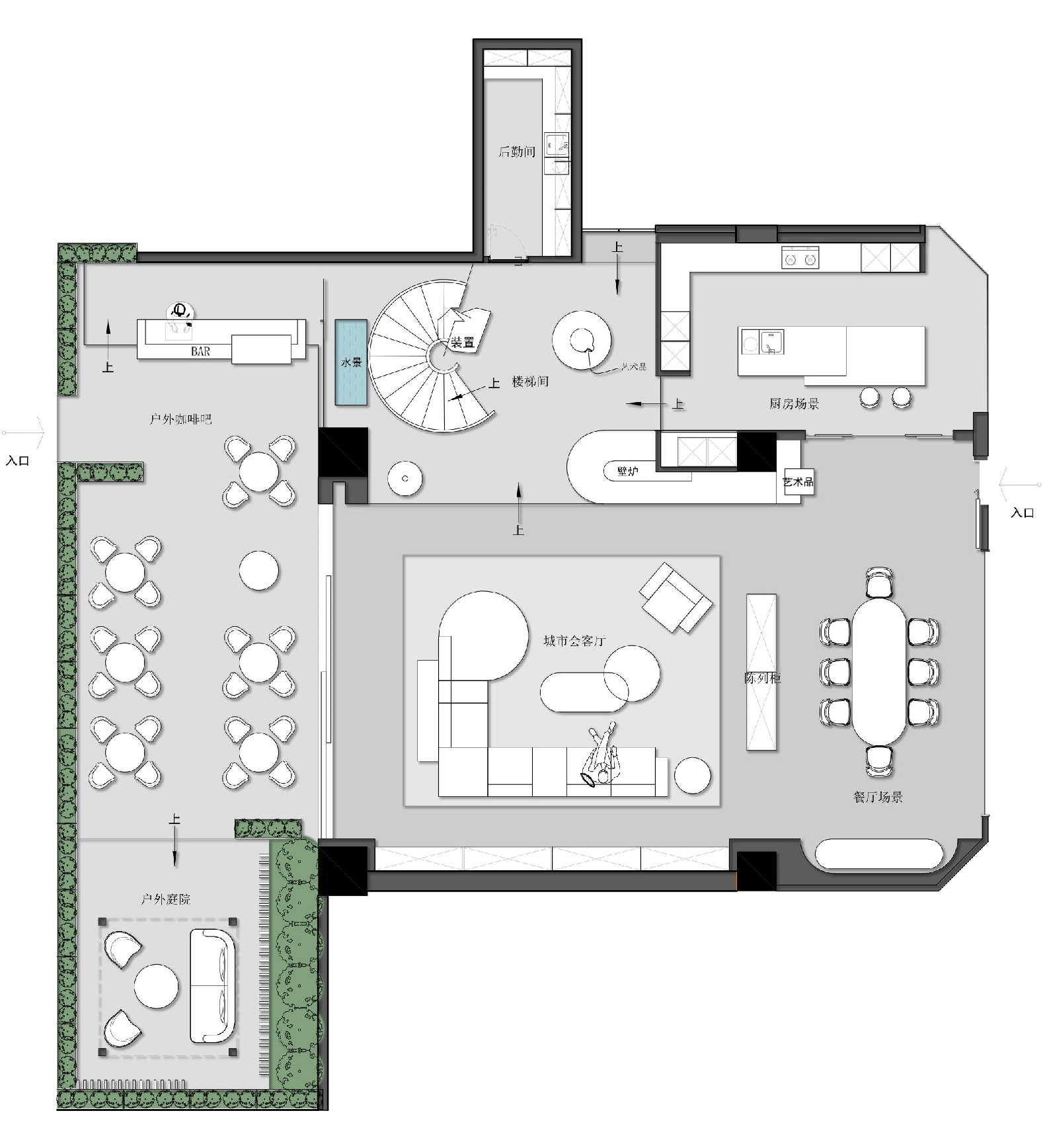
一层 / 入口 客厅 餐厅 厨房
设计的本质在于满足人们的生活需求,而非只是设计本身。
Royana x GUBI 上海吴中路展厅,是一个意法式精致简约与丹麦式工艺融合的非传统现代生活艺术概念展厅,将简约低调的设计风格与奢华质感相结合。
设计师曾建龙以“大宅之家”为主题,将真实而深刻的生活体验带入空间,让人们在享受设计带来的美感同时,也能够在其中感受到设计师的用心与体贴。
这样的设计美学主题,为参观者创造一种深层次的“体验感”,也构成了此次 Royana x GUBI 展厅的设计核心。
整体空间分为 2 层,曾建龙通过对材料的选择、色彩的搭配、灯光的设置等细节处理,营造出了一种既简洁又奢华的氛围,展现空间力量与美感。
在开放式客厅,一把来自法国设计大师 Pierre Paulin 在 70 年代设计的组团沙发 Pacha 系列,展现了当代社会人对亲密社交关系的需求,集体融入与自我独处成为这里矛盾的表现。
Space Copenhagen 设计的 Gravity 落地灯,与温暖如光的书柜,为这种情绪营造了柔和温润的环境。
设计的力量,在于每件产品都会自己讲述一个动人的故事。Royana 和 GUBI 正是为空间营造灵魂的品牌。
曾建龙也让现代生活艺术的简约主义被融入每个角落,丰富多元的材料与家具和谐搭配,彰显着 Royana 和 GUBI 对艺术的执着追求。
02 巧妙融合
一座文化交汇的旋转“桥梁”
一、二层 / 楼梯
一场视觉的盛宴
一次心灵的碰撞
从一层越步,来自北欧的设计魅力,在曾建龙的美学演绎下,变得灵动多变。一座雕塑般的旋转楼梯,打破空间细腻的暖色调,巧妙地勾勒出两个品牌的精髓。
设计美学既是对传统风格的颠覆,也使展厅更具现代感和创新性,从而赋予人们无尽的想象和灵感。
旋转楼梯的黑白色调为整个空间注入了强烈的对比和动态的张力,曲线的韵律和节奏将楼梯的动感和空间感推向高潮。
03激活艺术灵感
多元美学和谐共融
二层 / 起居室 卧室 衣帽间 卫浴
让设计与艺术编织生活多样性
拾级而上,步入充满艺术性的二楼空间。这里让艺术变得具象。来自意大利设计巨匠 Joe Colombo 唯一藤编系列作品——Basket 躺椅与三人座沙发、丹麦灯光设计师 Mads Caprani 标志性的 Timberline 落地灯、Adnet 咖啡桌······增添了丰富的美学层次。
主沙发 GUBl Basket 是来自意大利设计大师 JoeColomb 的作品,坐垫的曲线和轮廓创造出一种诱人的有机外观,光滑的质地与底部的藤条编织图案所传达的波纹运动感形成对比,透过有机的线条打造现代主义美学。
作为将卓越的德国工艺与意大利设计的浪漫主义元素进行深度融汇的系统定制品牌 Royana,在秉持匠人的那份坚韧与创新中,传递出美好生活的真谛。
人们深入其中,这里就像是多种美学精华和谐自然地融合,如现代简约、前卫艺术、自然优雅等等,让整个空间呈现出独有美学品味。
无论是起居室,还是卧室,每一处空间都充满着温暖与舒适,让人仿佛置身于家的怀抱。
GUBI 的家居家具则展现了北欧设计的优雅魅力。每一件家具都是工艺与艺术的完美结合,增添一份独特气韵。
设计师曾建龙关注生活的每一个细节,在品位与格调之间,还原心灵的平衡与宁静。
空间设计从本质上来讲,其实是一种高度凝练化的艺术表现手法,它深刻体现了人们对于生活、艺术、文化等多元议题的深刻理解及不懈追求。
项目信息 INFORMATION
项目名称:Royana x GUBl 上海旗舰店
项目地址:上海红星欧丽全球家居至尊 Mall
甲方单位:诺雅那家居用品(上海)有限公司
项目面积:445.2501349㎡
设计机构:GID 国际设计
创意总监:Gary 曾建龙
项目设计师:陈静哲
项目执行设计师:张森博
深化团队:王克创
灯光设计:阿斯科(上海)照明技术有限公司
门窗定制:欧的系统门窗
完成时间:2023.06
项目摄影:朱海
Gary 曾建龙 GID 格瑞龙国际设计 创意总监
陈静哲
GID 格瑞龙国际设计 主创设计师
客服
消息
收藏
下载
最近





















































