查看完整案例

收藏

下载
穿插是现代建筑设计手法之一,设计师采用穿插,解构设计思维,让本案充满艺术气息。错位与悬浮的元素成为空间的一部分,它们巧妙地与环境融合,营造出一种动态感与未知感,吸引着参观者的探索。空间高差的变化使得不同区域拥有独特的氛围与功能。
△项目视频
△天然与现代元素融合
展厅空间设计应该注重流线和空间分割,同时注重空间美感和舒适度,营造一个顺畅,宽敞,自然的空间环境。
△白天与傍晚
现代空间MODERN SPACE
沙发自成韵律,营造出排布新颖,材料与颜色别致组合的不凡体验。令空间色系与多元的生活情景,通过极致巧妙的设计界限,演绎一组精益通透,简约雅致的现代空间,更多是在诉说真正的,直达人生的生活。
建筑手法ARCHITECTURAL TECHNIQUES
通道入口通过朴实无华的物理形态创造出安静的氛围,营造出未来感的宁静,融合了技术空间和建筑手法,植物造景三面通透。
设计描绘出空间的气质,也宣告着温暖与气质之间,可以找到一种完美的平衡,在空间的建构上,形成新的意指。
大理石经过风雨过后留下的痕迹结合岩板融入空间,增添空间立体感和趣味性,呈现出多维度的场景。
高贵气质NOBLE TEMPERAMENT
别墅客厅模拟场景,主背景墙宝格丽岩板及普拉达绿岩板搭配把沉静内敛的色调将现代轻奢的高贵气质凸显无疑,让居者置身其中,感受每一寸空间的艺术美学。无上专注于独具匠心的创新布局和细节把握,去繁就简,追求极致的制作工艺,赋予生活更多温情与生趣。
光建构空间LIGHTCONSTRUCTION SPACE
明和暗的差异自然地形成室内外不同空间划分的心理暗示。光的微妙的强弱变化造就空间的层次感。 光渲染气氛:晴空万里,细雨连绵,不同的环境带给我们不同的心情,这当中光的变化起着重要作用。光渲染的气氛对人的心理状态和光环境的艺术感染力有决定性的影响。
博物馆场景MUSEUM SCENERY
入口左侧墙体由下往上倾斜,采用岩板材质,右侧采用大理石拉槽处理,岩板向大理石致敬。借助层高7米的优势塑造了静谧而深远的峡谷意向,顶部天光令立面变得柔和有度。空间呈现多维度的博物馆场景体验。两边材质通过灯光引导访客顺气前行,进而开启光的序幕。
艺术美学ART AESTHETICS
呈现出休闲的空间感,宽敞整洁的内部空间,以独特外贯穿整个展厅。满满的细节工艺,也蕴含着无处不在的艺术感,深入感知艺术的细腻,明与暗的空间对比,衬托了时间的意义。无论是横向还是纵向,空间都满满的美学包裹着,让人不得不沉浸于这种享受之中。
侧面光影SIDE LIGHTAND SHADOW
在自然光影的照耀下,室内营造的氛围也将更为突出,并更好的展示材料肌理。通过玻璃砖透明材质、在光影的照射下,往往会产生宛如幻境的意境和富有朦胧感的艺术氛围。
质感TEXTURE
用专业灯光团队打造,才能达到最好的展示效果。在灯光设计方面,我们使用暖色调的灯光来烘托岩板的质感和颜色,营造出温馨,舒适的环境氛围。在展示区,可以利用不同角度的照明来突出岩板的质感,提升产品的美感和品质。
光影LIGHT AND SHADOW
光,赋予建筑以灵魂和生命,让空间被感知,随着时光推移,光影斑驳,建筑的边界与线条与光影纵横交织,为空间注入了情感及温度。
悬挑OVERHANGING
空间通过透景,错位,悬浮,解构等手法,巧妙地利用错位和高差的设计,增添了空间的立体感和趣味性。
独特体验UNIQUE EXPERIENCE
通过解构主义的设计风格,流线性的空间布局,动感的陈列与展示,以及年轻人喜欢的色彩和灯光搭配,设计师成功地帮助甲方完成了用户群体的定位问题。这样的室内设计能够吸引更多年轻顾客踏入本案空间中,并在其中找到属于自己的独特体验,为无上总部展厅带来更多流量和业绩增长。
△设计细部
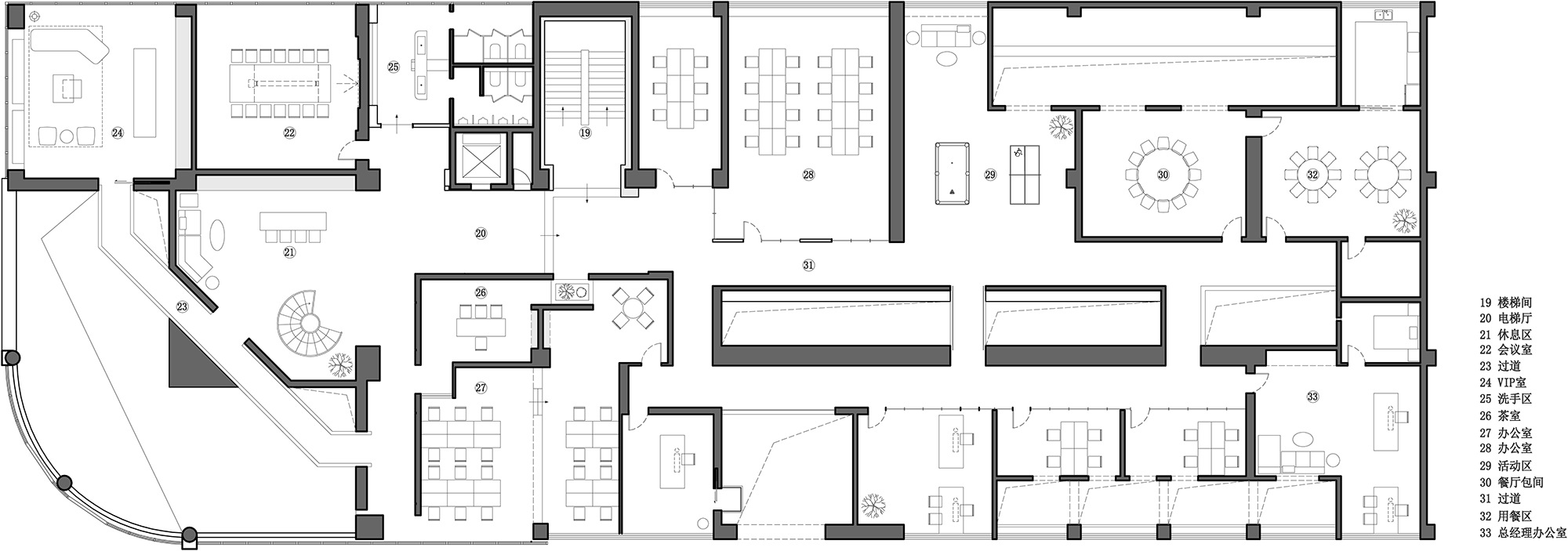
△一层平面
△二层平面图
项目名称|无上岩板总部展厅
项目地点|中国 福建水头
项目面积|3600.2501349m²
设计单位|孙招展设计事务所
主创设计|孙招展
设计团队|廖志辉、郑小兰、李庆勇
项目摄影|1988摄影工坊 阿奇.龙辉
灯光设计|NEKO Lighting
工程施工|安徽技安装饰工程有限公司
软装支持|玩木工坊,肆一软装
艺术涂料|锐仕
孙招展
孙招展设计事务所创始人
孙招展设计事务所是一家新锐建筑室内设计事务所,成立于2018年7月,公司主理人已专注室内设计20年。业务涵盖中高端住宅,商业空间,办公楼,展厅,售楼处,会所,精品酒店,民宿等类型。至力于建筑及室内空间的设计与研究,力求创造可丰富人们的生活体验的定制空间。
客服
消息
收藏
下载
最近
































































