查看完整案例

收藏

下载
电影、装饰与装饰、室内设计,胡志明市(西贡),越南
设计师:Module K
面积: 2000 .2501349m²
年份:2021
摄影:Do Sy
供应商: Dulux, Gerflor, Viglacera, Dulhan, Gach Bong Viet, KINGLED, RPB Furniture, Samsung, Soulroom
室内设计:Nguyen Anh Huy, Jade Nguyen, Ngan Giang, Diep Binh Quyen, Phuong Dung, Phu Binh, Thuy Vi, Nguyen Hiep.
设计师:Module K
城市:Ho Chi Minh City (Saigon)
国家:越南
设计师描述 | Designer description:
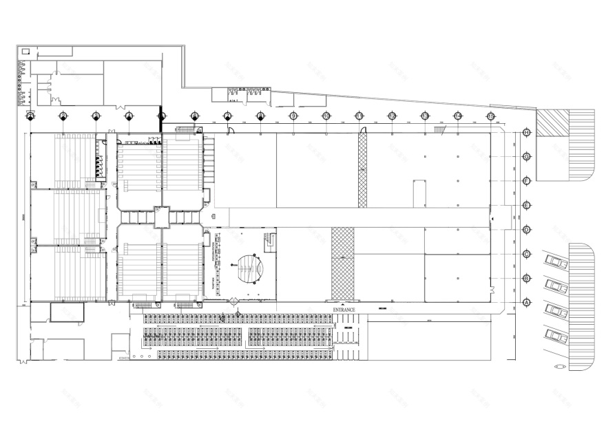
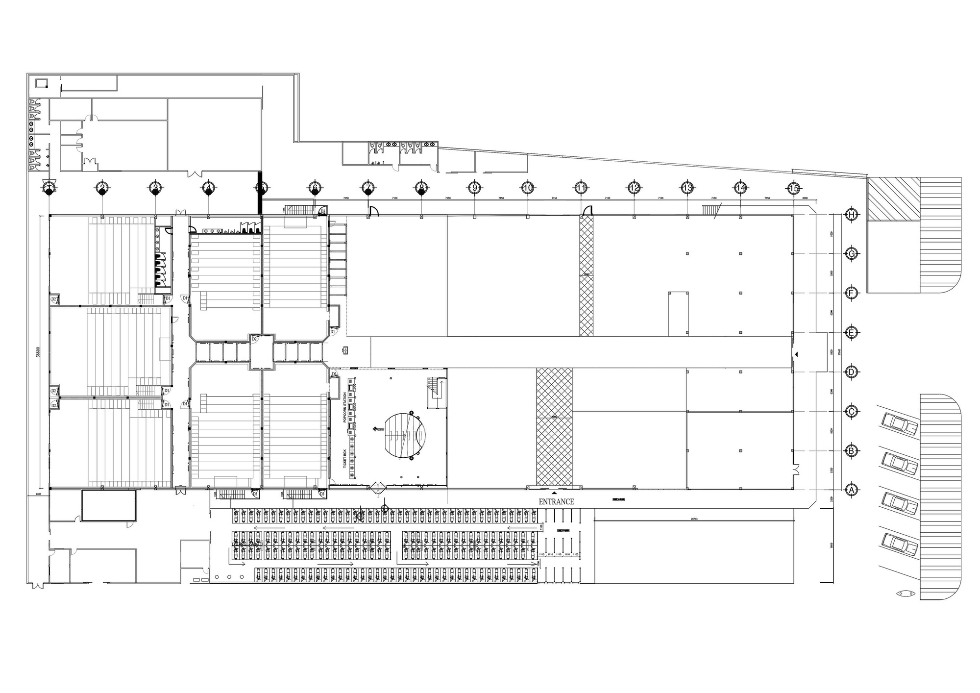
Bold colours, strong geometric shapes and a ‘flashback’ to the famous buildings of old Saigon come into focus in a new cinema design in HCMC. Vietnamese interiors company Module K has completed their first cinema. Located on the ground floor of an existing shopping mall, the 2000 m2 cinema for Beta Media seats 1000 and is aimed at millennials with its Saigon vibe and architectural vocabulary. Each detail of the design references significant Saigon landmarks dotted around the city: the Municipal Opera House, Ben Thanh Market, Central Post Office, Tan Dinh Church, Paris Commune Square and the small alleys.
“But we gave it a different take,” says Jade Nguyen, director of Module K. “We captured the iconic features of Saigon and transformed them by stripping details, condensing the basic lines and turning them into geometric shapes. Then we applied a technique of solid colour treatment, as used in graphic design and cartoons, to bring a unifying element.” The pastel palette, reminiscent of art nouveau, features hues of flamingo pink, sea green and bright orange. The various coloured blocks and cubes transition the different spaces and the stretches of colour give the space a seemingly endless depth.
The main entrance features alternating geometric shapes and a strong simple impact. The vast central hall and sitting area feature a dome in Indochine green recalling the colonial Central Post Office with its towering vaulted ceiling. A circular staircase in the Beta Media logo blue colour is also a meeting place for young people. The floor is paved with encaustic cement tiles with oriental Asian patterns. A flock of pigeons flying above reminds audiences of those at the Municipal Opera House and the Paris Commune Square.
The ticket counter in shades of aqua with eye-catching shapes is inspired by the rhythms of the colonnades and roof of Ben Thanh Market. Circular cutouts in the walls and the ceiling bring contrast to the repeating shapes. The side lobby and hallways are reminiscent of the fascinating alleys and street life of HCMC. The corridor leading into the hall has rainbow coloured arches. The mezzanine and ground floor are connected through corridors running around the building. Several semicircular loggias are formed to create check-in corners and panoramic views of the space. The asymmetrical arch pillars on the right side of the space reference the rose-coloured Gothic style of Tan Dinh Church’s design, as does a bright pink waiting bench. Pastel pink staircases wrap themselves around bold columns, their stepped forms repeated in balustrades.
Circular and square-shaped chairs dot the mezzanine meeting area inviting relaxation and connection. The bathrooms are another shot of strong colour with asymmetrical motifs creating a striking impression. Inside the cinemas orange and lemon coloured lozenge-shaped reliefs on the walls alternate in shape and are backlit to contrast with deep turquoise coloured seats. “The client wanted to convey a message of pride in Saigon landmarks, but not with the usual Indochine style. And we wanted to move away from the typical cinema design - dark and moody - so we tried to create a funky and welcoming space with locations for connecting, eating, drinking pre and post-film showings.” Mr Minh Bui, CEO of Beta Group says: "Module K's strong design response and their passion made a big impact and matched our own."
The goal was to give audiences a brand new destination for movie-watching, with an urban art style resonating with a dynamic and bustling Saigon vibe. “We wanted to create an “instagrammable” moment, a buzz, a wow feeling for Gen Z to tell friends to come and check out the design and remember the name” added Ms Nguyen. Module K used modelling from geometric shapes to generate the different scenes within the spaces. Materials include Indochine tiles, epoxy floor, steel structures, with furniture by local companies Soulroom and RPB Furniture.
After having won the project competition against 30 other design firms, Module K came in under budget and construction was completed in just 35 days. Beta Group already has 20 cinemas in the northern part of Vietnam - this was their first in HCMC - and Module K is now working with them on another cinema on the tourist island PHú quốc.
项目完工照片 | Finished Photos
设计师:Module K
语言:英语
客服
消息
收藏
下载
最近

















