查看完整案例

收藏

下载
FLY ¢ DESIGN ⊙ # 邂逅 # 两人两猫、两室两厅,纯粹而富有结构魅力的空间形体下,结合中古家具演绎场景化故事,家居的闲适与慵懒感尽显。复古怀旧及经典的复刻打造家具的艺术功能化,其间加入美式元素着墨、构建空间情绪的丰富性与立体性,席卷而来给予人的浪漫温柔在诉说——认真生活本就是一件雅事。
Two people, two cats, two rooms, and two living rooms, in a pure and structurally charming spatial form, combined with medieval furniture to interpret emotional scene stories, the leisurely and lazy feeling of the home is fully displayed. The artistic functionalization of furniture is created through retro nostalgia and classic replication, with the addition of American elements to create richness and dimensionality in spatial emotions. The romantic and gentle atmosphere that comes with it is telling the story - serious living is inherently an elegant thing.
客厅/Living Room
客厅/Living Room
客厅/Living Room
在一方天地里修筑属于精神的栖息地,世界纷纷扰扰幸有自己小世界的安静美好。以慵懒雅致的小资情调对话空间表达,黑胡桃模块矮柜替代传统电视柜满足公区收纳与展览的多重需求、复古油蜡皮沙发以小体量的可组合形态与当下空间更为适配。作为模块组合家居给予这个家更多的灵活性与可变性。
Building a spiritual habitat in one world, the world is chaotic and bustling, fortunately with the tranquility and beauty of one’s own small world. Expressing a lazy and elegant atmosphere of petty bourgeoisie dialogue space, the black walnut module low cabinet replaces traditional TV cabinets to meet the multiple needs of public storage and exhibition, and the retro wax leather sofa is more suitable for the current space with its small and combinable form. As a modular home, it gives this home more flexibility and variability.
客厅/Living Room
客厅/Living Room
客厅/Living Room
给予家居形态更多的流畅感与空间感,加强空间的融合与贯通。拆除客厅飘窗将面积利用度最大化,并与软装呼应的木色系艺术涂料来和墙体做分色处理,色彩的呼应与碰撞带来家居视觉的多样化,以色之势、可言万语。
Provide a more fluid and spatial sense to the home form, strengthen the integration and connectivity of space, remove the living room bay windows to maximize the utilization of area, and use wooden art coatings that correspond with soft furnishings to separate colors from the walls. The echo and collision of colors bring diversity to the home visual, and the momentum of colors can be described in countless words.
客厅/Living Room
餐厅看向客厅/View FromTheDining RoomTo The Living Room
餐厅/ DiningRoom
餐厅/DiningRoom
靠近厨房门和入户门的餐厅以方圆技法来处理其身处动线纷繁的开放性空间之中,以小而精的体态塑造区域功能,圆形餐桌搭配中古餐椅以围合之势倒也怡然自得。入户门两侧皆增设收纳柜,一组作为餐边柜补充餐厨收纳,另一组白色柜体则作为玄关柜满足日常所需。收纳功能强化下的井然有序亦保有空间的轻松感。
The restaurant, located near the kitchen door and entrance door, adopts a square and circular technique to handle its location in an open space with complex movements, shaping the area’s functions with a small and refined posture. The circular dining table, paired with medieval dining chairs, is also comfortable and enclosed. Storage cabinets are installed on both sides of the entrance door, with one set serving as a side table to supplement kitchen storage, and the other set of white cabinets serving as a foyer cabinet to meet daily needs. The enhanced storage function maintains a sense of orderliness while also maintaining a relaxed space.
餐厅/ DiningRoom
餐厅/DiningRoom
餐厅/ DiningRoom
餐厅看向书房/View FromTheDining RoomTo Study
通透贯穿作为空间布局的基调,使得面积有限的公区亦能保持优质的空间感,以墙体的微移、相邻空间的面积借调来协调各个区域的功能完备性、空间统筹高效利用。
被厨房借调面积后的书房仍有着舒适的空间感,不大动干戈却协调有致。
厨房门、书房门皆更换为玻璃移门,开合之间既节省面积又保证光与气的自然流通。
As the fundamental tone of spatial layout, transparency and coherence enable limited public areas to maintain a high-quality sense of space. By using the slight movement of walls and the borrowing of adjacent space, the functional completeness of each area is coordinated, and the space is efficiently utilized. The study, which has been borrowed from the kitchen, still has a comfortable sense of space, and is coordinated without much effort. The kitchen and study doors have been replaced with glass sliding doors, which not only save space but also ensure natural circulation of light and air between opening and closing.
书房 /Study
书房/Study
主卧/Master Bedroom
纯粹的白配合温润的木色渲染睡眠空间,以点到为止的软装给予空间一定的留白,安静、柔和。运用弧形元素与体块的穿插丰盈其骨骼与美感,中古家具的置入增添空间故事,温柔而又力量的静谧休憩地。
Pure white combined with warm wood colors to render the sleeping space, with soft furnishings that leave a certain amount of white space, quiet and soft. The use of curved elements and blocks to interweave the rich bones and beauty of the space, and the placement of medieval furniture adds a sense of story, creating a gentle yet powerful resting place.
主卧/Master Bedroom
主卧/Master Bedroom
多功能房/MultiFunctional Room
目前仅有两人居住的家对于卧室只需一间即可,另一间则以多功能房的形式拓展其次卧的多重身份,隐藏式下翻床满足亲友偶住的需求,平日里作为一处自定义空间,任业主随意支配探索自己与家居生活的多种相处方式。
At present, a home with only two people only needs one bedroom, while the other room expands into a multifunctional room with multiple identities as a secondary bedroom. The hidden flip bed meets the needs of family, friends, and even pets, and is used as a custom space for homeowners to freely explore various ways of interacting with their home life.
多功能房 / MultiFunctional Room
卫生间 / Toilet
卫生间 / Toilet
原始图
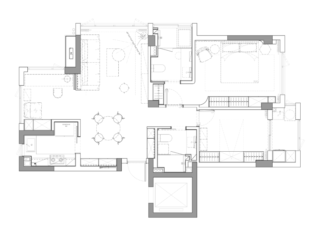
平面图
设计机构/菲拉设计
Designer Department /FLY DESIGN
项目地址 /浙江杭州· 德信西宸
Project address /Zhe Jiang · Hang Zhou
户型 / 两室两厅
Door Model/Two rooms and Two halls
面积 / 92㎡
Square Meters / 92㎡
项目类型/硬装设计,软装宅配
Project type /Hard decoration design, soft decoration house configuration
不要忘记设为置顶哦
地址/杭州市江干区高德置地中心 2 号楼 2 单元 1101 室
客服
消息
收藏
下载
最近



























