查看完整案例

收藏

下载
居邛海,隐泸山,临自然。“将军”留下一幢由岁月沉淀的府第,一个设计的起点。
光阴流转,府第无殇|旧貌重现,回声宛然。
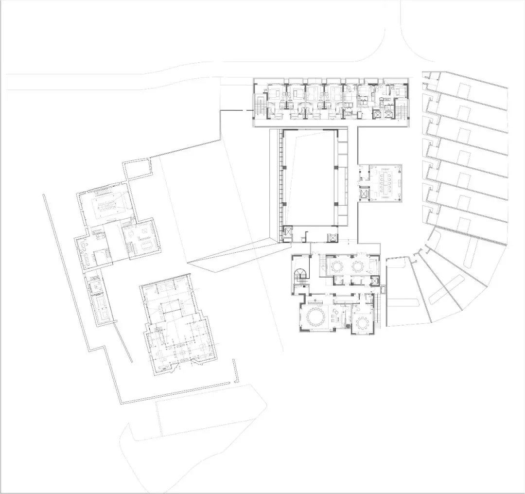
由 IDM 担纲建筑、室内设计的西昌“将军会馆”,围绕清朝武翼将军都尉柳相治的私人宅院展开,从属于中国邛海 17 度国际旅游度假区。
置身历史中,超然时间外。会馆是西昌的“留住之地”和万科的“品牌展馆”,浓缩着企业对文化与时间的珍视、对城市的雄心——整个度假村皆由此延伸和演变。
因此,IDM 以“将军”为起点,将古宅设为酒店乃至整个商业体的序厅,把将军文化的精髓提炼至“酒店”这一载体,令其成为超越“设计”本身的思考行为。
01 前世之姿
一座将军府,半个西昌史
相遇之初,呈现于设计师眼前的将军府早无往日的风采:低矮、破旧、昏暗、荒凉,终年难见阳光——而“日光倾城”本是西昌撩人的标签。
这座始建于清朝中期的柳相治的宅邸为木结构穿斗式建筑,呈三进两院式布局。
进士功名入途,投笔从戎建奇功,嘉庆帝钦赐花翎、擢拜武翼都尉,戎马一生、平步青云、衣锦还乡、兴土造府。
高大的正房、雅致的厢房、青石的地面、对称的楼梯、独特的窗花以及浮雕的鼓形石礎……将军府虽不及京城王府的宏达气派,也不同于江南民居的精致灵秀,但它以当时当地独有的建筑特色立于四川西南的边陲小城、存于如诗如画的邛海岸边。
古宅分两个部分,主楼呈轴对称,附楼则布局自由。附楼中有座马厩,IDM 通过设计处理,将其改为茶室,透过一条窗,把外面的邛海和叠嶂山峦圈进室内。
百年沧桑、世代承袭,将军府把时间物化为建筑身上的一道道印痕,裸露的草泥混合墙体、剥落的墙皮、朽坏的木雕花、清代的盔甲和民国时代的画作,记录着一个家族乃至一座城市的故梦。
02 设计唤醒
传统需被仰望,也需重生
因古建筑面积和高度有限,设计师于室内设下沉空间,增加了层次的丰富性,扩展了空间的尺度。浅色的材料、古朴的家具,配合原貌、原位保存的古物件和旧装饰,仿若历史与你隔空对话,天地苍茫、时空瞬移。
在“复苏”和“唤醒”这座静谧雅致的室内空间过程中,许多当地珍稀的文化遗产遗存成为不可多得的陈列艺术,几乎完美地平衡了历史与当代的时空关系。
IDM 视将军府为展品,用灯光设计照亮建筑轮廓。自然光与人造光结合,将空间塑造地更加立体,静对邛海的水、西昌的月,滋养雅致闲情。
03 今世新语
依循“古法”,再造将军会馆
贴着老建筑的山墙面,一条亲水过廊将人引至新建筑,即酒店的主体。古法构图、现代设计,IDM 以青砖为材、以坡屋为顶、以日光为媒,希望新与旧之间具有率性的反差,又有和谐的美感。
风雨连廊成为新与旧之间的桥梁,白昼之时,阳光被顶部的隔栅过滤成一片片斑驳陆离;夜幕降临,发光的柱身遥对千古月色。在虚实对照间,感受风的呢喃,步入出尘忘俗的幽静。
将军会馆接待厅
酒店接待大堂恰位于新老建筑的连接点,设计师希望它能保持“中立”、兼容古今。天花的样貌取自于传统建筑的“平棋”并对之简化、几何化。
首层的中餐厅设有与室外连接的软塌,在终年 17 度的西昌随时开窗纳景,于自然的芬芳间享受美食韶光。
西餐包间仅用绿色石材与其余空间形成区分,家具则在明清风骨上做简化、增加现代感,融于酒店的整体叙事。
“新与旧、粗糙与精细间,藉由视觉、触觉,去感受生活的轨迹与痕迹,体悟厚重的机理。我们希望新老建筑皆能经历时间的挑战,永葆最初的趣味与内涵。”设计师说道。
中式餐厅包间,可看老宅,洞石墙面效仿着夯土的肌理,与老建筑的纹理遥相呼应,又在与火山岩、木材的变化间配合西昌洁净的阳光丰富了空间的层次。
作为新建筑各功能的前厅,茶室如传统建筑中的“榭”,三面环绕景观,坐观山水共色、倾听海风呢喃。
墙面的瓦片装饰画、树枝状的灯具、“石缝间长出”的长桌……自然与历史的形态勾勒空间,于古色古韵中浅尝萦绕齿间的茗香。
茶室与之隔廊相对,沐浴在周围的景观之中。
04 遇见西昌 沐浴繁星与海色
设计师将套房沿着场地中最佳景观面布置,感受出尘忘俗的幽静。套房之内设有一方庭院,引温泉于院内。
邛海边的芦苇、山野间的飞禽则被定格为工笔画,装饰隐逸生活。空间质朴无华,设计妙造自然。房中以当地的红砂岩作为台面,以竹编做墙面的装饰,又用极具民族风的画作点缀其间。
彝族尚火的文化在会所中的真火壁炉、火塘中得到呼应;天赋的自然光则因设计的巧思而或淡或浓、生趣盎然……
项目名称:中国邛海 17 度国际旅游度假区-将军会馆
业主单位:万科-西昌月亮之上旅游发展有限公司
甲方团队:张润欣 赵东方 文铭 涂钦 李向杰 王海涛
项目地址:四川凉山西昌市邛海泸山风景区海滨中路
设计公司:矩阵 IDMatrix
主持设计:刘建辉
建筑设计:周诗邈 张樵 岳成超 张海霞 张艺轩 刘品杰 秦舒彤
室内设计:常培栋 陈万慎 奥井竜太 汤嘉冰 李柳清 梁漫婷
软装设计:周晓云 陈小灵 郑诗微 潘虹 麻美茜 陈达
导视设计:锐奥设计/管普查
景观设计:朱育帆工作室
家具饰品:M-CASA/MATRIX original
艺术顾问:BananaJam
音乐创作:Lanx
花艺创作:無花工作室
材料研发:铂盈亿象/羽梵悦渡
室内面积:5000.2501349㎡
设计时间:2019 年 3 月
完成时间:2020 年 8 月
项目摄影:释象万合
影视拍摄:释象万合
客服
消息
收藏
下载
最近







































































