查看完整案例

收藏

下载
从项目本身出发,是设计的起点。我们喜欢对当地文化、社区氛围进行探索、寻求自然或人文精神层面的理解,并从中去汲取设计灵感。
-- 马一平
东莞,一个一直在尝试并改变的城市,充满着无数的可能,并飞速地发展着。百司汇SOHO坐落于东莞凯达科技设计中心项目区域,与整个项目一并承载着改善城市的产业结构,为周边地区优势产业的二次创业提供集群、高度自主创新设计研发平台的使命。故此,百司汇SOHO项目,我们期待最终落地的是一个年轻、开放,带有激情的综合场所,没有过多的属性限制,却能给到过往者思考蜕化的指引。
将年轻的理念与设计美学融合是此次设计的核心理念,个性、潮流、年轻化是空间的基调。精挑细选的每一件家具,与各种艺术装置呈现在空间不同的区域,流露出浓烈的艺术氛围与空间多变思维,我们期待这个空间可以成为如艺术家、设计师、电影制作人乃至诗人群体寻求灵感及创意迸发的趣味聚集地。
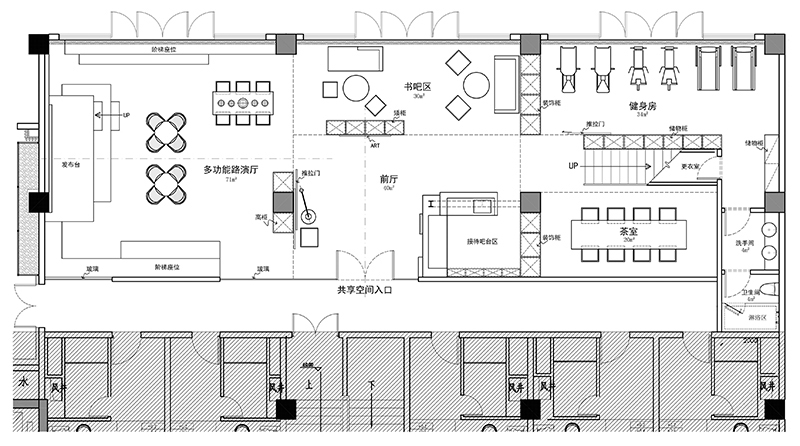
共享中心 / Sharing Center
随着市场日益发展,各种共享经济业态陆续出现,除了大家日常接触的共享单车、共享汽车、共享小型KTV、共享充电宝等外,“共享空间”作为一种新的市场模式也慢慢出现在人们的眼前。东莞凯达科技设计中心百司汇SOHO——“共享中心”也应市场而生。
SOHO寓所的购买群体大部分为年轻人,他们乐于接收新的事物,期待拥有新的生活方式。我们希望共享中心的存在,能让这个群体在自家狭小的“公寓”之外,多了一个更为广阔的专属天地。
这是一个被赋予乐趣的项目,设计师从一开始就想着让空间呈现更多新奇,给它一些属于这个项目独有的空间气息以及效果展示。故此,从一开始便在探寻,不管是空间布局,材料、家具选型,甚至灯光,近乎执着。
共享中心针对SOHO寓所的业主开放,兼具娱乐休闲、艺术文化、商务会谈、路演展示等功能属性,旨在为业主提供一个多元化的空间场所,多维度满足业主的生活所需,同时也鼓励业主打破原有孤立、封闭的生活模式,融入社区去收获社交的乐趣。
迎合年轻群体崇尚自由、追求个性、富有创意的特性,我们打造了一个灵活多变的活动区域,整个空间不再局限于某种单一的功能属性,它可以适应不同场合需求而任意调动,如party、会议,路演及展示等。
设计师用了大量的透明材质弱化了实际的尺寸感,营造轻盈、细腻的空间氛围,中间的装饰柜由两色亚克力拼接而成,色彩拼接似无章法,细看又不失美感,精心挑选的透明亚克力凳有序叠放于空间一角,是空间的装饰点缀,也是功能凳。
通过最大程度地弱化各区域的界限,使空间更具开放性和包容性,在此可以获得更多的交流,带来融洽的人际关系和社区氛围。
快节奏的生活下,也需要能有一处安谧能使焦躁的心平静下来,书吧便是最好的心灵驿站,一本书籍,一杯茶饮,忘掉一切繁杂,尽享慢生活的乐趣,找回最初的本心。它还可以是举办文化沙龙、读书会的场地,业主在此能分享阅读与交流创作,建立更深层次的联系。
共享中心设立的初衷,也在于倡导一种健康的生活方式,业主不单只是走出自己的小空间,也要勇于融入社区,发现社交的乐趣,而健身区,也不仅只用于锻炼身体,同时也是社交和传播健康生活的媒介。设计师利用玻璃、灰镜材质的穿透性,消除空间的封闭和压迫感,业主在这里可以释放生活与工作的各种压力,激发更多的力量和激情。
沿着楼梯而上至夹层空间,该处为私密的交谈和会议而设,考虑到不同场合的需求差异,我们以楼梯为界,通过不同的色彩、桌椅、装饰品等划分两个不同功能的空间,右侧区域的长桌供庄重正式的商务洽谈的使用,左侧设计上偏休闲,可供业主招待尊贵的客人,进行更惬意的交流。
寓所 / Apartments
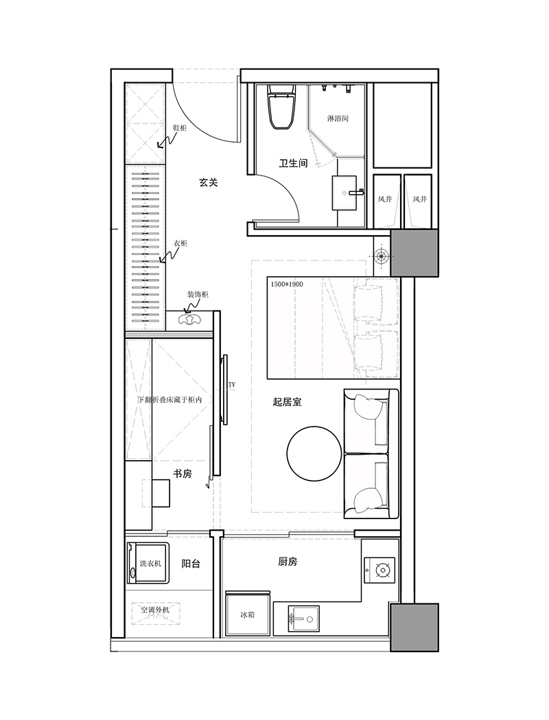
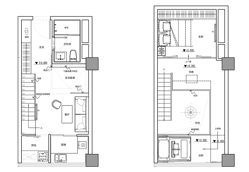
东莞百司汇SOHO 项目除了共享中心,也对外开放了两套示范单位,均为MYP同期操刀设计。如何在有限的空间里实现最大化的居住需求,是设计首要考虑,每一处细节,设计师都经过精心的考量,最终呈现出来的,我们希望是简单但又不失实用,不受拘束且充满质感的空间。
我们注重空间的开发价值,将主要功能考虑其中,并对平面作为了优化处理。玄关处兼具了过道、收纳、展示等功能,充足的收纳系统释放了居室其他空间的压力,使空间倍感秩序,尽显干练之美。
百司汇寓所面向的一部分购买群体为自由职业者。“家”对他们来说,既是生活,也是工作的场所,基于此,在标配的客厅外,以电视背景墙为隔断,设计师在其后开辟了独立的书房区,工作生活两不误,满满的仪式感。
鱼肚白哑光岩板电视背景墙与带有肌理的艺术漆打造的沙发背景墙相呼应,照明系统采用无主灯设计,营造出丰富的层次感,使空间更显精致大气,给人一种干净、简洁的舒适感受。装饰画既是点缀也是分界,床品、沙发、茶几,一切物品有序摆放,有条不紊,都是平凡生活不可或缺的部分。
loft公寓同样采用简洁的设计手法,或深或浅的木质元素给居室带来温度,空间不着一丝花哨的装饰,所挑选的家具款式也趋向简约时尚,引导人们关注其质感,回归生活的本质,遵从当下与内心归属。
功能性依然是我们最为强调的,二层空间被划分为工作区和休息区,夹丝玻璃推拉门设计,为空间增添了不少通透感,也保证了卧室的私密性。
大面积的落地窗设计扩大了空间视觉,减少了紧凑感,白色纱帘若隐若现,自带朦胧的诗意美感,自然光线可畅通无阻的到访每个角落,整个空间丝毫不觉得狭小拥挤,相反,弥漫着浪漫、惬意、清新的气息。
后语
在驻扎的城市,若没有足够的空间与资本,那便以平和的心态,选择一处刚好的空间,恰好的生活方式,以及积极的定向圈层,足以支撑目前的梦想,便也足够。
生活从选择的那一刻开始,带着寄望,就与以往不同。
项目名称:东莞百司汇SOHO共享中心及示范单位
项目地点:广东东莞
设计面积:500.2501349㎡、33.2501349㎡、66.2501349㎡
开发单位:百司汇集团
设计单位:MYP设计事务所
创作总监:马一平
核心团队:潘建伟、蔡沛杰、林梓生
完成时间:2020年5月
主要材料:水磨石砖(定制)、彩色亚克力、艺术玻璃、夹丝玻璃、哑光岩板(鱼肚白)
客服
消息
收藏
下载
最近








































