查看完整案例

收藏

下载
“奇景”与“远方”的并置、舞台布景般戏剧化的空间营造思路能为存量商业空间的改造带来怎样的惊喜?“天物力场”是 Ż-Studio 覃斯之工作室于 2022 年初于上海浦东承接的一个商业综合体整体改造项目的一部分。由于设计、施工和招商过程中遭遇了疫情和封城等因素的影响,最终仅仅使得原建筑三层的改造意图得以部分呈现。我们试图通过本文记录与分享这次改造的一些新尝试,以及收获与遗憾,在后续其它项目的实践中积累进步。
▽项目概览©朱清言
改造契机
天物空间·联洋项目位于上海市浦东新区的联洋片区。这片区域汇集了上海较知名的品质社区,周边居民具有较强的消费能力和对有品质的商业空间的需求。
建筑现状为八层商业综合体,早期由一座厂房演变而来。这座建筑的四层、五层为有独立入口、独立运营的和颐酒店。建筑的一二三层、六七层为商业空间,八层为办公,之间有楼梯联系,商业空间有自己独立的入口。
原建筑的商业空间由于早期策划时定位的偏差,呈现出较为杂乱和拥堵的状态。虽然地处浦东较为核心的地铁站出口处,但商业人气却仅仅主要集中在建筑的一层、二层。不少到访的顾客并不了解有三层的存在,致使商业空间没有发挥出最大的价值。
▽改造前© Ż-Studio
因此,项目业主的商管团队找到我们,探讨改造提升的思路——首先疏通垂直动线,在商场的三层聚集起人气。
改造难点&策略
通过原建筑整体的剖面示意图,我们可以看到建筑的一层与二层之间有较大的中庭联系,然而一二层与三层之间的联系仅仅有两个单跨的小型开洞。这也是大多数顾客没有发现三层的缘故。比较正常的改造思路是拆除三层中间区域的楼板,使得一二三层之间有一个联通的大型中庭开洞。但是在沟通中,项目业主大 boss 对经营面积十分看重,明确表示改造中应极力避免减少三层已有的经营面积。我们只能去思考在两个非常小型的开洞的格局下,如何将人流吸引上三层。比较无解。
短暂陷入思维死胡同后,我想起了我们工作室的宗旨“形式追随世界观”——我们何不先放一放得铺率的问题,来探究一下业主的精神世界。甲方大 boss 当初为什么会将项目和公司起名为“天物空间”呢?得到的答复是来源于《天工开物》。大 boss 除了运营几座商业综合体/园区,早年还是位很不错的木匠,对好材料、极致的工艺、“酷炫”的效果和“没见过”的东西的审美阈值特别高。这点和正常商业地产中普遍追求已经被证明的“模式“是很不一样的。另一个特点就是与我们设计团队沟通的商管团队也很有意思,他们除了自己做招商,几乎都有自己做生意、经营餐厅或者酒店的经历,这点带来的不同是他们的经营逻辑里没有什么思维定式,敢于突破被验证过的经验。
那我们不如放手试着看一下,设计团队和这样的业主发生化学反应,能做出啥特别的空间形态来。
▽建筑整体剖面图-原状© Ż-Studio
这时我想起来了多年前另一次思路被卡住——当时在哈佛设计春晚舞台,费用非常有限,还遇上了一座年龄超过 150 岁的历史保护建筑“桑德斯剧院”,没有办法通过形体做出舞台空间的变化。我的舞台设计史老师茱莉亚·司米连斯基启发我:“和建筑空间不同,舞台上的时间和空间是由光线定义的“。此时此刻,恰如彼时彼刻!
顺着这个思路,我们首先非常自然地想到了利用极具戏剧性的光线来强调建筑在垂直方向上的深度,从而引起来访顾客的好奇心,上到三层去一探究竟。业主大 boss 对这个想法感到非常兴奋和支持。
▽建筑整体剖面图-改造策略© Ż-Studio
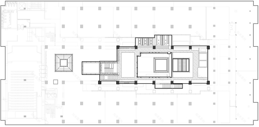
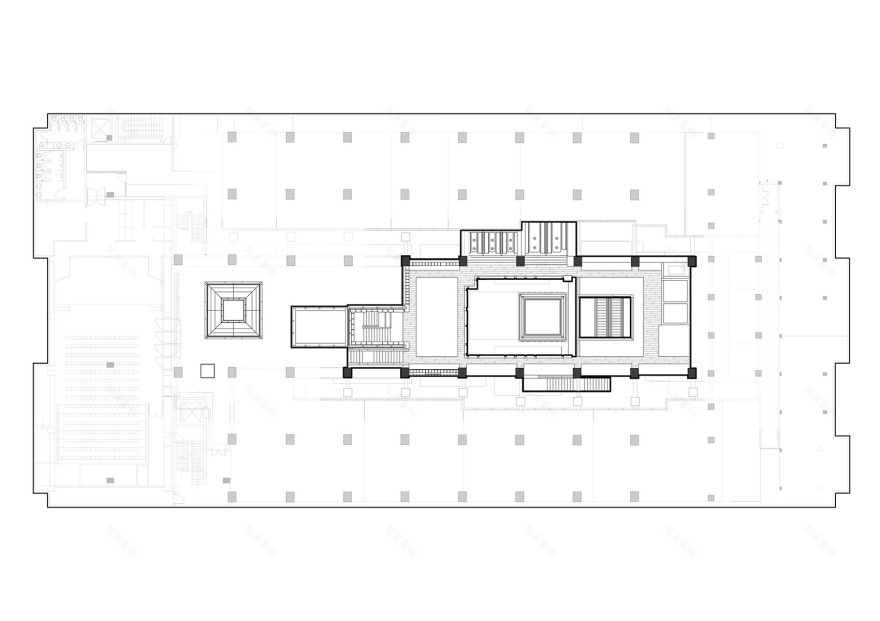
下一步是和商管团队梳理出三层空间自身的动线和划铺逻辑,确保空间符合招商经营思路。反观原建筑的空间格局,当顾客来到原建筑的三层,会发现由于中间区域的店铺挤压,留给顾客的商业动线是一圈狭窄的走道。虽然有一部垂直楼梯直通商场六层与七层的部分,但由于从三层进入楼梯前要先上到三层的夹层,而三层的夹层处于高度封闭状态,对三层的客流并没有吸引力。事实上,贯穿整栋建筑的垂直楼梯的动线是被封闭的夹层阻断的。
我们提出的策略是将三层的中间区域的墙壁全部拆除,但依然用作经营区域。进一步切分店铺面积,每间店铺约为 15-20 平米。在地面上以铺地材料的边界来划分租赁范围。这样一来,可以让所有租户的展示商品一览无余,二来可以形成货品琳琅满目的“集市”氛围。也可以降低商铺的入驻门槛,省去店铺装修的一次性投入,提供短租或者寄售等多种合作经营模式。
在三层与三层的夹层之间,我们打通楼板,形成了一个两跨宽的中庭空间。将之前封闭、废弃的夹层空间转变为尺度舒适、氛围亲切的儿童/家庭活动空间,疏通大楼垂直动线的堵点。
▽3F 改造后三层平面图 – “侵入”走道的店铺© Ż-Studio
原建筑不符合商业逻辑的另一个特点是平行、阵列式的商铺和柱网。这种格局在 15-20 年前建成的许多商业项目中都存在。它的问题是人们行走于走道中© Ż-Studio
四处“远方奇景”的并置
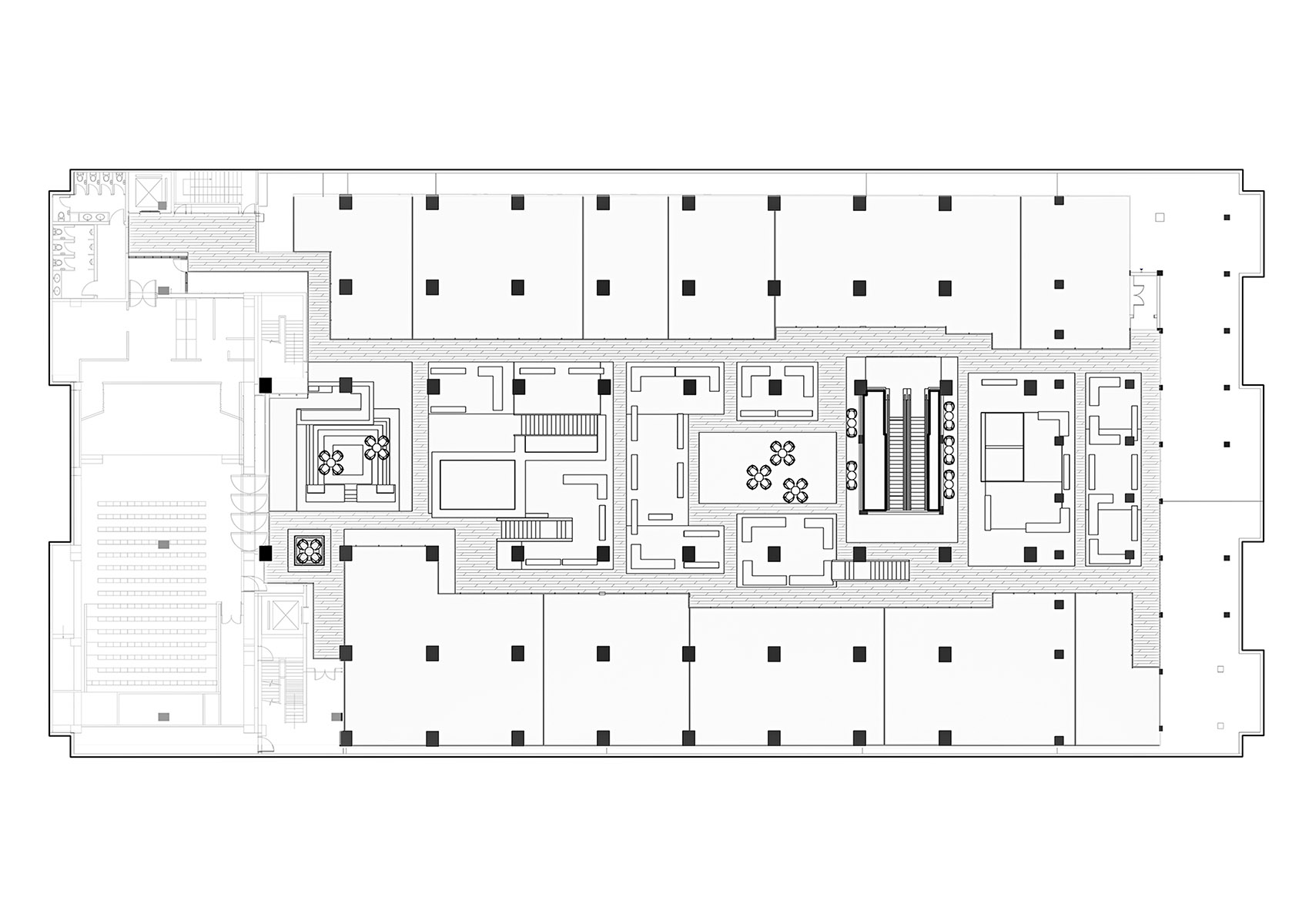
在梳理清楚改造的商业逻辑后,我们便可以放手开展建筑师感兴趣的空间创新实践——在封闭、内向、常规的商业空间里创造反常和奇景。
我们按照空间的特质,将被改造的三层公共区域划分为四片不同主题的区域,引入不同的“远方奇景”——将“晚霞”“迷路园”“海洋”“明灯”等胜景意象带入室内。在有限的商业空间中创造步移景异的时空体验。我们相信:购物空间的原型——集市,原本不止关乎消费,更是关乎信仰、关乎节庆、承载着信息交流和情感连接的使命。
▽改造动图示意© Ż-Studio
1. “晚霞”
无论是画家们对山巅落日之境的浪漫想象,还是作家们对无尽深海的崇高化阐释,都是对稳定、固态的生活常规的所作出的反抗。我们心中对遥远的奇幻世界和秘境探险的渴望,正是我们的内心对“极致”的想象与渴求,是被束缚住的人类本性所作出的抗争与呼唤。
▽3F“晚霞”区域剖面 – 对“晚霞”的几何化阐释© Ż-Studio
二楼通往三楼的主要通道便是位于中区偏南的一组手扶电梯。此处我们将“霞光”的色彩提取出来与“天物力场”的几何特征进行融合与衔接,在上、左、右、前、后五个已有的玻璃面上以定制贴膜图案的形式加以背光呈现,形成“力场”的整体空间效果,吸引顾客向上探索。▽围绕“晚霞”中庭的休闲空间©朱清言
原有的木吊顶被改造为波纹不锈钢吊顶,引起观者关于水边落日的空间联想。我们将原本立在落地玻璃窗前的钢架全部拆除,以 10mm 宽灯带简单勾边,原本的视觉阻隔被改造成为了欣赏自然胜景的“景框”。▽千里晚霞的胜景结合“天物力场”的主题空间©朱清言
2. “迷路园”
前现代的人们通过“迷路园”这种空间的刻意营造© Ż-Studio
“迷路园”的视觉焦点是一个巨大的倒置体量,中庭四周辅以阵列排布的较小体量的“陨石块”,将反重力的力场与多维度的迷宫感带给来访者。注意到左侧错位布置的小门是为了在概念上隐藏中间倒置体量左边角的钢柱,视觉上强化时空颠倒的重力逻辑。
与迷路园三层部分类似于广场集市的喧闹的市井气不同,夹层较为安静的空间被改造为六间按时计费的会议小隔间,为周末有会议和工作需求的家长提供了可选的独立工作环境。
▽将楼板打通©朱清言
由于改造是在封城管控期间边对原有场地进行拆除边进行的,我们“将计就计”顺势提出了“八维迷宫”的设计母题作为天花板墙布的图案,天花板标高的多次意外变化被更具视觉主导性的迷宫图案所掩盖,而变得不容易被察觉到。对于充满不确定性的此类边运营、边拆除、边设计的改造项目,我们选择通过具备容错能力的系统去应对这种不确定性。悬挂体量内嵌的灯盒结合设置了点光源,用丰富的剪纸阴影效果填充装饰则是业主商管团队的奇思妙想,丰富了迷宫空间趣味的层次感。悬挂体量的内部我们原本希望以屏幕的形式来呈现可变的倒置城市景观。而后根据造价限制我们找到了更有意思的处理方式——将 LED 屏幕改为更加稀疏的 5cmX5cm 的 LED 四色灯阵列,表面覆以定制印刷图案的灯膜,呈现可整体变化的背光剪影效果。▽重新审视城市的视角©朱清言
之于四周环绕的“陨石”迷宫阵列,我们巧妙地将为未来可能的轻餐租户预留的排烟道藏匿于灯箱/扶手之中,为商铺经营类型的可变性留足了余地,同时保持设计语言的连续性。
通往高区的楼梯被改造为可以随处坐下的儿童阅读区,书架上被嵌入可以用作阅读座位的小壁龛。由于原空间具备的较小尺度,使得改造后的空间恰好具备孩子们喜爱的尺度感。
▽在不易察觉的角落©朱清言
在与商管团队仔细研究此处消费者的行为规律后,我们意识到改造前于大楼六层、七层儿童业态学习结束的孩子和家长通常会直接乘垂直电梯到达室外停车场并离开。而改造后他们则更加习惯于通过这个空间进入到三层改造区域,触发更多的交流/消费场景;再之后,在商场一层与二层的餐饮业态消费聚餐后,再离开天物空间。这也是我们通过三层改造去理顺整栋“综合体”的消费行为的整体策略逻辑。
在家庭阅读区的书架墙面上设置了一些小的“惊喜”,孩子们很喜欢躲在里面。
▽3F 夹层与 3F 的空间关系 – 处处感受到重力©朱清言
为了营造出没有物理间隔的自由氛围©朱清言
3.“海洋”
《浪漫地理学》的作者段义孚在书中指出,在不远的历史中、在不同的文化中,英雄时代的探险家深入海洋、山岳、森林、洞穴、沙漠和极地冰原,以此检验自己的身体与精神。这样的体验在 2022 年的上海变得难以触及。我们何不通过建筑空间设计将这样的极致体验引入到日常的生活中来?
▽3F“海洋”区域剖面© Ż-Studio
为了提示人们去探索夹层空间,我们将原本平平无奇的木板换成了镜面不锈钢,无限反射的倒影为空间增加空灵感,更加引起好奇心。▽3F 与 2F 连通的天井©朱清言
经过与天物空间自有施工团队密切配合、多次打样测试,我们将海底的图景抽象化为五种不同深度的波纹。进一步拆解为不同密度的激光雕刻线,雕刻在亚克力板上,作为背光冰蓝色 LED 灯带的承光面。我们原本设计中的中庭书架会一直延续到建筑的六层,但由于封城给实体商业带来沉重的经济打击,经过协商,海洋书架暂时施工到现有天窗部分,以便尽快开业。我们随机应变,将海洋的图案印刷在灯膜上,承接书架背后的冰蓝色 LED 灯带的漫射光,同时遮挡上方的天窗结构。最后呈现出来的效果使人感到仿佛置身于一片充满魔法的海洋之中。▽通过类似舞台灯光的照明方式©朱清言
▽利用了原建筑楼梯下方的空间©朱清言
4. “明灯”
在我们熟悉的世界里,当夜幕降临,平日里喧闹的城市也会随之安静下来。这时,无论街道上风雨冰雪,一间 24 小时永不熄灯的书店,便是我们感知城市的温度的最佳媒介。“城市不眠”是天物空间业主方的自营书店品牌,也是对城市的回馈。我们以“为城市里爱读书的人保留的最后一盏明灯”为设计意象,勾勒出了“明灯”的吊顶轮廓。
▽3F“明灯”区域剖面示意© Ż-Studio
考虑到书店本身的经营并不会为业主产生可观的经济效益,我们在设计时便以可变的“活动空间”作为主要的定位。如同“明灯”的吊顶限定出了可停留、有聚合力的空间;地板的铺地形式也帮助加强空间的向心性;陈列台被设计为可移动的;陈列台上结合设计了可触发偶遇的座位。文化空间的本质是人与人之间的相遇与重逢。
在剖面上我们以圆弧来控制各层悬挂书架在剖面上的收分关系,使得这一方小空间给人带来的心理感受仿佛就是一个小宇宙。▽水吧台的设计结合黑胶唱片并以背光呈现©朱清言
▽如古罗马的万神庙一样的向心感©朱清言
项目的施工在疫情期间历经坎坷,我们调侃说天物空间是一个“八维迷宫”,设计方案进一步夸张了这样的空间特点。业主深化和施工团队的席工不但连续几个月吃住在工地,还学会了使用犀牛建模软件,得以准确地沟通与实现设计意图。
为了致敬这个不平凡的改造经历,我们将上海的城市天际线进行像素化处理,以 CNC 机床雕刻镂空金属板造型,并以磨砂亚克力板承 3000K 背光洗亮的形式呈现在了吊顶体量的表面。城市不眠书店,让我们感受到个体与城市的情绪纽带。
▽致敬项目所经历的不平凡的年份©朱清言
按照设想©朱清言
项目名称:天物力场(天物空间·联洋 商业公区三层改造)
项目类型:商业室内空间改造设计
设计公司:Ż-Studio 覃斯之工作室
主持建筑师:覃斯之
方案设计团队:覃斯之,梁曼,田宇,裴雨辰,杨浩洲 ,闫霄玥,刘雨昕 ,亿博,傅昱尧,王一霖,郭梓涵,瞿家华
照明顾问:Patti Lee
商管团队:Gary 胥冰、Susie Zhang 张雅婷、Canna Wang 汪菡、Jane Huang 黄晓剑、Jimmy 俞靖
施工图设计:天物空间施工图团队
施工单位:天物空间施工团队
项目业主:上海本物文化发展有限公司
摄影:朱清言
出镜:Susie Zhang 张雅婷(橙衣少女)、万桃桃(蓝衣少女)
主要材料:板岩贴面、PVC 铺地、定制图案墙布、木纹饰面板、镜面不锈钢板、激光雕刻定制图案亚克力板
项目地址:中国,上海浦东新区联洋片区芳甸路地铁站 C 出口
建筑面积:1600.2501349㎡(两层总和)
设计时间:2022.02 至 2022.05
施工时间:2022.02 至 2022.10
客服
消息
收藏
下载
最近













































