查看完整案例

收藏

下载
2021 年末,北京王府井大街整体升级,其中「东安市场」作为重要的一部分也迎来了23 年以来最大规模的设计改造。
▽视频©花生工作室
整个项目的建筑面积达 1.1 万平方米,楼内集合了 600 多个国际一线的奢侈品牌、独立设计师品牌和高街潮牌。融合中式建筑元素、场景与现代时装,创作出一番穿越时空的感官对话, 尝试把传统中式建筑和现代的制作工艺融合,把东安市场百年历史与现在、未来都串联起来,从而「重叠出全新的空间」。
▽改造后的空间概览©吴鉴泉
▽历史、现在与未来的重叠©吴鉴泉
All Design Studio(上海好典空间设计有限公司)成立于2016年,主创团队具有建筑,室内,时尚,艺术等背景,坚持“设计不是艺术,它是服务于人的一门学科”的核心价值观。重视原创性充分发挥设计自由度,懂得并擅长为不同的品牌进行定制化的服务,创造叙事的、富有品牌DNA的空间形象,严格把控每一道细节至项目落地。
坐落于北京这座历史自然赋予的文化都市,当地文化的设计元素被纳入设计语言思考中,照射出对多样性和人文性的召唤。他们利用了时尚鲜明的色彩和材质来代表「现代」,同时采用了古代建筑般的结构线条来代表「历史」,将二者完善地融合在一起,呈现出如梦幻影般的「老北京形象」。
▽设计分析 ©All Design Studio
改造过后的空间分布主题更加清晰©吴鉴泉
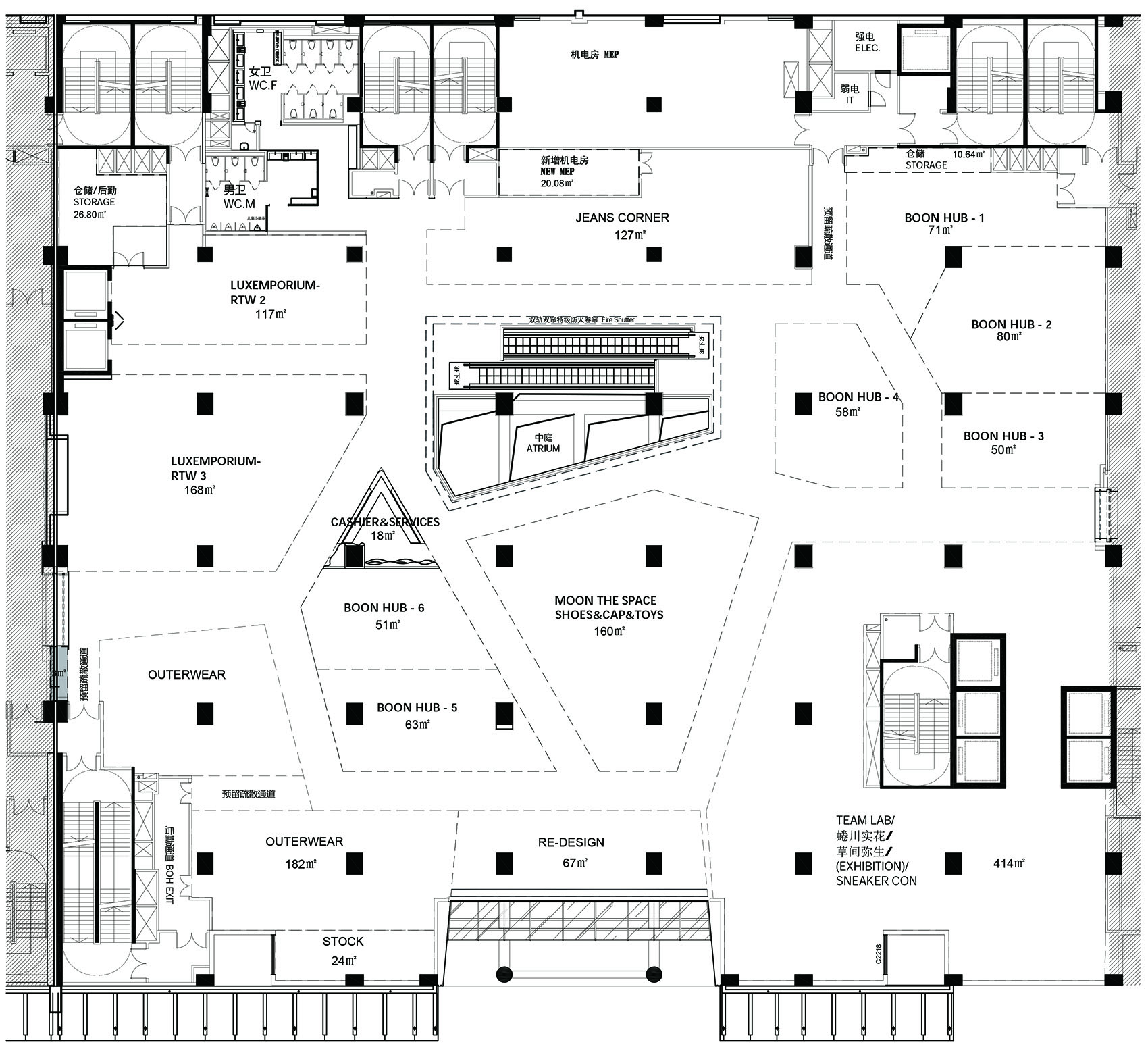
1F形塑东安
「形塑东安」为一层空间主题,这里是设计重点——「中式建筑结构」的首次变幻。团队借鉴了传统中国建筑中天花板和柱子的结构,创造出如青山掩映的诗意钢铁庭院一般。呼之欲出的轻盈质感让古典与现代美学的碰撞出新的诠释写照。整体的色彩取自富含宋代美学的优雅中性色调,与有机材质相结合——比如玻璃材质的运用,都呈现出一种永恒的经典美感。一层的品牌主要以鞋包集合区、眼镜饰品、国际潮奢品牌为主,激发出创造时尚的乐趣与力量。
▽一层空间概览©吴鉴泉
▽不同的展示空间©吴鉴泉
▽休息区©吴鉴泉
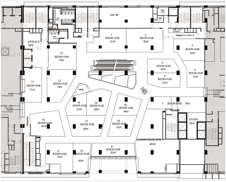
2F幻聚东安
二层主题 延续了「中式建筑结构」,在天花上产生的全新的设计语言,几何图型的变换融入更多现代元素,带着工业风的简约,打造新中式视觉感。「幻聚东安」集合了一众潮流品牌店铺,容纳了更多国际年轻设计师品牌,与年经活力的氛围相得益彰。
▽二层空间©吴鉴泉
▽卫生间©吴鉴泉
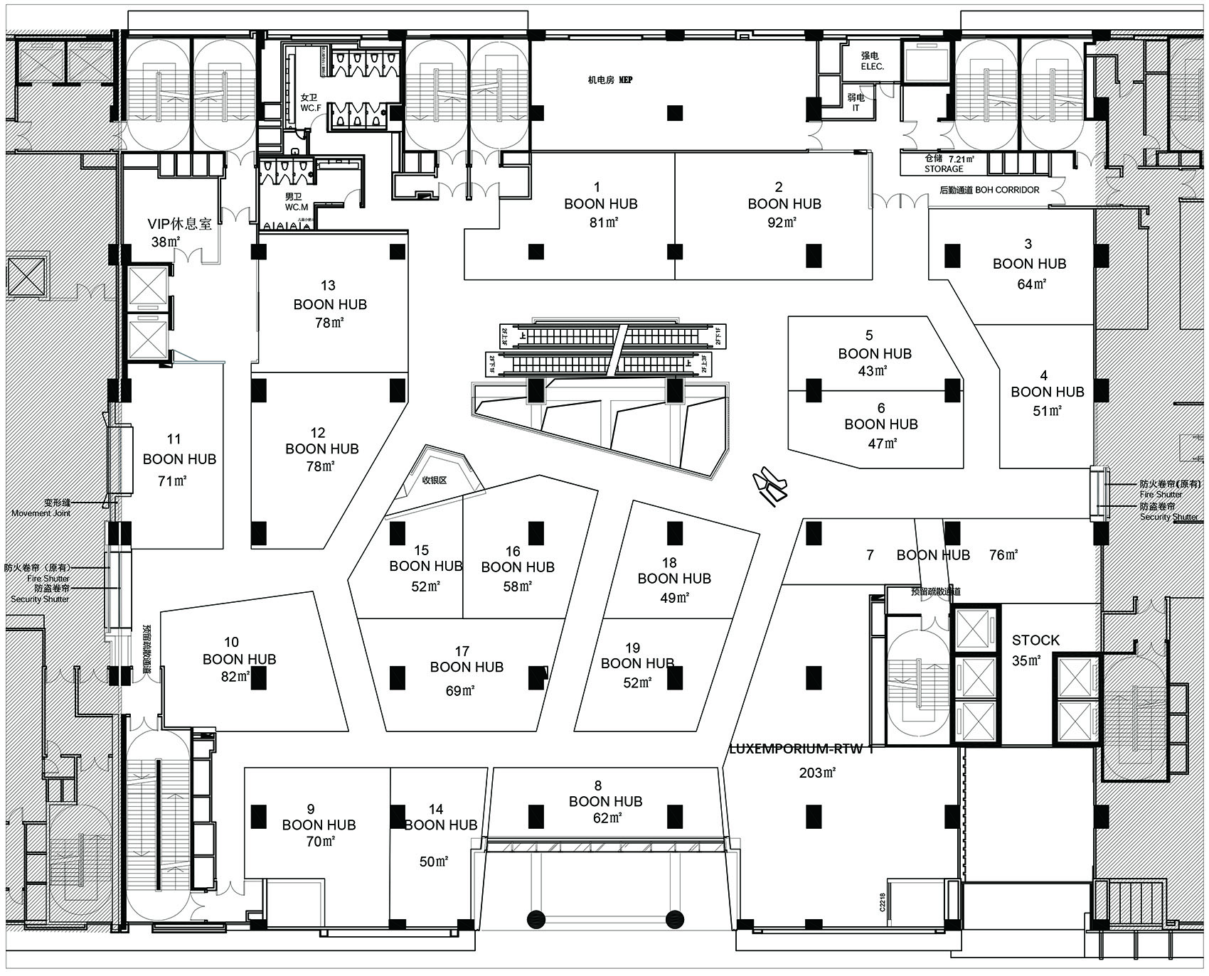
3F 云艺东安
三层好比云端,延续变化了二楼集合形体天花成导角的异形体,仿佛如云朵飘在天花板上。以云的各种形态为线索,打造富有现代艺术气质的空间氛围,低饱和度的宋朝浅蓝色使得置身其中的感受添上了一抹柔和的气韵,极大的包容性艺术感将成为人们触碰艺术与文化的空间。
▽三层空间概览©吴鉴泉
▽浅蓝色与柔和的几何形状©吴鉴泉
概念化方式探索中国传统文化里的美意与雅致
充满变化性的几何图形设计贯穿整个东安市场,三层空间是几何形态的最后转变,从锋利清晰的方形流转至圆润顺滑的圆弧造型。作为空间设计的主线,中国元素延伸至这层“艺术馆”中,未来与历史的层层叠叠,无界融合在极具吸引力的空间中。
▽中国元素与圆弧造型的天花©吴鉴泉
站在扶手电梯上,抬头可见轻盈如云艺般的明亮灯光洒落而下。带着现代建筑的简约,金属呈现出材质的自然本色,凹凸的轮廓结合光线,增加了阴影与反射,削弱的了金属质感,以轻巧感带出强烈的体积感,既增加了空间的视觉律动,亦更显通透,仿佛漂浮在空中一般。
▽从扶梯仰望空间©吴鉴泉
机能性与自然植被元素的出现,象征着全新篇章在零售店铺空间中张力开来,All Design Studio构建起充满科技感与未来感的区域——潮鞋区与羽绒区、国潮区。
▽仿佛漂浮在空中的空间 ©吴鉴泉
承载百年历史©吴鉴泉
全新的东安市场在经过了百年时间洗礼之后,设计师从形塑到幻聚再到云艺,穿梭在艺术的视角下,连接精神界面与社会理想,推演城市商业与艺术共生的全新愿景。
▽一层平面图©All Design Studio
▽二层平面图©All Design Studio
▽三层平面图©All Design Studio
项目名称:东安睿锦
业主:北京王府井百货(集团)股份有限公司东安市场
睿锦尚品国际贸易(上海)有限公司
完成年份:2021年11月
建筑面积:9872.2501349㎡
项目地址:北京市王府井大街138号
设计主创:梁春亮Gnial Liang, 李亢骋Fred Li,陈宏威 Wei Chen
设计师:张毅毅,周钊吉,段静,李涛,单灏,孙倩荣,黄子越
效果图:Visual Wang Studio
公共区域摄影师: 吴鉴泉
店铺摄影师:Chao fan Photography|康超凡, Studio Ten|谭啸
视频:花生工作室
施工方:上海普宏建设工程有限公司
客服
消息
收藏
下载
最近























































