查看完整案例

收藏

下载
国际知名建筑公司 Duccio Grassi Architects 设计了利雅得(沙特阿拉伯)第一家 Brandon Maxwell 精品店,该精品店位于著名的新开业的“VIA Riyadh”购物中心,该购物中心具有巨大的建筑价值。
该商店的概念是由 Duccio Grassi 想象和构想的,这是一次展示时装设计师 Brandon Maxwell 源于他的根源和经历的不同侧面的旅程。
从德克萨斯州到欧洲,最后到达纽约:世界、文化和风格的迷人融合,如此不同却又完美互补。 记忆与未来、优雅与冷静的巧妙结合,从主流时尚中脱颖而出,表达出对当代魅力的全新原创诠释。
收银台和精品店横梁天花板选用的针叶树木板让人想起德克萨斯州,它以精致的白色内饰、护墙板和丰富的墙面装饰面料再现了巴黎的生活,这些都是法国历史建筑的典型特征, 它的悬挂和铁艺元素让人想起当代生活之都纽约。
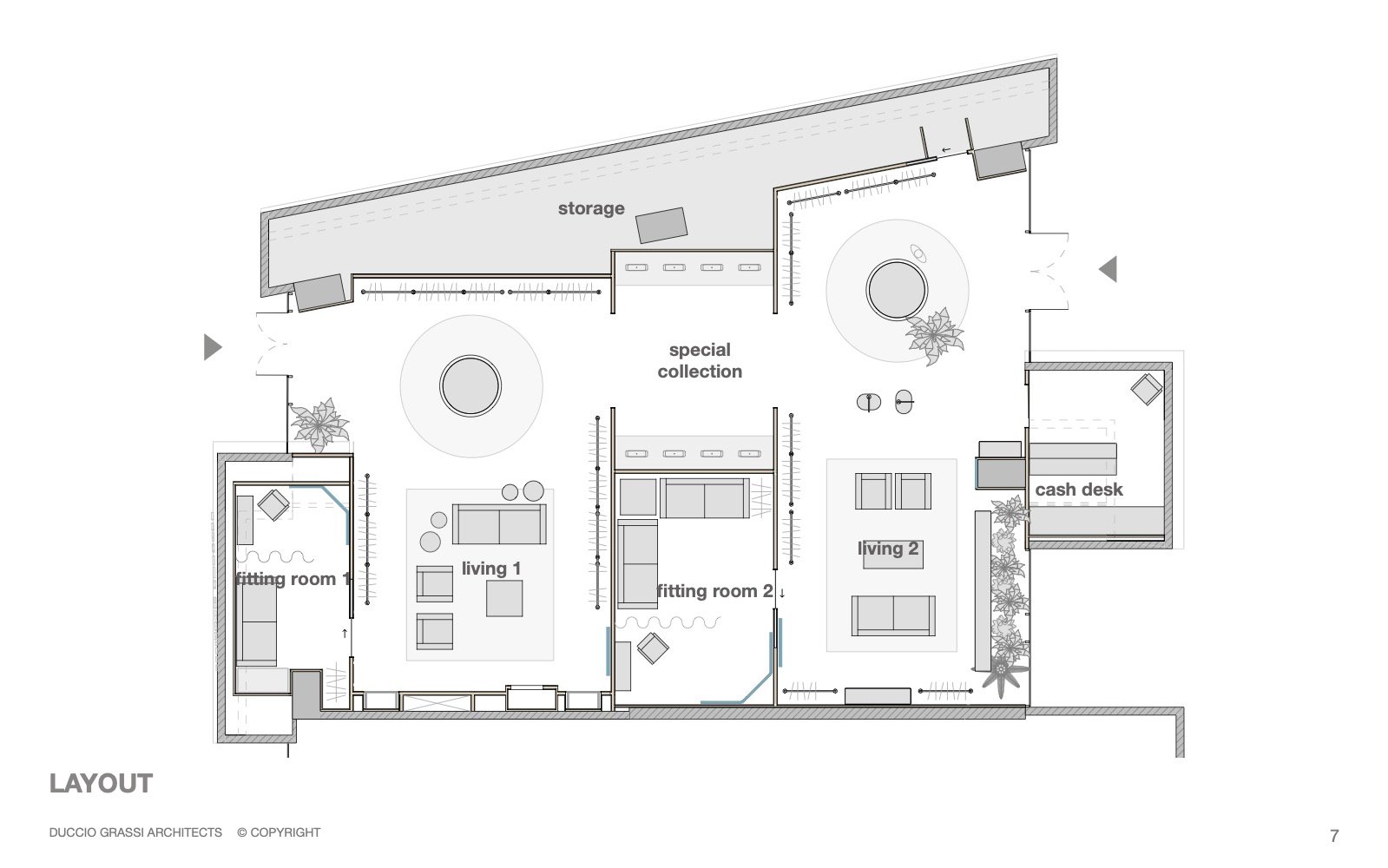
平面与结构图:
设计师:Duccio Grassi Architects
坐落:Riyadh / Saudi Arabia / 2024
语言:English
客服
消息
收藏
下载
最近






















