查看完整案例

收藏

下载
渲染:
Negativ
扎哈·哈迪德建筑事务所(ZHA)近日在拉脱维亚首都里加市的Ropax码头新客运和滚装货运码头建筑竞赛中胜出。通过与拉脱维亚的Sarma Norde Architects、Alps Landscape Architects以及芬兰公司Sweco合作,ZHA在全球设计重要交通基础设施的丰富经验,与本土团队对当地社会、经济和文化重要性的理解形成重要互补。
渲染:
Negativ
ZHA的设计方案将一个建于1960年的现有航运仓库,改造成一个新的2万平米的渡轮和游轮码头,并在该结构上增加了第四层,以容纳公共露台。在露台上,可以尽览道加瓦河全景和里加市中心的天际线。
渲染:
Negativ
新码头以原始建筑的正交几何形状为基础,采用当地可持续森林的木材,与已有64年历史的钢筋混凝土结构相结合。客运码头通过独立的到达和出发路线优化旅客通行,使现有港口的吞吐量和运营效率翻了一番。
渡轮码头设有一个三层高的到达和出发大厅,宽阔的玻璃窗为室内带来充足的自然光与河岸景色。由当地可回收砖块制成的垂直幕墙飞翼可起遮阳作用,这些鳍片的角度经过设计,以根据每个立面不同的日照条件和需求,提供不同程度的采光。
渲染:
Negativ
新渡轮码头作为里加滨水区扩建计划的基础,也是城市的多模式联运枢纽,与里加的有轨电车、公交车、出租车、自行车、旅游巴士等交通网络相连。宽阔的屋顶天篷延伸到建筑围护结构之外,为露台咖啡厅、餐厅的客人,以及公共交通广场上的乘客提供遮蔽。
为致敬拉脱维亚悠久的制瓷历史和传统,码头的屋顶采用了该地区生产的瓷砖和光伏板。屋顶及瓷砖的柔美弧度与相邻的道加瓦河面倒影形成呼应。
渲染:Negativ
里加Ropax码头的目标之一是成为游轮的母港。
预计未来新码头每年可容纳多达150艘游轮以及540艘客运和货运船舶,其中包括360艘渡轮和180艘滚装船。
新码头
计划于2028年投入使用,届时将可容纳约80万名乘客。
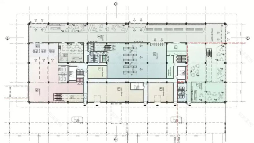
项目图纸
总平面、底层平面与周围环境、鸟瞰图
设计概念
技术图纸
客服
消息
收藏
下载
最近















