查看完整案例

收藏

下载
GOD IS IN THE DETAILS
^
^
走进这间极简住宅,首先映入眼帘的是经典的黑白配色,这是现代设计语言中最直接也是最具冲击力的表达方式。白色的墙面与天花板,如同一张巨大的空白画布,而黑色的家具线条乃至灯具,则在这一片洁白之上勾勒出深邃的轮廓,形成鲜明的视觉对比。
^
黑白的纯粹不仅赋予空间无限的延展感,也让家的每一处细节都显得更加利落与精致。
^
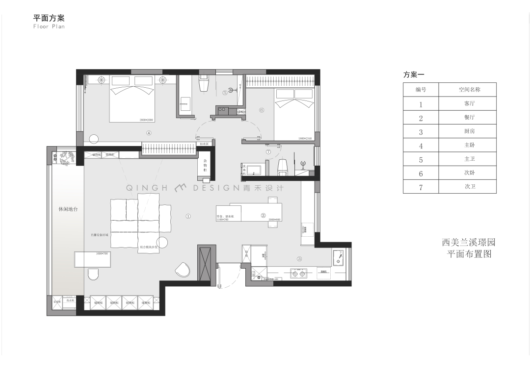
阳台地台的抬升设计,这一巧妙构思不仅为室内引入了更多的自然光与美景,而且通过高度差的设置,为居住者创造了一个既私密又开放的休闲角落。地台上通铺木地板,摆上简约的休闲椅茶几,这里便成了读书、品茗或小憩的理想之地,让生活多了几分诗意与惬意。
^
随着现代人生活方式的变革,客餐厨一体化的开放式布局已成为极简设计的标志性特征。在这里,厨房不再是封闭的操作空间,而是与客餐厅无缝衔接,共同构成了家庭成员交流互动的核心区域。这样的设计不仅优化了空间利用率,更促进了家庭成员之间的亲密互动,让烹饪成为一种共享的乐趣。
^
极简并不意味着单调,设计师巧妙地利用简洁的体块感墙体造型,为开放式的空间划分出不同的功能区域,同时营造出丰富的视觉层次。这些墙体或以纯净的白色呈现,或在特定位置嵌入黑色体块,既保持了空间的连通性,又巧妙地界定了客厅、餐厅与厨房的功能界限,使得每个区域既独立又相互关联,空间流动而有序。
^
家具的选择同样遵循极简的原则,线条简洁流畅,造型轻盈兼具功能性。无论是沙发、餐桌还是床具,都以最少的元素表达最直接的功能,同时在材质与色彩上与整体空间保持一致,既满足了日常使用需求,又成为了空间美学的一部分。
项目名称:西美·兰溪璟园
项目地址:河北石家庄
设计团队:青禾设计团队
在理想主义的花园里
梦想的花朵格外绚丽
QINGHE
青禾
客服
消息
收藏
下载
最近






















