查看完整案例

收藏

下载
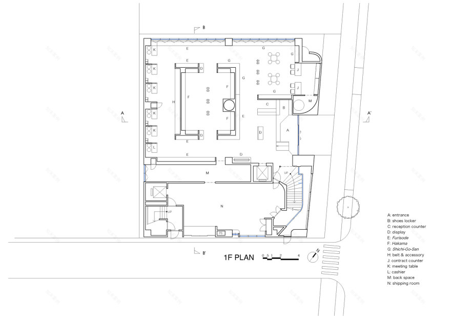
Marusho 于 55 年前在横滨成立。 继去年二楼服装区后,我们负责一楼销售层、楼梯、立面的改造设计。 与以婚礼用的正式和服为主的二楼不同,一楼展示了成人礼用的风衣、毕业礼用的袴、儿童用的七五散这三种和服。
改造前的立面有一面弧形墙,上面铺着白色瓷砖,与和服的形象不符。 出于这个原因,我们添加了一个门形结构来隐藏弯曲的墙壁,并创建了一个覆盖着与道路平行的外露骨料饰面的直墙。 面向楼梯的部分安装了剥离器百叶窗,以轻轻遮挡视线。 楼梯内墙采用花旗松不燃棱纹板,强调锐利的垂直度,天花板上的金箔布营造出非凡的奢华感。
为了防止不同的客户群体在房间里混在一起,我们计划将中央销售区围成方形嵌套状态。 中央周边为袴销售区,外围两侧为Furisode,一侧为七合山。 夹具高度保持在 1.8m 以减少压力。 会议区面向欧比腰带和配件的架子,以便客户可以轻松安排选定的和服。 配件架是久美子格子和椴木钉板的组合,实现自由展示和设计。
我们研究制作一个像新月一样的轻型结构,拱形边缘逐渐变细,拱形结构连接在天花板上现有的横梁之间。 拱门上覆盖着木饰面,拱顶被漆成白色,并用间接照明照亮以突出结构。 新月形的拱门从入口一直延伸到店铺的后面,强烈地吸引着视线。 在二楼的设计注重形式的同时,我们想在一楼创造一个明亮宽敞的空间。 看着那重复的两排微拱,似是眉眼。 因此,我们为新月借了另一个日本名称,并决定将这个项目命名为“Mayuzuki”。
项目设计:Tsutsumi & Associates
项目面积:275.2501349m²
项目年份:2022
项目摄影:Toshiyuki Yano
供应商: Hoxan, Koizumi, Nihon Tamaishi, SAKAI Rib, Sangetsu, Tanihata, Tokistar, Toli, YABUHARA Industry
室内设计:Tsutsumi & Associates
项目建造:Ooibashi
灯光设计:Lightmoment co.,ltd
总建筑师:Yoshimasa Tsutsumi
项目助手:Xiuxiu Hong, Yang Xiao
项目成市:Yokohama
项目国家:Japan
设计师:Tsutsumi & Associates
语言:英语
客服
消息
收藏
下载
最近


























