查看完整案例

收藏

下载

翻译
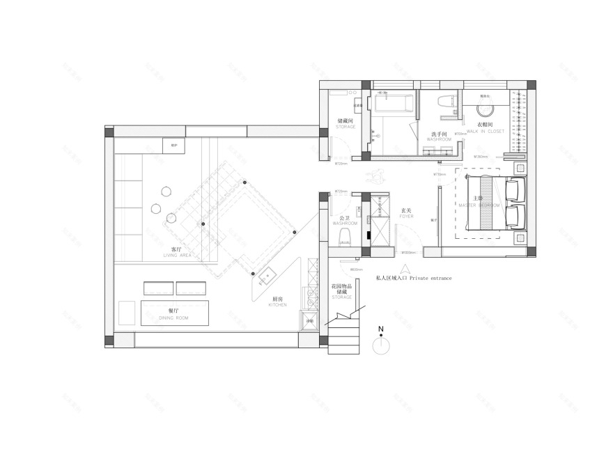
Area:101m²
Year:2024
Photographs:Boris Shiu
Lead Architects:Vincent GU, Chen JIN
Design Team:Wan Huiyang, Li Juan
City:Zhangjiakou
Country:China
For astronomy enthusiasts, this is an ideal place to observe the beauty of the night sky. What's more ingenious is that we adjusted the angle of the rotating platform in the design, creating a resonance between the roof and the mezzanine. The 45-degree rotation design injects dynamism and variation into the space, casting unique light and shadow patterns in the room, creating an artistic effect that makes the space more interacting.
This poetic feeling is also reflected in the selection of materials and interior details. Natural wood and stone, with their rustic textures, complement the Chicheng Valley, adding a sense of tranquility and stability to the space. In the design, we integrate modern way of living while respecting the rural untamed environment, creating a dwelling that people will linger in.
This interior design project is a tribute to seasons and a respect for nature. Through the use of colour combinations, lighting treatments, and natural materials, we have infused the space with dynamism and poetry. Here, people can not only experience the vitality and warmth of changing seasons, but also deeply integrate with landscape outside.
Through this design, we hope to create Courtyard 11 into a poetic space that people yearn for, where they can find peace and joy in their hearts, and experience the beauty of nature and the gift of seasons. This design full of poetic charm will leave every visitor deeply intoxicated in this earthly paradise.
Project gallery
Project location
Address:Chongli, Zhangjiakou, China
客服
消息
收藏
下载
最近






















