查看完整案例

收藏

下载
项目:PROTAGONISTE STORE
设计:balbek bureau \ Slava Balbek, Daria Kushnir, Alina Vovkotrub
产品设计:Roman Horoshylov
面积:75,7 sq. m
年份:2020
地点:Kharkiv, Ukraine
摄影:Slava Balbek
ABOUT | CONCEPT | PROCESS | DESIGN | DETAILS |TEAM
ABOUT
Protagoniste Store 是一家哈尔科夫多品牌服装店,提供自己的品牌以及来自各种世界品牌的服装。 Protagonist 是一组项目,其中还包括 2019 年在附近开业的 Protagonist Bar。
概念
我们的团队受委托为一家能传达某种情绪的商店进行空间设计:一家看起来像当代艺术画廊的商店,但它不是绘画和艺术装置,而是衣服、鞋子和配饰。 在工作时间,它是一家服装店,在活动和派对期间,它成为一个志同道合的人可以舒适地交流,在 DJ 网络中跳舞的地方。 当您在Protagoniste Store时,您会感觉自己同时在画廊,商店和舞池中。
对我们来说,通过室内设计表达 Protagoniste 创始人对店内展示的自有品牌和其他品牌所重视的一切也很重要。 这首先涉及形状和纹理之间的关系。 他们认为房间设计的建筑元素应该胜过色彩。
过程
设计
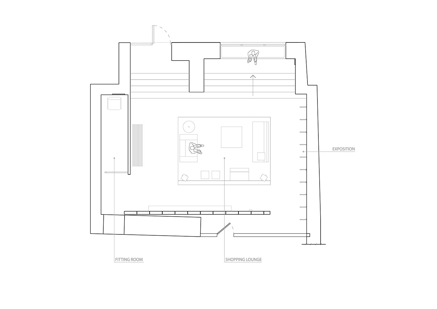
商店是一个干净简单的空间,入口处的地板较低。 功能分区以带有小舞台的圆形剧场的形式组织。 除了提供空间交流之外,圆形剧场的整体混凝土楼梯成为展览的一部分,而商店中间的即兴舞台则形成了一个带有软座椅的讲台。
在收银台一侧讲台的左角,有一个隐藏的储物柜,用于存放文件和操作细节。
细节
我们的团队与产品设计师 Roma Khoroshylov 一起,专门为此项目开发了整个存储和货架系统。
壁架由弯曲的穿孔金属板组成,以一定角度固定。 特殊紧固件拧入搁板的孔中; 它们用作展示物品的支撑。
模块化系统完全由拉丝不锈钢制成。 该结构固定在以相同距离安装在墙上的悬臂支架上。
带槽口的金属棒在两端拧入,使衣架彼此等距放置。 鞋子和配饰也有单独的架子。
我们精心挑选每一件家具和装饰品。 其中大部分是在荷兰的古董店购买的。 来自乌克兰家具品牌 propro 的带有圆形部分的简约扶手椅有助于店内的家具组合。
团队
作者:
Daria Kushnir
图片@Daria Kushnir
语言:英语
客服
消息
收藏
下载
最近



































