查看完整案例

收藏

下载
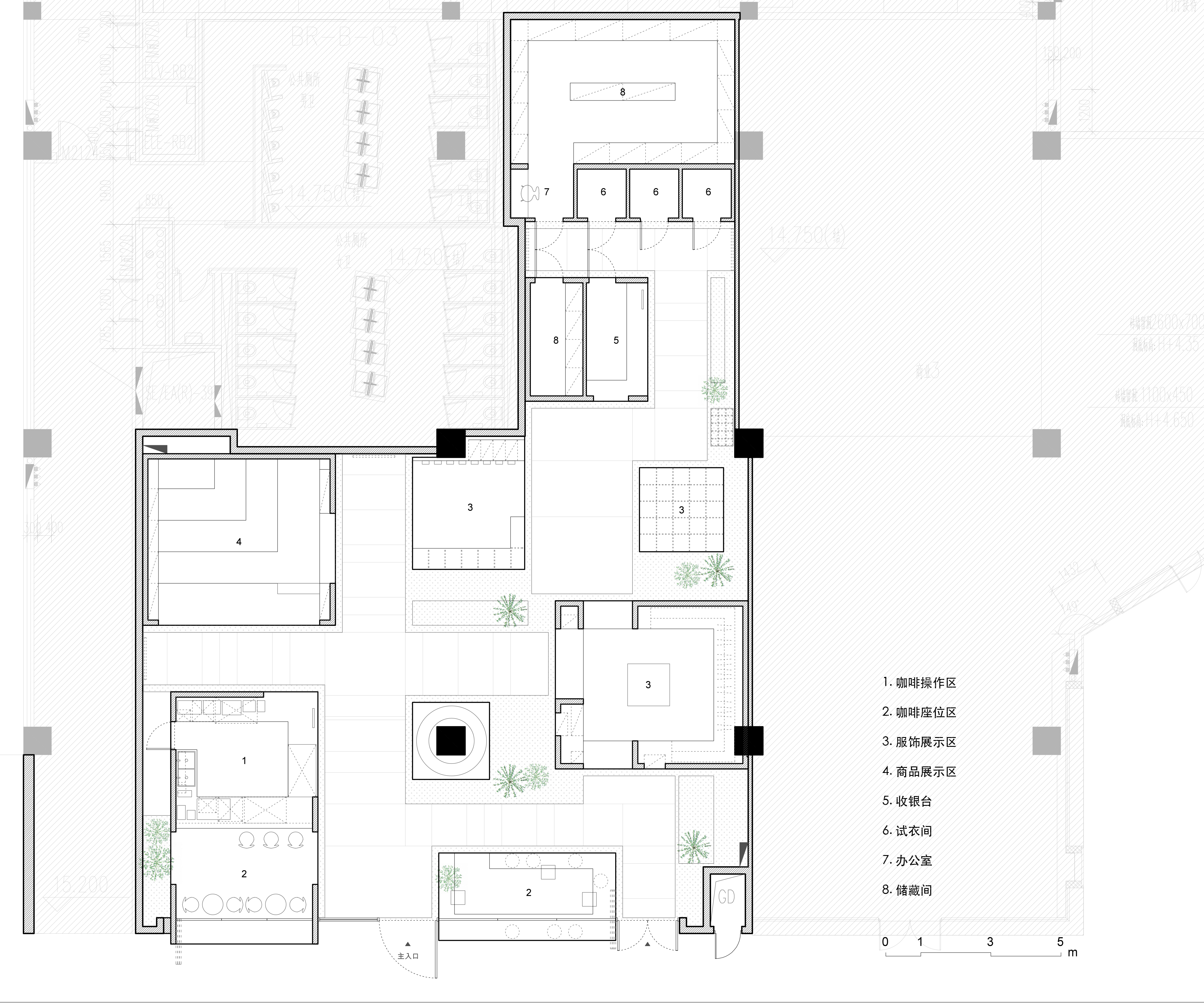
新DOE商店位于深圳福田区山坡商业中心UpperHills。该项目的最初概念是将自然引入室内空间。基于这个概念,设计在商店和外部空间之间展开了不同的对话。从外部到内部的连续金属地板创造了商店和街道之间的联系。而该店的开放式立面设计不仅与城市共享内部空间,还欢迎来自街头的场景。
咖啡厅、零售区、休息区等不同功能空间设计成不同尺寸的盒子。当人们在商店里散步时,他们会得到更丰富的体验,比如在街上散步,而不仅仅是在室内。金属、木材、砖等不同材料的运用,不仅体现了城市生活的丰富性和包容性,而且体现了DOE文化。
一条生产线的展示区和休息区被楼梯包围着,楼梯是用老木头做成的。材质的粗糙感不仅改善了轻松的交流氛围,也体现了街头文化的独特精神。由生锈的钢铁和亚克力制成的展柜以其更开放的设计打破了“盒子”的界限。商店中心的“旋转盒子”是吸引顾客进去的焦点。
位于山坡上的新DOE商店将其内部空间与城市环境联系起来。同时,街道氛围在现代室内空间中得到了很好的运用。两者的结合为客户提供了更丰富的体验。
平面与结构图:
客服
消息
收藏
下载
最近
































