查看完整案例

收藏

下载
近年来,我国在能源转型、清洁能源发展、能源安全保障、能源国际合作与竞争等领域面临前所未有的调整与机遇。其中,加油站作为普通人最容易体会到的能源基础设施,其建设和使用场景正在发生质变。
面向未来的能源服务中心将不仅为交通工具提供可再生能源补给,也肩负着大众教育、便利体验、能源生产的使命,为人类共同的地球健康贡献力量。
作为世界主要能源公司之一的壳牌基于其对服务升级和品牌定位的创新思考,计划在全球开展一系列综合能源站的建设计划。
▽整体鸟瞰夜景©Blackstation 黑像素
▽加氢区与柴油区©此间建筑摄影
作为一家进入中国已逾百年的世界五百强企业,壳牌 选择在武汉落地这一计划的首开项目。在业主的委托下,介景建筑团队通过多层级的空间规划实现以下目标:
①为多元能源的服务中心提供高效的布局规划。
②提供灵活的商业场景和丰富的在场体验。
③采取环保措施以减少对环境的影响。
▽沿街全景©此间建筑摄影
▽加油区夜景©壳牌中国零售与出行业务
项目基地所在的路口街角,位于武汉北部的滠口盘龙街道,被工业厂区与物流基地环绕。北侧茂密的丛林之外不断有老式货运火车通过,东侧则面临高架轻轨。在这种以不同速度交织下的环境里,总平面布置以高效的多种能源聚落为出发点,顺应武汉全年主要的东北风向,将建筑主体及罩棚区域设计为五片轻盈的岛屿。五片岛屿覆盖相应的能源类型,并为过路司机提供完善的公路服务。这座能量群岛高低错落,在有限的用地中合理组织车辆加油、加氢、储氢、充电、换油中心、肯德基汽车穿梭餐厅、司机之家、公众展示等诸多流线和功能。
▽总平面图©ATAH 介景建筑
▽服务站人视©此间建筑摄影 /Blackstation 黑像素
▽南侧屋架©此间建筑摄影
面对狭长的用地范围和十米限高的规划要求,项目需要建立一种既简单经济,又生动立体的整体形象,以便在高速场景下能被清晰识别。如此,一种连续转向的屋面层切方式被最终选定,向城市界面提供引人注目的节奏变化。由于综合能源站是 24 小时开放的设施,设计中将夜景效果纳入重点考虑。放射状的灯光结合在每块能源岛的屋面之中,既是对壳牌经典 LOGO 中特征纹理的工程转译,也在智能控制下产生丰富变化,以此生动诠释能量的交替和涌动。▽分析图©ATAH 介景建筑
▽屋架近景©Blackstation 黑像素
▽屋架细部©Blackstation 黑像素
位于场地中心的屋面向北侧丛林反向扬起,结合内部的交流堂使用场景,将树梢间若隐若现的绿皮火车作为工业景观纳入到建筑之内。为了实现这种多层级的屋面,设计中需要严格控制屋面厚度。此外,为保证在车辆通行区域没有柱子干扰,设计通过结构计算优化,在最大 10m 柱跨的情况下,将钢结构框架的梁尺寸控制在 450mm 之内,柱尺寸控制在 400x400mm,形成了局部 13 米的角部悬挑,并最终达成了建筑轻巧而纤细的多层屋面形态。▽分析图©ATAH 介景建筑
▽由大厅看室外©Blackstation 黑像素
▽大厅全景©此间建筑摄影
综合能源站的功能组织在首层平面上呈现倒梯形的十字格局,被服务空间与服务空间南北分置;东西向的交通联系与南北向的公共空间在剖面上叠加,以此形成彼此渗透的空间构架。在场景营造方面,积极引导信息直接塑造环境,体现了建筑师对于未来能源基础设施的理解。随着信息技术的发展,智能化与数字化对消费场景的改变将灵活定义个体的空间体验。▽剖面分析图©ATAH 介景建筑
▽大厅侧面包裹©此间建筑摄影
▽大厅中景©此间建筑摄影
▽天窗©此间建筑摄影
▽二层中廊夜景©此间建筑摄影
▽侧壁包裹材质对比©此间建筑摄影
设计通过 P2 光电屏与 GRG 塑形了一种流动的信息绸缎。无论是面对特殊节庆事件的氛围营造,还是壳牌 或入驻商家的品牌形象与展讯,又或通过动作捕捉响应顾客互动的游戏场景,流动的信息都可以向个体情绪提供扑面而至的沉浸式氛围,为到访者们带来更多的分享体验。而实现屏幕效果的电力则由建筑主体上方的太阳能板提供。▽分析图©ATAH 介景建筑
▽端景展示时场景©此间建筑摄影
▽大厅暗夜氛围©此间建筑摄影
▽楼梯©此间建筑摄影
▽信息绸缎©Blackstation 黑像素
沿着信息绸缎的翻卷,顾客被引领到二层。除去两块完整的店铺左右分置之外,位于北侧的交流堂通过标高下沉与屋面扬起造型,获得开敞的内部容量,可满足企业会议、能源展示或公众讲堂等多功能需求。层切的墙面肌理在此处扩散为层层的退台坐席空间,单一材质的包裹空间好似蕴含在岩层之内的无穷能量。后方半月形的开口也与中庭空间形成视线上的联系和对顾客漫游的牵引。▽二层中廊©此间建筑摄影
▽交流堂©此间建筑摄影 / Shell 中国零售与出行业务
设计始建筑师认为以往城市公共设计场所界面,在信息技术的飞速发展与传播媒介的广泛渗透之下已经发生了消融与转变。本设计提供了一种由基本构架与流动数字界面共谋的体验策略,并实现了能源在多数季节几乎完全自给自足的基础设施建筑。希望这一实践能为未来的能源基础设施在“双碳”目标下的清洁能源服务场景提供崭新的可能性。▽汽车之家©Shell 中国零售与出行业务提供
▽卫生间©壳牌中国零售与出行业务提供
▽能源站与城市关系©此间建筑摄影
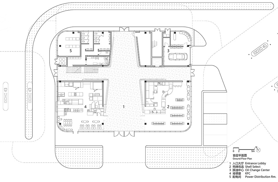
▽一层平面图©ATAH 介景建筑
▽二层平面图©ATAH 介景建筑
▽东立面图©ATAH 介景建筑
项目名称:能量群岛|Shell 武汉综合能源站
项目类型:建筑/室内
设计方:ATAH 介景建筑
项目设计:2021.6-2022.9
完成年份:2023.8
设计团队:
项目负责人:何凡、程瀛
建筑及室内设计深化:赵法中、赵艳、杨朕钦、李麦特、张曦佳
项目地址:湖北省武汉市,黄陂区
建筑面积:3500.2501349㎡
摄影版权:Blackstation 黑像素(视频及建筑摄影);此间建筑摄影(建筑摄影);Shell(场景摄影)
视频版权:ATAH 介景建筑
合作方:
结构:上海泰大建筑科技有限公司
照明:昇霖照明设计事务所
客户:湖北 Shell 能源有限公司
材料:铝单板、仿水磨石地砖、喷砂不锈钢、GRG
品牌:阿鲁克邦、斯米克
客服
消息
收藏
下载
最近























































