查看完整案例

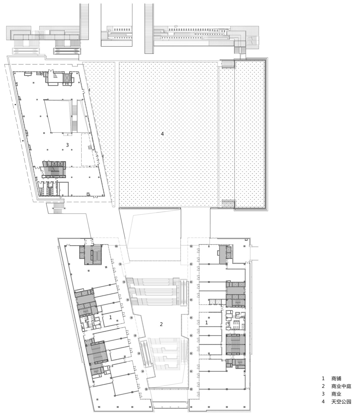
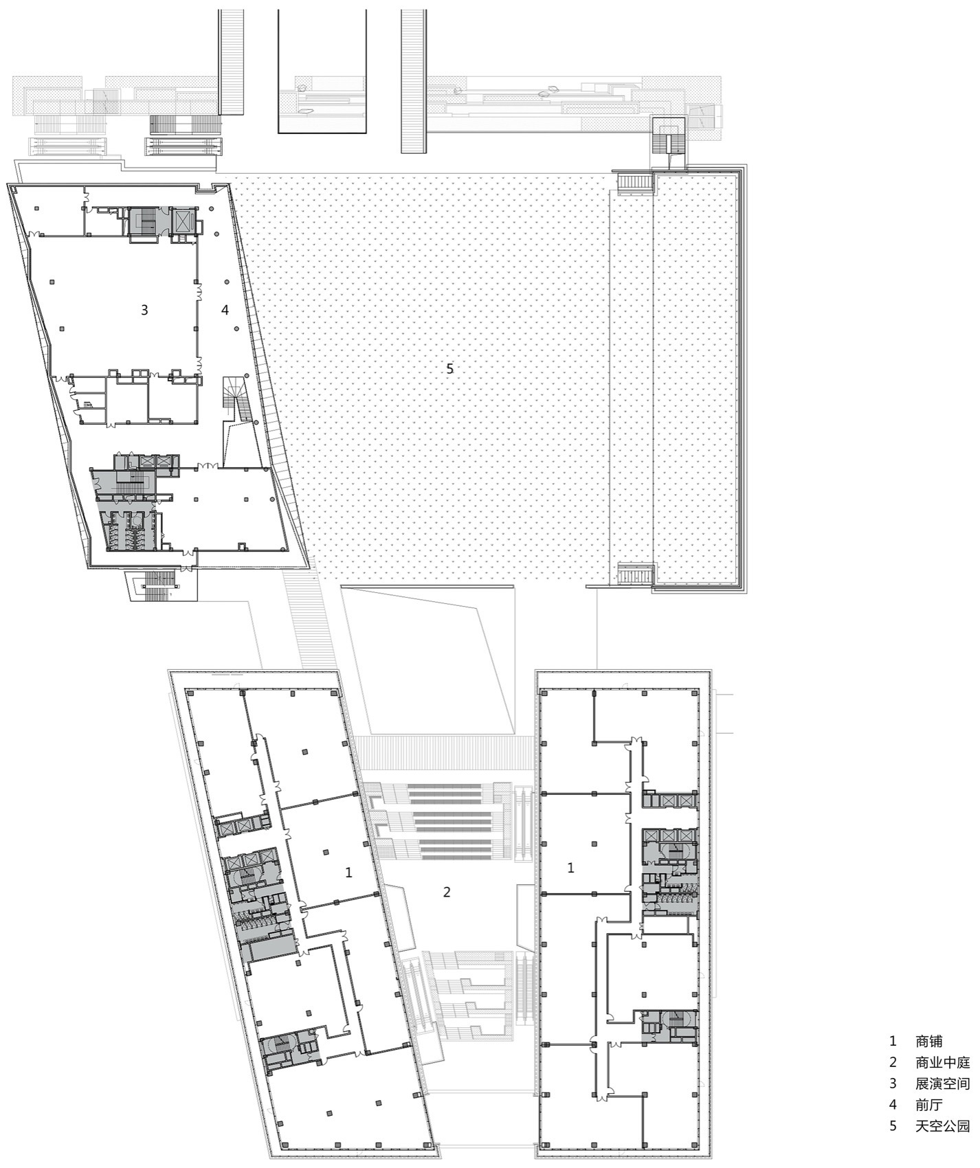
收藏

下载
TOD概念自20世纪90年代提出便旨在以公共交通为中枢集中城市发展要素紧凑、高效地对城市进行开发。TOD模式有效地缓解交通拥挤和城市无序蔓延、降低城市能源消耗、促进城市的可持续发展。近年来TOD发展理念的内涵不断丰富,人们对 “个体的精神需求”不断提升,推动城市空间的建设进入了TOD发展的新阶段。在这个新阶段,交通枢纽建设不仅重视站城功能的融合,更强调“人与城市”、“人与自然”的相互作用,以“人的需求”为驱动,在满足轨道交通、公共服务、物质消费的基础上,融入对人群行为的日常关照,将自然景观、艺术氛围结合城市个性,塑造独具魅力的场所。
The concept of TOD has been proposed since the 1990s with the aim of using public transportation as the central hub to concentrate urban development elements in a compact and efficient manner for urban development. The TOD model effectively alleviates traffic congestion and urban sprawl, reduces urban energy consumption, and promotes sustainable development of cities. In recent years, the connotation of TOD development concept has been continuously enriched, and people’s spiritual needs for individuals have been constantly increasing, driving the construction of urban space into a new stage of TOD development. In this new stage, the construction of transportation hubs not only emphasizes the integration of station city functions, but also emphasizes the interaction between “people and the city” and “people and nature”. Driven by “human needs”, it integrates daily care for crowd behavior while meeting the needs of rail transit, public services, and material consumption. It combines natural landscapes and artistic atmosphere with urban personality to create a unique and charming place.
▼天空之城中区鸟瞰,A bird’s-eye view of the city in the sky © 章鱼见筑
▼天空之城整体鸟瞰,Overall bird’s-eye view of Hangzhou Sky City © 张力视觉
NO.1 总体布局:立体开放的自然纽带
Overall layout: a three-dimensional and open natural link
“二子玉川站”和“虎之门之丘”是TOD站城设计的典型代表。二子玉川是东京著名的有呼吸感的自然社区,项目以一条全长约1000米的绿色缎带街道自车站西侧起,贯穿整个城市更新区域,最终连接到二子玉川公园及多摩川河岸。绸带街道以大台阶穿越商业区域,将人流由车站导入各商业楼层激活商业。
“Futako Tamagawa Station” and “Toranomon Hills Station” are typical representatives of TOD station city design. Futako Tamagawa is a famous breathing natural community in Tokyo. The project features a green ribbon street with a total length of about 1000 meters, starting from the west side of the station and running through the entire urban renewal area, ultimately connecting to Futako Tamagawa Park and the banks of the Tamagawa River. The Silk Ribbon Street passes through the commercial area with large steps, guiding the flow of people from the station to various commercial floors to activate commerce.
▼二子玉川站动线分析图,Route Flow Analysis Map of Futako Tamagawa Station © 东急电铁株式会社
虎之门之丘是东京代表性的办公区之一,项目以人为本,创建开放性公共空间和自然绿化环境,促进人与自然的互动和融合。空中的椭圆广场是车站和周边各楼栋的纽带,让人们在花草树木间享受美好的都市生活。人性化的空间将周边人群聚集,人们在这里举办新闻发布会、公司活动、社区活动,在这样的环境下,人们的工作、生活也更富有激情。
Toranomon Hills Station is one of the representative office areas in Tokyo. The project is people-oriented, creating open public spaces and natural green environments to promote interaction and integration between humans and nature. The elliptical square in the air serves as a link between the station and surrounding buildings, allowing people to enjoy a beautiful urban life amidst flowers, plants, and trees. A humanized space gathers surrounding crowds, where people hold press conferences, company events, and community events. In such an environment, people’s work and life are also more passionate.
▼虎之门之丘椭圆形广场,Axonometric Drawing of Toranomon Hills © 森大厦株式会社
天空之城中区综合“二子玉川站”和“虎之门之丘”的优势,将自然绿径、绿化大台阶、空中花园平台置入“TOD”,以“Park+TOD”为理念,在高强度用地条件下注重人文关怀,于“轨交”和“住区”之间打造贯穿南北、至下而上、面向城市开放的立体绿轴,强化人与城市、人与自然的联系。项目以立体生态绿轴为核心,地铁站、商业、办公、文化艺术中心、社会立体停车库、居住区等复合功能业态依次展开,并在各竖向标高设置空间节点连接周边地块及城市空间,打造多层次的花园社区,创造多元社区应用场景,提升街区活力,带动整个社区发展,实现“商业价值”和“人本追求”的共赢。
▼整体剖面空间设计图,Overall cross-sectional space design drawing © 都设设计
The Sky City Central District integrates the advantages of the ” Futako Tamagawa Station” and the ” Toranomon Hills “, placing natural greenways, green large steps, and aerial garden platforms in the “TOD”. With the concept of “Park+TOD”, it emphasizes humanistic care under high-intensity land conditions, and creates a three-dimensional green axis that runs through the north and south, bottom-up, and open to the city between the “rail transit” and the “residential area”, strengthening the connection between people and the city, and between people and nature. The project is centered on a three-dimensional ecological green axis, with composite functional formats such as subway stations, commercial, office, cultural and artistic centers, social three-dimensional parking lots, and residential areas being developed in sequence. Space nodes are set up at various vertical elevations to connect surrounding plots and urban spaces, creating a multi-level flower garden community, creating diverse community application scenarios, enhancing the vitality of the block, driving the development of the entire community, and achieving a win-win situation of “commercial value” and “people-oriented pursuit”.
▼天空之城中区鸟瞰,A bird’s-eye view of the city in the sky © 张力视觉
▼沿街整体形象,Overall image along the street © 章鱼见筑
▼中轴线鸟瞰,Central axis bird’s-eye view © 章鱼见筑
NO.2 未来天空中心(藤集+写字楼):与众不同的场所特质空间
Future Sky Center (TJ CENTRE+Office Building): Distinctive Place Characteristics Space
在“天空藤集”商业设计上,建筑以开放、自然的空间打造如同置身山谷森林般具有度假感的商业空间,塑造生态与商业共融的在地美学。“天空藤集”从B1层地铁站出口的下沉式城市绿化广场到地面三层上盖区设置半户外的大台阶,配以随处可见的休息座位区和各种绿植营造绿谷山径。创新、异质化的商业空间,自然地将人群聚集,促进各种人群的邂逅,诱发和催化快闪音乐、文化展览等多样化的使用场景。
In the commercial design of “Sky TJ CENTRE”, the building creates a vacation like commercial space in a valley forest with an open and natural space, shaping the local aesthetics of ecological and commercial integration. The Sky TJ CENTRE features a sunken urban green square located at the exit of the B1 subway station and a semi outdoor large staircase on the third floor above ground level, complemented by a ubiquitous seating area and various green plants to create a green valley path. Innovative and heterogeneous commercial spaces naturally gather crowds, promote encounters among various groups, and trigger and catalyze diverse usage scenarios such as flash music and cultural exhibitions.
▼天空藤集入口空间,Sky TJ CENTRE Entrance Space © 章鱼见筑
▼天空藤集大台阶空间,Sky TJ CENTRE Large Step Space © 章鱼见筑
▼天空藤集大台阶绿化空间与商业空间融合,The integration of green space and commercial space in the TJ CENTRE large staircase © 章鱼见筑
▼天空藤集下沉广场,Sky TJ CENTRE Sinking Square © 张力视觉
▼天空藤集大台阶绿化与休憩空间,Greening and Recreation Space of the Sky TJ CENTRE Stairway © 张力视觉
在“山谷”之上巧妙设计了七片不同叠级高度的漂浮云廊。云廊架设在两个塔楼之间,通过实腹钢梁加拉索的结构实现最大30米的跨度。春、秋季,利用云廊阶梯状的高低差引入自然风和阳光;夏季,通过地面和屋顶的温度差,有效地排出聚集在顶部的热空气,并根据日照条件设置遮阳系统。给人们感知阳光露水、四季更替的自然变化的同时享受舒适的微气候环境。设计策略大大降低了商业建筑的能耗,为低碳可持续发展的运营创造了条件。
Seven floating cloud corridors with different stack heights were cleverly designed on top of the valley. The cloud corridor is installed between two towers, achieving a maximum span of 30 meters through a structure of solid web steel beams and cables. In spring and autumn, use the stepped height difference of the cloud corridor to introduce natural wind and sunlight; in summer, the temperature difference between the ground and the roof effectively dissipates the hot air gathered at the top, and a shading system is set up according to the sunlight conditions. Provide people with a comfortable microclimate environment while perceiving the natural changes of sunlight, dew, and seasonal changes. The design strategy greatly reduces the energy consumption of commercial buildings, creating conditions for low-carbon and sustainable operation.
▼集遮阳、采光、通风为一体的七片云廊,Seven cloud corridors that integrate shading, lighting, and ventilation © 章鱼见筑
▼白天云廊下的公共空间,Public space under the cloud corridor during the day © 章鱼见筑
▼夜晚云廊下的公共空间,Commercial space under the cloud corridor at night © 章鱼见筑
在规划设计之初,一方面由于用地条件限制,场地边界均为商业界面,办公难以在首层设置独立门厅和落客空间;另一方面,至下而上的人流主动线造成大台阶下的商业空间可达性差,难以利用。为化解不利因素,设计团队巧妙地将大台阶下的楔形商业空间置换为办公公共大堂,使办公在首层有了独立的界面。楔形空间由外向内从两层高度逐渐过渡到一层高度,对应从大堂向电梯厅的空间自然引导,将不利空间转化为特色空间,使未来天空中心办公空间表现出与众不同的场所特质,具有独特的标识性。
▼大台阶下的办公大堂剖面设计图,Section design of the office lobby under the large steps © 都设设计
At the beginning of planning and design, on the one hand, due to land use limitations, the boundaries of the site were all commercial interfaces, making it difficult to set up independent foyers and drop off spaces for offices on the first floor; On the other hand, the bottom-up flow of people leads to poor accessibility of commercial space under large steps, making it difficult to utilize. To resolve unfavorable factors, the design team cleverly replaced the wedge-shaped commercial space under the large steps with an office public lobby, giving the office an independent interface on the first floor. The wedge-shaped space gradually transitions from two levels of height to one level from the outside to the inside, corresponding to the natural guidance of the space from the lobby to the elevator hall, transforming the unfavorable space into a distinctive space, making the future Sky Center office space exhibit unique characteristics and identity.
▼大台阶下的办公大堂空间,Office lobby space under large steps © 章鱼见筑
公共大堂以契合“天空之城”主题的“星轨”为意向,由一组从“地面-顶棚-室外雨棚”一体的发散性线条完美地适应楔形空间。办公公共空间与自然空间、商业空间适当渗透和灵活连接,使办公空间既有配套完善的商务感又有自然生活的松弛感。
The public lobby is intended to fit the theme of “Sky City” with a “star track”, and is perfectly adapted to the wedge-shaped space by a set of divergent lines from “ground ceiling outdoor canopy”. The office public space should be appropriately infiltrated and flexibly connected with natural and commercial spaces, so that the office space has both a complete commercial sense and a sense of relaxation in natural life.
▼办公大堂电梯厅前厅,Office Elevator lobby © 章鱼见筑
▼摆渡梯电梯厅,Ferry elevator lobby © 章鱼见筑
▼大堂派梯系统电梯厅,标准层电梯厅(左下) 电梯轿厢(右下),
Lobby elevator dispatch system elevator hall (upper)
Standard floor elevator hall (lower left) elevator car (lower right) © 章鱼见筑
NO.3 天空文化艺术中心:天空活力的梦舞台
Sky Culture and Art Center: A Dream Stage of Sky Vitality
通过商业大台阶拾级而上抵达10米标高的天空公园,让人有豁然开朗的世外桃源之感。天空草坪、旱喷广场、樱花林、天空之镜、宠物花园、儿童乐园、天空观景台与天空文化艺术中心结合成自然与艺术的空中绿洲。
Climbing up the commercial stairs to reach the sky park at an elevation of 10 meters, it gives people a sudden sense of paradise. Sky Lawn, Dry Spray Square, Cherry Blossom Forest, Sky Mirror, Pet Garden, Children’s Park, Sky Observation Platform, and Sky Culture and Art Center combine to form an aerial oasis of nature and art.
▼天空文化艺术中心鸟瞰,Bird’s-eye view of Sky Culture and Art Center © 张力视觉
场地南北连接了“天空藤集”商业和盖上社区入口,西侧天空文化艺术中心建筑和东侧微微翘起的观景台围合出中间2000多平方米的大草坪,就像个天然的舞台和剧场。每周由社区组织市集、音乐节、露营地、展览、秀场、沙龙等缤纷活动,使这里逐渐成为整个天空之城居民社群生活和周边社交活动的引力场。
▼天空文化艺术中心和微微翘起的观景台围合,形成观景和景观的互动关系,The Sky Culture and Art Center is surrounded by a slightly raised observation deck, forming an interactive relationship between observation and landscape © 都设设计
The site connects the commercial “Sky TJ CENTRE” to the north and south, and is covered with a community entrance. The west side of the Sky Culture and Art Center building and the slightly raised observation deck on the east side surround a large lawn of over 2000 square meters in the middle, like a natural stage and theater. Every week, the community organizes a variety of activities such as markets, music festivals, camping sites, exhibitions, shows, and salons, gradually making this a gravitational field for the entire Sky City community and surrounding social activities.
▼天空公园观景台,Sky Park Observation Deck © 都设设计
▼天空公园的天空之镜和樱花林,The Sky Mirror and Cherry Blossom Forest in Sky Park © 章鱼见筑
天空文化艺术中心建筑地上四层共8600平方米。建筑在设计之初即确定了“多首层洄游空间”的理念,建筑内部围绕中庭空间展开,每一层均与户外空间连通,使人可以在室内外自由游览穿行,不同的界面因空间差异形成不同的形象。同时多首层巧妙解决了文化空间流量集中时的疏散问题,以最小的辅助空间服务最大的功能。
The Sky Culture and Art Center has four floors above ground, totaling 8600 square meters. At the beginning of the design, the concept of “multi first floor migratory space” was established in the building. The interior of the building revolves around the atrium space, and each floor is connected to the outdoor space, allowing people to freely explore and travel indoors and outdoors. Different interfaces form different images due to spatial differences. At the same time, multiple first floors cleverly solve the evacuation problem when cultural space traffic is concentrated, serving the maximum function with minimal auxiliary space.
▼天空文化艺术中心沿街形象,The image of the Sky Culture and Art Center along the street © 章鱼见筑
▼天空文化艺术中心在天空公园的形象,The Image of Sky Culture and Art Center in Sky Park © 张力视觉
▼天空文化艺术中心在北侧街道的形象,The image of Sky Culture and Art Center on the north side street © 章鱼见筑
▼天空文化艺术中心在社区入口的形象,The image of Sky Culture and Art Center at the community entrance © 章鱼见筑
▼天空文化艺术中心在南侧天空藤集商业的形象,The image of Sky Culture and Art Center on the south side of Sky TJ CENTRE Commercial © 章鱼见筑
天空文化艺术中心旨在营造集自然文艺、亲子社区、展演空间、图书文创等生活场景的承载地。一层和二层设置亲子活动空间,自然光线通过中庭空间进入每一层,带来自然的感受。三层的艺术空间与天空公园以通透的玻璃幕墙连通,室内外相互渗透,三层广场中草地、喷泉、宠物公园依次展开,人们在这里遛狗嬉戏、驻足聊天,不同的场景在同一片天空下集合。
▼天空文化艺术中心剖面空间设计图,Section Space Design of Sky Culture and Art Center © 都设设计
The Sky Culture and Art Center aims to create a carrier for natural arts, parent-child communities, exhibition spaces, book and cultural creativity, and other living scenes. The first and second floors are equipped with parent-child activity spaces, and natural light enters each floor through the atrium space, bringing a natural feeling. The art space on the third floor is connected to the Sky Park through a transparent glass curtain wall, and the indoor and outdoor spaces penetrate each other. The grassland, fountain, and Pet Park on the third floor square unfold in sequence, where people walk their dogs, play, stop and chat. Different scenes gather under the same sky.
▼天空文化艺术中心夜景,Night view of Sky Culture and Art Center © 章鱼见筑
▼天空文化艺术中心日景,Sun view of Sky Culture and Art Center © 章鱼见筑
▼天空公园樱花季,Sky Park Sakura Season © 章鱼见筑
▼社区生活场景,Community living scenes © 章鱼见筑
▼儿童乐园鸟瞰,Bird’s-eye view of children’s playground © 张力视觉
▼宠物花园鸟瞰,Bird’s-eye view of pet garden © 张力视觉
多功能展演体量悬浮设置在天空公园之上,前厅贴临天空公园展开,整面通透的钢板肋玻璃幕墙拉近前厅与公园的距离,视线由前厅向喷泉、草地延伸,各种嬉戏、交谈场景尽收眼底。公园的盎然生机与各类展览的艺术氛围交织,自然与文艺在这里相互交融。
▼观演展览的前厅空间,Node of the front hall space for viewing exhibitions © 都设设计
The multifunctional exhibition volume is suspended above the Sky Park, and the front hall is adjacent to the Sky Park. The entire transparent steel plate ribbed glass curtain wall brings the distance between the front hall and the park closer, and the line of sight extends from the front hall to the fountain and grassland, providing a panoramic view of various play and conversation scenes. The vibrant vitality of the park is intertwined with the artistic atmosphere of various exhibitions, where nature and literature blend together.
▼四层前厅空间室内,Interior of the fourth floor lobby space © 章鱼见筑
▼面向社区的形象,Community oriented image © 章鱼见筑
天空公园之下,天空文化艺术中心为城市提供了约1.7万平方米的地上公共停车库和非机动停车库,骑行和停车动线灵活贯通各个公共区域、动线上设置开敞的立体花池,垂藤环抱,使人可以非常便捷舒适的从15米盖上居住区骑车到达天空公园、商业及地铁站,为低碳出行的健康生活方式提供便利。
Under the Sky Park, the Sky Culture and Art Center provides the city with approximately 17000 square meters of above ground public parking and non-motorized parking. The cycling and parking lines are flexibly connected to various public areas, and open three-dimensional flower beds are set up on the lines, surrounded by hanging vines, allowing people to easily and comfortably ride from a 15 meter residential area to Sky Park, commercial and subway stations, providing convenience for a healthy lifestyle of low-carbon travel.
▼社会车库整体形象,Overall image of social garage © 章鱼见筑
▼非机动车库立体绿化,Non-motorized garage three-dimensional greening © 章鱼见筑
▼车库步行及骑行空间,Garage walking and cycling space © 章鱼见筑
NO.4 技术成就建筑之美
Technology Achieves the Beauty of Architecture
建筑立面细部设计在解决技术问题的同时力求体现技术之美。将建筑结构、通风、排水、设备、泛光等功能需求结合到立面细部设计中,进行整合统一,形成精致隽永的美学。
The detailed design of building facades strives to reflect the beauty of technology while solving technical problems. Integrate and unify the functional requirements of building structure, ventilation, drainage, equipment, and lighting into the detailed design of the facade, forming a refined and timeless aesthetic.
▼云廊交界处节点,Node at the junction of Cloud Corridor © 都设设计
云廊是整个项目中结构、幕墙最复杂的部位。云廊钢结构采用实腹钢梁配合拉索的形式将结构构件优化到最小,以达到轻盈的效果,呈现建筑的结构之美。云廊除了复杂的钢结构外,为了满足消防要求还需设置大量的排烟窗。为了将这些构件弱化、化繁为简,在钢架下部设置圆管格栅作为视觉第一层次,满足遮阳的同时隐藏上部的开启构件;在钢架上部采用条形彩釉玻璃,增加细节效果并遮挡表面污染,从而优化塔楼室内视角的视觉效果。
The cloud corridor is the most complex part of the structure and curtain wall in the entire project. The cloud corridor steel structure adopts the form of solid web steel beams combined with cables to optimize the structural components to the minimum, achieving a lightweight effect and presenting the beauty of the building’s structure. In addition to its complex steel structure, the Cloud Corridor also requires a large number of smoke exhaust windows to meet fire safety requirements. In order to weaken and simplify these components, a circular pipe grille is installed at the bottom of the steel frame as the visual first level, meeting the requirements of shading while hiding the upper opening components; Strip colored glazed glass is used on the upper part of the steel frame to increase the detail effect and block surface pollution, thereby optimizing the visual effect of the indoor perspective of the tower.
▼云廊鸟瞰,Cloud Corridor Bird’s Eye View © 章鱼见筑
▼云廊局部,Partial Cloud Corridor © 章鱼见筑
办公楼单元式幕墙标准段细部设计将开启扇设于竖向装饰格栅之后,使装饰格栅成为视觉第一层次,将开启扇对立面的影响降至最低,从而呈现出精细、挺括的视觉效果。照明设计上,将LED灯带隐藏式嵌入幕墙构件中,照亮竖向格栅侧面,呈现见光不见灯、柔和的泛光效果。
▼单元式幕墙节点,Unit type curtain wall nodes © 都设设计
The detailed design of the standard section of the office building unit curtain wall will place the opening fan behind the vertical decorative grille, making the decorative grille the first visual level, minimizing the impact of the opening fan on the facade, and presenting a fine and straight visual effect. In terms of lighting design, LED light strips are concealed and embedded into the curtain wall components to illuminate the side of the vertical grille, presenting a soft floodlight effect where light is visible but not visible.
▼单元式幕墙局部,Partial unit curtain wall © 张力视觉
办公楼南端处在距住宅100m范围内,受杭州当地规范限制禁止采用玻璃幕墙形式。因此采用整体横向线条为主的窗墙形式,并在底部设置通风开启扇保证上部玻璃面的完整性。在楼板外以铝板幕墙包封,形成以窗墙仿幕墙的效果。
▼窗墙系统节点,Window wall system nodes © 都设设计
The southern end of the office building is within 100 meters of the residential area and is prohibited from using glass curtain walls due to local regulations in Hangzhou. Therefore, a window wall form dominated by overall horizontal lines is adopted, and ventilation opening fans are installed at the bottom to ensure the integrity of the upper glass surface. Wrap the exterior of the floor slab with an aluminum curtain wall, creating an effect of imitating the curtain wall with windows and walls.
▼窗墙系统,Window wall system © 章鱼见筑
在造价限定的现实条件下,裙房商业外立面最终选择了环保的陶土板幕墙。陶土板有质量轻,板块大、工业化定制的特点,相比较石材幕墙造价较低,采用开缝干挂的形式,避免安装不平整、使用过程中胶缝产生污迹的情况。板面设计上,选择弧面肌理的陶土板,在阳光下呈现柔和的阴影效果。
▼陶土板幕墙节点,Node of clay panel curtain wall © 都设设计
Under the realistic conditions of cost constraints, the commercial facade of the podium ultimately chose environmentally friendly clay panel curtain walls. Terracotta panels have the characteristics of light weight, large size, and industrial customization. Compared with stone curtain walls, the cost is lower. They adopt a seam dry hanging form to avoid uneven installation and stains caused by adhesive joints during use. In terms of panel design, choose a curved textured clay board to present a soft shadow effect in the sunlight.
▼陶土板墙面,Terracotta board wall © 都设设计
“天空之城中区”项目以高品质的空间,回归以人的物质和精神需求为出发点,开创了杭州城市全新公园商业体系。通过设计解决建筑的空间屏障与人们对户外互动空间渴求之间的矛盾问题,将自然和商业、自然和文化、自然和精神融入到设计中,与城市共生共融,实现了站城商居一体化。
The “Sky City Central District” project, with high-quality space and a return to human material and spiritual needs as the starting point, has created a new urban park commercial system in Hangzhou. By solving the contradiction between the spatial barriers of buildings and people’s desire for outdoor interactive space through design, nature and commerce, nature and culture, nature and spirit are integrated into the design, coexisting and integrating with the city, and achieving the integration of station, city, and commercial residential spaces.
▼天空之城中区夜景鸟瞰,Bird’s-eye view of the night view in the Sky City area © 张力视觉
TOD项目对区域城市价值的拔升是阶段性螺旋上升的,项目以长期主义为居民构建高品质城市生活,具有场所特性的多功能性空间在使用过程中将不断迭代,持续为整个片区释放活力。
The TOD project’s promotion of regional urban value is a cyclical spiral. The project aims to build high-quality urban life for residents with a long-term perspective. The multifunctional space with place characteristics will continue to iterate during use, continuously releasing vitality for the entire area.
▼总平面图,Site Plan © 都设设计
▼地下一层平面图,B1 Floor Plan © 都设设计
▼一层平面图,First Floor Plan © 都设设计
▼二层平面图,Second Floor Plan © 都设设计
▼三层平面图,Third Floor Plan © 都设设计
▼四层平面图,Fourth Floor Plan © 都设设计
项目信息:
项目名称:杭州万科天空之城中区
项目地点:浙江杭州
设计时间:2019年
建成时间:2023年
用地面积:27808㎡
建筑面积:126238㎡
容积率:2.30
建筑设计:上海都设营造建筑设计事务所有限公司
办公楼部分室内设计:上海都设营造建筑设计事务所有限公司
合作机构
城市设计:SOM建筑设计事务所
概念规划:株式会社日建设计
藤集室内设计:轶梦室内设计(上海)有限公司
天空文化艺术中心室内设计:北京步麓建筑设计咨询有限公司
景观设计:原象设计有限公司
施工图设计:浙江省工业设计研究院有限公司
幕墙设计:杭州众创联合建筑科技有限公司、中哲创建科技股份有限公司
钢结构设计:上海中建建筑设计院有限公司、杭州毅君建筑科技有限公司
灯光顾问:成都佐一照明设计有限公司
机电顾问:杭州易咨建筑工程技术有限公司
导视设计:深圳市天策规划设计有限公司、北京善见未来文化传播有限责任公司
业主:杭州西曙置业有限公司
摄影:章鱼见筑、张力视觉
Project name: Hangzhou Vanke Sky City Central District
Project type: Commercial, Office, Culture, Interior
Design: DuShe Architectural Design Co., Ltd., Shanghai
Design year: 2019
Completion Year:2023
Architectural Design: DuShe Architectural Design Co. Ltd., Shanghai (Dushe Design)
Interior design of office building: DuShe Architectural Design Co. Ltd., Shanghai (Dushe Design)
Chief Architect: Huang Ouhai
Architectural design team: Huang Ouhai, Liu Jie, Xia Yangguang, Zhang Chendong, Wang Xian, Tang Liujing
Interior design team for office building: Yong Youlong, Liu Jie, Wang Xiaoxiao
Collaborative designer (company name): As follows
Urban Design: SOM Architectural Design Firm
Concept planning: Nichiren Design Co., Ltd
TJ CENTRE Interior Design: Yimeng Interior Design (Shanghai) Co., Ltd
Interior Design of Sky Culture and Art Center: Beijing Bulu Architectural Design Consulting Co., Ltd
Landscape Design: Yuanxiang Design Co., Ltd
Construction drawing design: Zhejiang Industrial Design and Research Institute Co., Ltd
Curtain wall design: Hangzhou Zhongchuang United Architecture Technology Co., Ltd. / Zhongzhe Creation Technology Co., Ltd
Steel structure design: Shanghai Zhongjian Architectural Design Institute Co., Ltd. / Hangzhou Yijun Building Technology Co., Ltd
Lighting consultant: Chengdu Zuoyi Lighting Design Co., Ltd
Mechanical and Electrical Consultant: Hangzhou Yizi Construction Engineering Technology Co., Ltd
Guide design: Shenzhen Tiance Planning and Design Co., Ltd. / Beijing Shanjian Future Cultural Communication Co., Ltd
Project location: Wuchang Street, Yuhang District, Hangzhou, Zhejiang Province
Gross built area: 126238㎡
Photo credit: ZY Architecture Photography, Zhang Li Vision, Dushe Design
Clients: Hangzhou Xishu Real Estate Co., Ltd
Materials:
1. LOW-E insulated glass
2. 4mm thick silver gray aluminum veneer
3. Light colored clay board
客服
消息
收藏
下载
最近

































































