查看完整案例

收藏

下载
一张白纸从零开始,画出最美最好的图画。前海,向海而生,十余年间,从一片自然海滩化身摩天之城,造梦山海云境。这里已然成为深港之间最具生命力的“共生之场”,激荡商企繁荣与人文艺术的回响。
未来之声 Voice of the Furture
H.N.LIN 空间美学馆创始人 Tiffany Shi
设计以“未来之声”为主题,演绎人、场所、信息、艺术的共生之场,空间如起伏呼吸的生命体,吐纳着艺术人文、历史使命和未来遐想,表达着、创造着、进化着......
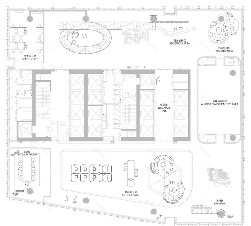
科技和生活方式的变迁让未来办公充满了透明、合作、个性化和高度连接的特征,人作为信息的节点,可以自由穿梭,空间亦可自在组合。设计旨在创造更人性化工作环境,更温暖的人文艺术氛围,更具舒适性和归属感的互动场所。
「生命不息地创造与进化」
艺术、交融、流动
拼搏进取的海洋精神深深镌刻在深圳的城市基因里,它曾是海上丝绸之路的重要节点,又在过去的几十年,从无到有创造出世界奇迹。
青铜艺术雕塑来自 ZoÉ VayssiÈRe 的 Memory Vase 系列,记录中国城市和生活的变化。
企业是人类最好的发明,它能让一群人朝着同一个方向前进。——史蒂夫·乔布斯
作为中国农粮的“航母”企业,中粮亚太总部的设计充满了对空间的恢宏想象力。艺术大堂挑高达 7.5 米,大尺度回应了“艺术、交融、流动”的主题,含蕴史诗般的壮阔,启动未来无限可能。
接待前厅
自然之源
大堂由中粮“自然之源“的理念,演绎为大型木构装置的艺术表达,诠释了空间与自然的联系,带来温润的生命气息。
木构既是对自然的致意,又与建筑顶部的流动感彼此呼应,构成点、线、面,光与风的自在流动。
长凳来自 B&B,弯曲与方形构成坚固与流动的对比。奔腾中饱含韵律,建筑的美感和可持续信念一并呈现,在色泽上则趋于沉稳,回应中粮稳健的企业精神。
沐光而行
靠近光、追随光,整个前厅应光生长,落地玻璃让一切沐浴在光的诗意中。楼梯盘旋而上,卵石恣意散落,令人惊喜的曲线语言均来自自然和生命的无尽张力。
艺术家具灵感来源于水纹天花,不锈钢凝固了水滴的动态。电梯厅格纹装饰的双面镜屏风开启时间剧场,点点光斑象征现在与未来的超时空对话。
沙盘区
「未来的时空创想」
开放、协作、交互
未来工作不仅意味着场所,还指一种创造不息的精神状态。动态流动的空间组织和多元互动的工作场景,激发人找到理想的坐标。
贵宾等候区:流线沙发独有靠背与座椅相交的形式,营造优雅的交谈氛围。
环境美学
落地窗前,阳光将生机与能量汇聚在 Moroso 沙发周围,蜿蜒线形连接了新的空间思维和生态绿色的环境美学。
有氧休闲书吧区
“未来设计须是关怀式的”,设计师说,比如,散射的顶部光源,开阔性和私密性的平衡,多核心的布局方式则满足了个人、部门、跨部门等多种使用场景。
Patricia Urquiola 创造了多功能的沙发与屏风组合,兼具优雅与功能。相比固定家具,小型活动家具创造了更出色的复合效用,灵活机动的小扶手椅配备了托盘,办公时是小书桌,喝咖啡时充当小边几,更有储物底座如影随形。
Lievore Altherr Molina 设计的聚丙烯储物底座小扶手椅可自由移动。
创意激荡
自由思考与创意激荡同样重要,人们来到升降桌区域,随时切换到站立办公模式,此外,员工之间的即兴联系亦得到激发——建立连接、激发创意、持续创新。
升降桌区域
从连接到独立,设计始终在探究功能和愉悦之间的平衡点,半高屏风的独立办公区隔绝外界干扰的同时,也让员工之间的沟通愈加自由流畅。
独立办公区:Avion 模块化家具,由墙壁、座椅和桌子组成。空间作为触发心理感受的重要载体,以其开放性和包容性,让人捕捉到温暖的信号,阳光、绿色、加上动感单车区,压力随时得到舒缓。
健身区
“我们希望与企业一起叩响未来之声,健康、生态、可持续的理念延伸了人们看待空间的视角,也将流动舒适的场域带给所有使用者”,设计师说。
VIP 会议室
项目名称:深圳中粮前海亚太总部大厦展示厅
甲方单位:中粮集团
建筑设计单位:Goettsch Partners 建筑设计事务所
软装设计:H.N.LIN 空间美学馆
软装团队:Tiffany Shi,陈旭阳 Eon Chen
项目摄影:蔡云普
项目地址:深圳南山区
H.N.LIN 空间美学馆秉承“真·善·美”的品牌理念,始终信守专注与专业精神,一直认为真正高级的生活方式是无界限的。1978 年成立至今,40 多年来专注于空间美学创造与推广,在现代室内设计与整体软装搭配领域中不断创新与探索,专业服务全中国高端地产豪宅项目、明星私人业主等,以独有的艺术语言和立体视角,将真正高级的生活方式融入空间,全新演绎都市美学空间。
客服
消息
收藏
下载
最近


























