查看完整案例

收藏

下载
■ LJID - 柏宽设计独家专访
“建筑是捕捉光的容器,就如同乐器如何捕捉音乐一样,光需要可使其展示的建筑。”
——理查德·罗杰斯
01LIGHT & SHADOW
光与影
不管是过道
亦或是办公区
光与影都贯穿其中
通过对光影的巧妙运用
将每一天、每一分、每一秒的微妙变化
都展现在空间中
光影在空间折射
虚和实
不同的材料和光感彼此烘托
构成别致情境
冷峻中透露精致 自然天光。糅合率性的色泽,将不同种类的材料回归本真,折射出凝聚在空间里的艺术精神。
浮光掠影
用现代的手法演绎出造型、质感与光影交织的体验,释放凝结在空间中的张力。它可以张扬锐性,也可以惬意平和,冷淡与温暖并存。洒在大堂艺术品上的微光,层层递进恰到好处,充斥着艺术创作的想象力。
02COMPLEX TO SIMPLE
繁归简
至繁归于至简
办公区摒弃了许多外在的不必要的装饰,灵活运用材料,结合简洁克制的形体,实现空间组合的虚实,结合材料与功能,感性与理性和谐统一。
材质的纯粹
构造的精细
光影的细腻
不经意间就发现其中的魅力
设计以空间的舒适性为出发点,睿智的黑金和温润的白色成为了空间的整体底色,以不同的材料形式在顶面、地面、立面得以呈现。
楼梯向上延展,金属与线条赋予了它柔韧的艺术感,黑白交缠共生出戏剧般的冲突,以简单形式强烈地触动着我们,释放出无声的力量。移步换景,身体的运动同时参与到空间的流动之中。
03EMPTINESS & REALITY
虚与实
身处喧嚣而繁忙的都市
快节奏 紧张 高压
已经成为现代都市工作者的日常
办公空间
一个我们每天相处八小时的场所
应该具有怎样的空间特质
室内与室外始终紧紧相连。透明的落地玻璃最大化地纳入室外风景,模糊了窗外城市景观与窗内办公室的空间边界,不断降低人在空间内的压迫性,自由而舒适。环形的曲线被赋予一种内在的流动性,自由流畅。
时虚时实的隔断
疏密有度
贯通空间
带来因人而异的感受
分析图
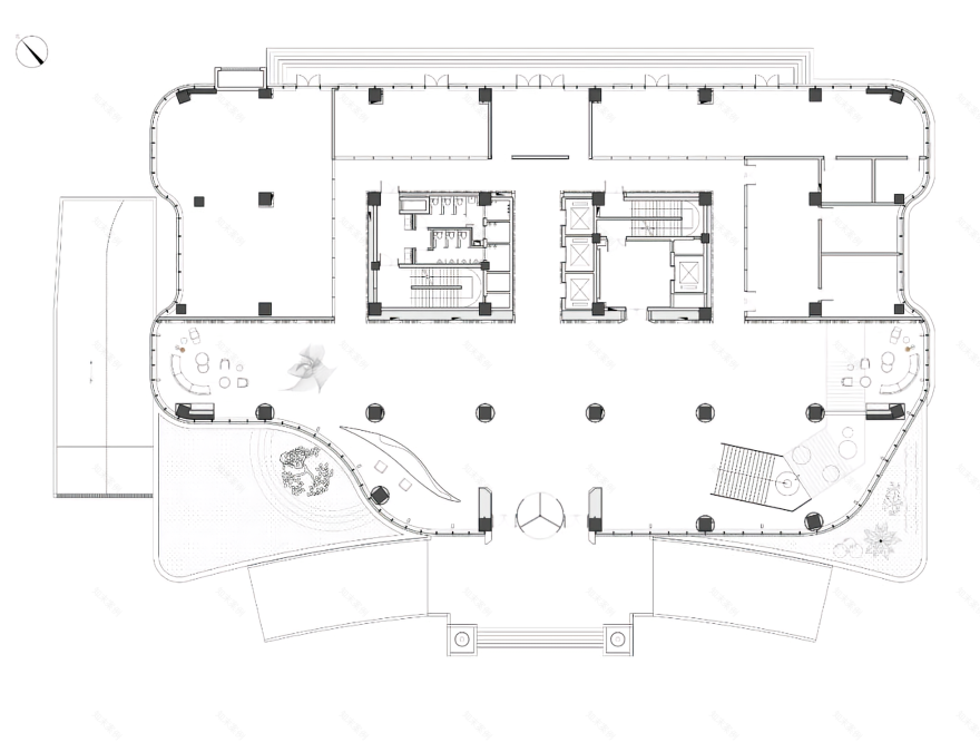
平面图
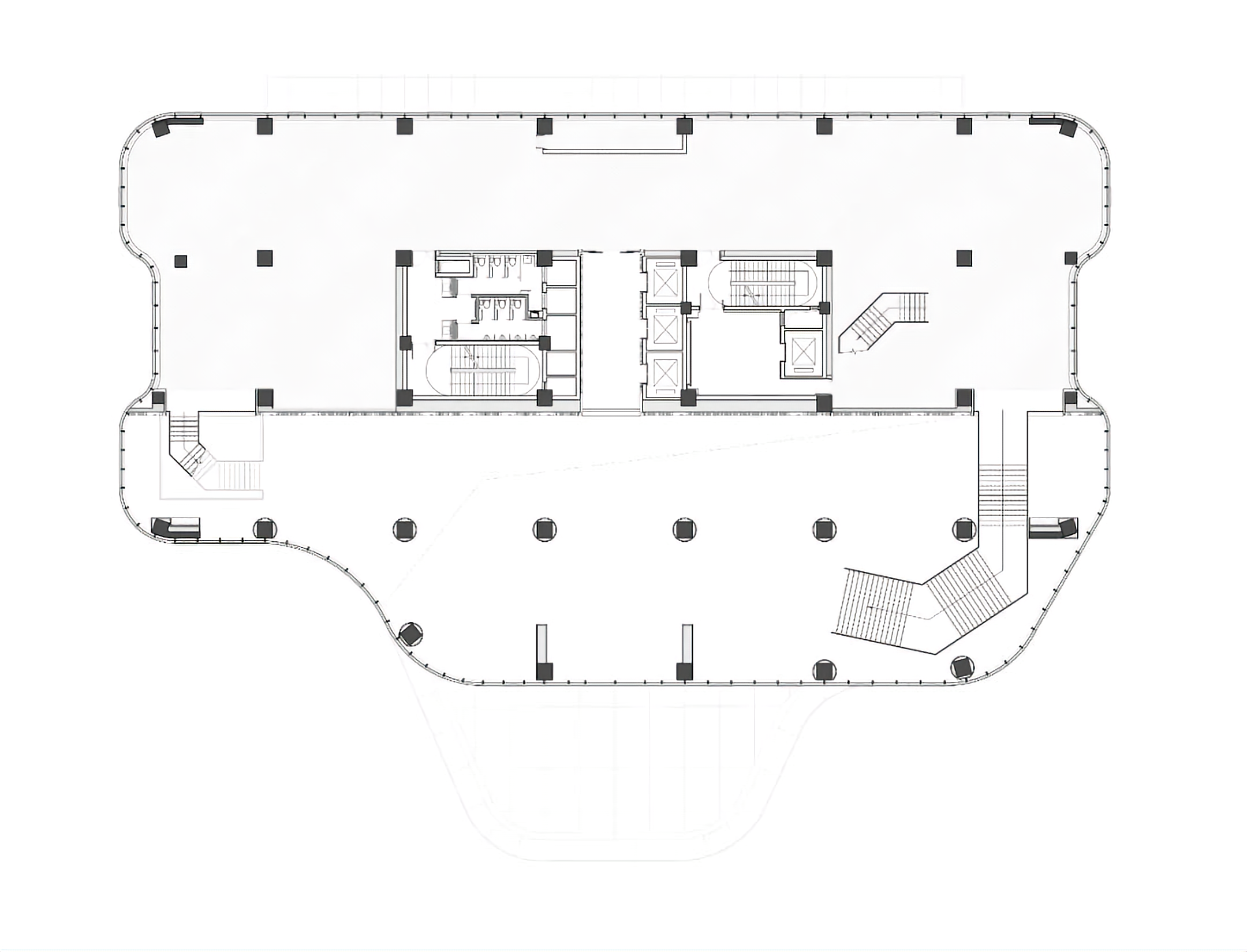
平面图
- 项目名称 -浙江迎丰科技股份有限公司
- 设计公司 -苏州柏宽建筑设计有限公司
- 主创设计 -伏涛
- 参与设计 -刘烨 邱志诚 邓佳慧 曹峰源
- 项目地址 -浙江 绍兴
- 项目面积 -11000.2501349㎡
- 项目摄影 -金选民,Ingallery
伏涛
主创设计师
柏宽建筑(苏州)设计有限公司,我们致力于将时尚前沿与文化传承相融合,赋予了每个作品以生命和力量。我们年轻且执着,秉承创新雕琢的设计精神,竭力为客户提供最佳的设计解决方案。
我们以空间体验与服务设计为核心,涵盖文化空间、办公空间、展示空间与商业空间等多个空间领域。依托强大的设计能力,为客户提供“全案策划+空间设计+服务设计+项目管理”的全流程整体解决方案。我们的项目遍布全国 20 多个地区(北京、上海、广州、杭州、宁波、苏州、南京、成都、重庆、武汉、洪湖、兰州、江西、山东等)。柏宽,用设计为空间提升体验,用空间为品牌创造价值。
客服
消息
收藏
下载
最近








































