查看完整案例

收藏

下载
拥有30年历史的LTO(数据存储磁带)公司在管理层发生变化后,决定将一座旧建筑翻新为他们的新总部。
▽项目外观©Nakano Yukihide
▽外墙细节©Nakano Yukihide
▽大厅©Nakano Yukihide
▽从大厅望向“X”外墙©Nakano Yukihide
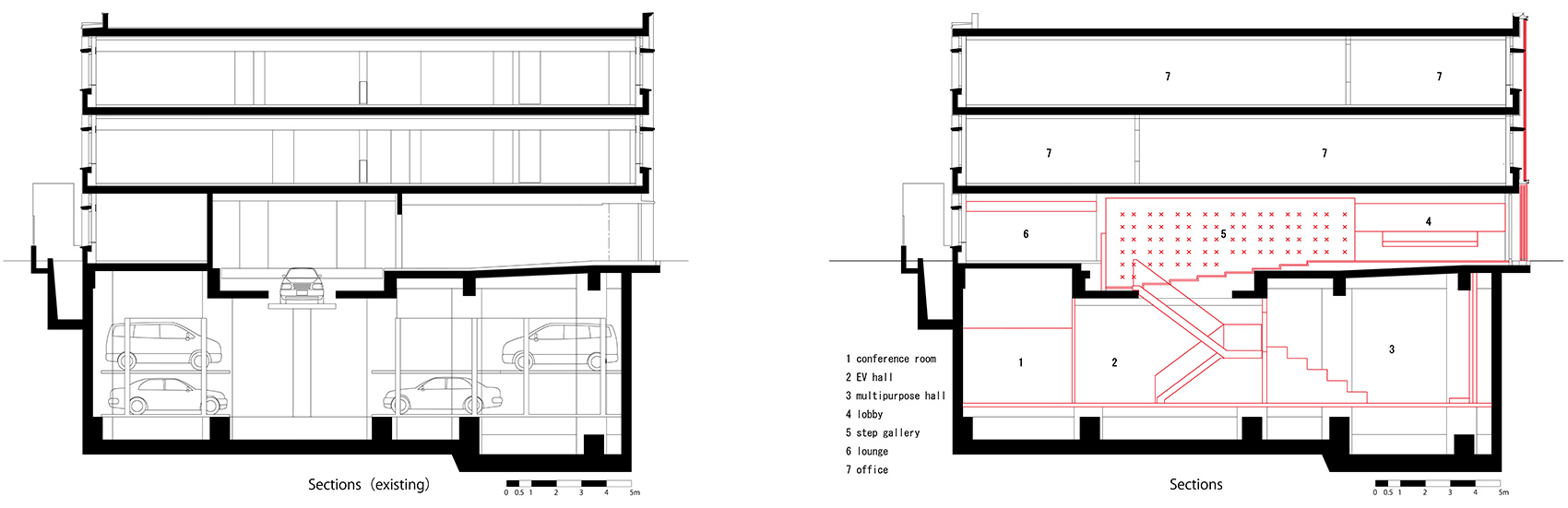
既有的机械式停车场被改造成展览空间,可供客户放松身心或促进员工相互交流。独特的金属网外墙被重新设计,代表着公司的新面貌。在利用现有框架的基础上加入一系列新元素,这体现了公司向过去学习的精神。
▽改造前后剖面对比© T2P Architects office
▽首层空间概览©Nakano Yukihide
▽展示墙©Nakano Yukihide
▽楼梯展示区©Nakano Yukihide
▽空间细节©Nakano Yukihide
▽地下一层休息室©Nakano Yukihide
▽楼梯和灯具细节©Nakano Yukihide
▽多功能厅©Nakano Yukihide
▽休息室©Nakano Yukihide
▽标识设计©Nakano Yukihide
▽金属网外墙©Nakano Yukihide
▽夜间外观©Nakano Yukihide
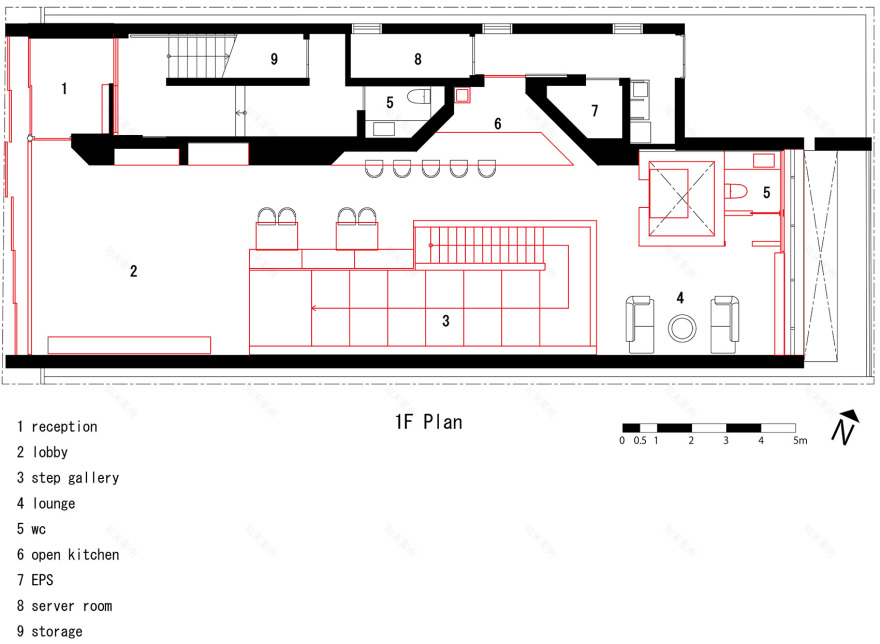
▽一层平面图© T2P Architects office
▽负一层平面图© T2P Architects office
▽立面改造示意© T2P Architects office
▽剖面图© T2P Architects office
客服
消息
收藏
下载
最近






















































